











整体设计以 “轻形奢质” 为笔,于简净轮廓里织入自然肌理与温度细节,让现代生活的实用与轻奢美学的雅致,皆落于日常的松弛之中。
更多卧室灵感
本卧室以暖棕为基调,柔化空间轮廓。床头水墨岩板衬暗藏灯带,织就雅致肌理;皮质床具与编织地毯呼应,质感温润。无主灯柔光叠加点光源,极简线条揉入轻奢细节,辅以黑白软装点睛,于静谧中藏高级松弛感。
更多卧室灵感
本卧室以浅木色为基底,柔化空间轮廓。弧形隔断衬肌理床头,织就雅致层次;柔灰床具与渐变地毯呼应,质感温润。无主灯柔光叠加点光源,金属灯具作点睛,极简线条揉入轻奢细节,于静谧中藏松弛高级感。
更多卧室灵感
本空间以浅木色 + 柔白为基底,一体柜与书桌串联起休憩、办公功能,动线流畅。柔灰床具衬棕调软装,金属椅脚作点睛,暗藏灯带柔化空间轮廓。极简挂画与编织地毯叠织层次,于紧凑格局里藏轻奢质感,平衡实用与松弛氛围。
更多衣帽间灵感
本空间以暖调浅棕为基底,肌理柜面衬金色线条,勾勒轻奢质感。玻璃展示区暗藏暖光,柔化材质冷冽;开放式挂衣区与储物区分区清晰,实用且通透。异形镜呼应金属细节,光影与木纹交织,于雅致中藏精致收纳,平衡美学与功能。
更多户型图灵感
本方案为多层户型,布局以 “动静分区” 为核:车库衔接入户,客厅、休闲区作公共互动场;餐厨与采光井相连,增生活松弛感;楼梯串联上下层,卧室、卫浴聚私密区,兼顾功能与动线流畅度,适配多元家庭场景。
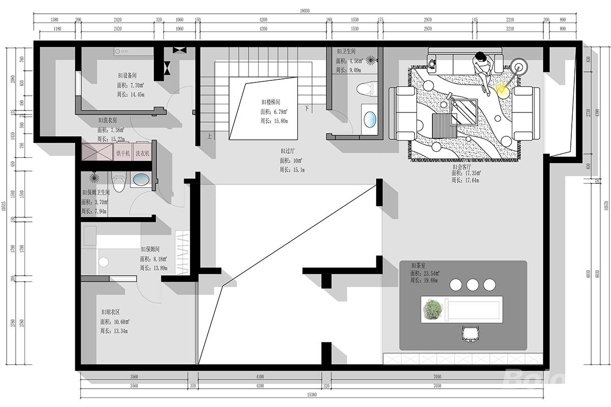
更多户型图灵感
本地下层以 “功能复合” 为核,布局动静交织:会客厅作公共互动场,茶室延伸休闲;洗衣房、衣帽间、卫浴聚家政与收纳区,楼梯间衔接上下层。动线以过厅为枢纽,既保证功能分区清晰,又适配地下层的多元生活场景。
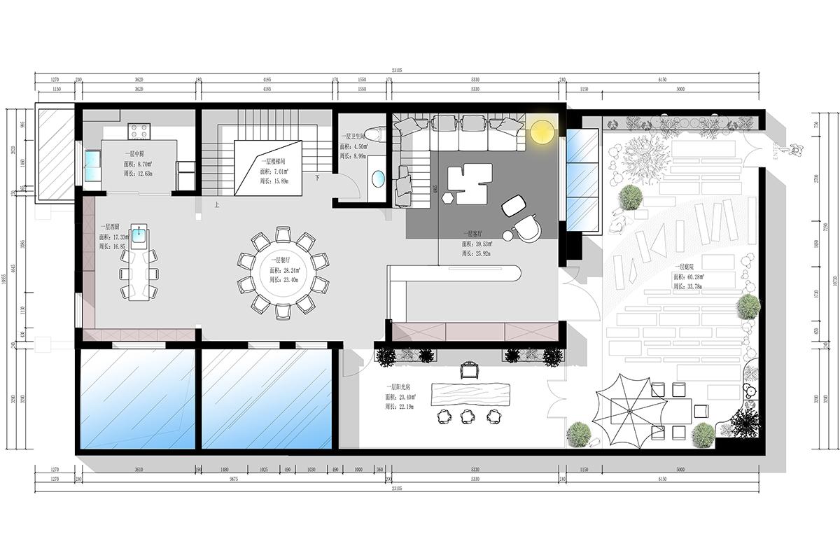
更多户型图灵感
本层以 “社交 + 生活” 为核心,布局开阖有序:客餐厅联动庭院,拓展公共互动场域;餐厨区动线紧凑,圆桌餐厅适配家庭与宴请;楼梯衔接上下层,卫浴、露台功能完善。空间借庭院景观柔化边界,兼顾舒适起居与轻社交需求。
更多户型图灵感
本层以 “私密起居” 为核心,布局规整:四间卧室 + 双卫浴,满足多成员休憩需求;过厅作动线枢纽,衔接楼梯与各功能区,动线流畅;露台嵌入空间,柔化私密区的封闭感。空间分区清晰,兼顾独立作息与日常互动,适配家庭型起居场景。
更多户型图灵感
本层以 “私密起居” 为核心,布局规整:四间卧室 + 双卫浴,满足多成员休憩需求;过厅作动线枢纽,衔接楼梯与各功能区,动线流畅;露台嵌入空间,柔化私密区的封闭感。空间分区清晰,兼顾独立作息与日常互动,适配家庭型起居场景。