×
北京
手机博洛尼 售前:400-6868-692 售后:400-666-3706
所在位置/首页优秀案例/首创禧瑞山
点击浏览下一张
案例信息
  • 楼盘名称
  • 案例风格
  • 首创禧瑞山
  • 轻奢
  • 案例户型
  • 服务店面
  • 案例面积
  • 设计师
  • 240㎡
  • 康明
案例说明

本设计以 “雅韵为骨,轻奢为饰” 为核心,在 240㎡空间中平衡质感与松弛感。摒弃繁复堆砌,以温润米白、雅致灰为基底,点缀原木肌理与低饱和度金属线条,勾勒简约而精致的轮廓。

客厅
更多客厅灵感

以米白、浅木为基底,融大理石纹理与哑光金属线条,轻描轻奢质感。开放式格局借格栅隔断引光透景,沙发、肌理软装衬出松弛。留白墙面缀艺术画,删繁就简间,让雅致与舒适共栖日常。

餐厅
更多餐厅灵感

以浅暖色调为底,融玻璃隔断的通透与木色柜体的温润,金属线条轻缀轻奢质感。悬浮吊顶藏光引柔,大理石地面衬出利落,留白间植一抹绿意,让用餐场域在雅致中兼具松弛日常感。

卧室
更多卧室灵感

以浅木、柔灰为底,水墨林景墙布晕染雅致氛围,金属线条与柔和灯光轻缀轻奢质感。通透帘幕引自然光入室,低饱和软装衬出松弛,功能区与休憩区自然衔接,让卧室在简雅秩序中沉淀疗愈日常。

卧室
更多卧室灵感

以浅木肌理为基底,柔灰软装衬出松弛质感,金属拉手轻缀轻奢细节。弧形转角弱化空间棱角,藏光灯带柔化氛围,飘窗与柜体一体化布局简化视觉,删繁就简间,让小空间兼具雅致与实用日常。

厨房
更多厨房灵感

以浅灰调柜体衬大理石肌理,藏光灯带柔化冷硬质感,金属家电线条轻缀轻奢细节。利落台面与嵌入式布局简化视觉,留白间缀鲜活橙果,让烹饪场域在雅致秩序中,兼具实用与松弛日常感。

卫生间
更多卫生间灵感

以深灰石纹衬白理石肌理,木色柜面与金属线条柔化冷调,藏光灯带晕染雅致氛围。格栅隔断引光透景,浴缸、智能洁具兼顾奢感与实用,留白处缀绿植,让卫浴空间在秩序中沉淀松弛疗愈的日常质感。

户型图
更多户型图灵感

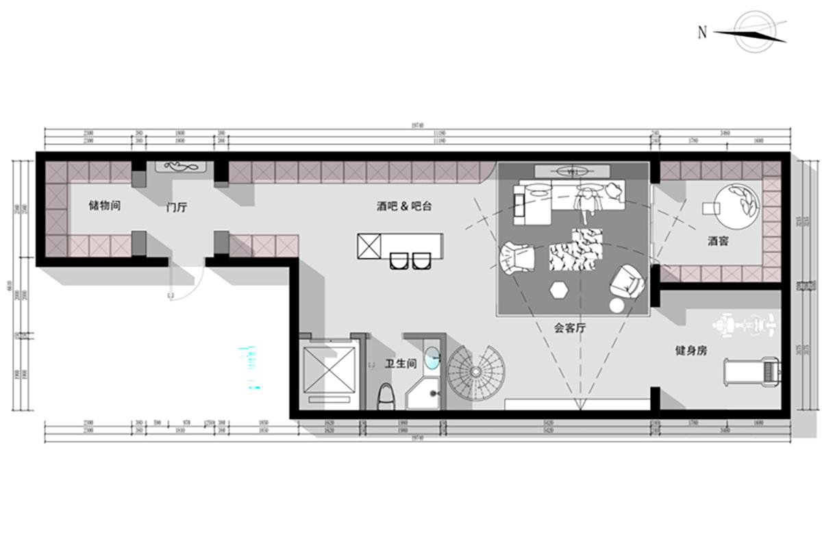
以通透动线串联功能区,门厅衔接储物间实现整洁过渡,酒吧 & 吧台承启会客与酒窖,健身区拓展休闲维度。分区既保独立又显联动,雅奢质感融于功能布局,让空间在秩序中兼具社交与松弛日常。

户型图
更多户型图灵感

以餐厨为核心联动动线,厨房、洗衣房就近布局优化家务效率,餐厅承启社交与日常用餐。弧形隔断柔化空间边界,卫浴与休闲区既独立又互通,雅奢质感融于实用分区,让空间在秩序中兼顾松弛与功能。

户型图
更多户型图灵感

以会客厅为核心串联功能区,老人房邻近卫浴兼顾适老性,露台庭院引自然意趣入室。通透动线弱化空间边界,雅奢质感融于实用分区,既保社交场域的开阔,又留日常休憩的松弛,让空间兼具温度与秩序。

户型图
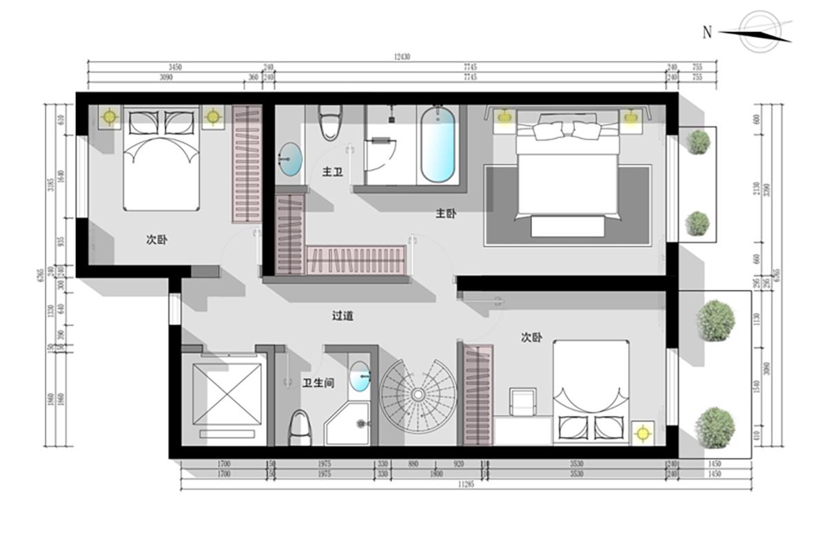
更多户型图灵感

以过道串联双次卧与主卧,主卧配独立卫浴保私密,格栅隔断柔化空间边界。各卧室均留采光面,雅奢质感融于分区秩序,既保休憩场域的静谧,又让动线简洁流畅,平衡实用与松弛日常。

本案设计师

康明

特级主任设计师

  1. 168次
  2. 预约数
  1. 18年
  2. 从业年限
  1. 99套
  2. 作品案例

预约TA

轻奢风格的其它案例
更多

【案例】【西山御园】轻奢 五居室 300㎡

闫磊 闫磊 6 4382571浏览 这样装修多少钱?

【案例】【西山壹号院】轻奢 四居室 400㎡

谭为 谭为 9 1142428浏览 这样装修多少钱?

【案例】【宝坻时光小镇101】轻奢 别墅 220㎡

博洛尼 博洛尼 6 902254浏览 这样装修多少钱?

别墅的其它案例
更多

【案例】【龙熙瓦德拉玛庄园】古典 别墅 1314㎡

博洛尼 博洛尼 6 3503833浏览 这样装修多少钱?

【案例】【自在香山】古典 别墅 300㎡

高宏寅 高宏寅 6 1538885浏览 这样装修多少钱?

【案例】【懋源景玺】古典 别墅 775㎡

渠海东 渠海东 11 821807浏览 这样装修多少钱?