×
北京
手机博洛尼 售前:400-6868-692 售后:400-666-3706
所在位置/首页优秀案例/青云上府
点击浏览下一张
案例信息
  • 楼盘名称
  • 案例风格
  • 青云上府
  • 轻奢
  • 案例户型
  • 服务店面
  • 案例面积
  • 设计师
  • 160㎡
  • 康明
案例说明

以意式美学为骨,轻奢质感为魂,用流畅利落的线条勾勒空间轮廓。甄选丝绒、磨砂金属与天然大理石碰撞,中性底色缀以低饱和度暖调,于细节处藏巧思 —— 精致缝线、哑光金属饰边、肌理感面料,平衡奢华与温润。不张扬堆砌,只以精湛工艺诠释生活质感,让空间兼具优雅仪式感与舒适日常感。

客厅
更多客厅灵感

以意式轻奢为魂,亚麻沙发柔化空间,胡桃木与大理石碰撞冷暖。弧形线条勾勒韵律,金属饰边、格栅藏细节。低饱和色调晕染,艺术陈列穿插,让优雅与舒适共融,诠释克制而精致的生活质感 。

客厅
更多客厅灵感

以意式轻奢为核,借大理石的冷冽与胡桃木的温润交织层次。弧形吊灯勾勒韵律,柔纱帘滤入柔光。开放式布局串联流畅动线,金属饰边、肌理面料藏细节,以中性调基底,诠释克制而精致的空间美学 。

客厅
更多客厅灵感

意式轻奢落笔,浅调基底串联大理石冷峻与胡桃木温润。弧形沙发柔化线条,金属细节藏于肌理,柔纱帘筛进漫光。开放式场域消融边界,以克制的精致,平衡优雅仪式与日常松弛 。

卧室
更多卧室灵感

意式轻奢卧室,暖灰基底糅合金属线条,软包床头晕染温柔。玻璃衣柜通透显序,大理石台面藏光韵,灯带勾勒层次。抱枕、陈列暗蕴巧思,于静谧中平衡仪式感,以克制精致诠释睡眠空间的优雅质感 。

厨房
更多厨房灵感

意式轻奢厨房,以高级灰与暖米色铺陈基底,哑光橱柜搭配大理石台面,天然纹理与细腻质感碰撞。嵌入式电器归整秩序,百叶窗柔化光线,暗藏灯带晕染精致,于实用中诠释优雅克制的奢华美学 。

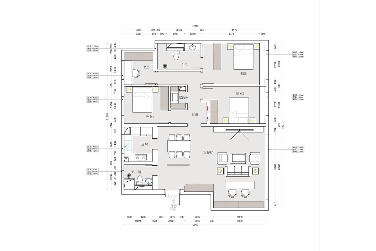
户型图
更多户型图灵感

借户型方正通透之基,凝炼意式轻奢精髓:客餐厨一体铺展开阔场域,大理石与哑光金属交织利落韵律,丝绒、肌理面料晕染温润。低饱和暖调沁润,金属饰边、精致缝线藏巧思,平衡仪式感与日常松弛,诠释优雅克制的生活美学 。

本案设计师

康明

特级主任设计师

  1. 168次
  2. 预约数
  1. 18年
  2. 从业年限
  1. 98套
  2. 作品案例

预约TA

轻奢风格的其它案例
更多

【案例】【西山御园】轻奢 五居室 300㎡

闫磊 闫磊 6 4382961浏览 这样装修多少钱?

【案例】【西山壹号院】轻奢 四居室 400㎡

谭为 谭为 9 1143093浏览 这样装修多少钱?

【案例】【宝坻时光小镇101】轻奢 别墅 220㎡

博洛尼 博洛尼 6 903986浏览 这样装修多少钱?

四居室的其它案例
更多

【案例】【金盛家园】古典 四居室 155㎡

霍禹晨 霍禹晨 5 3624858浏览 这样装修多少钱?

【案例】【西钓鱼台庄园】古典 四居室 141㎡

霍伯骞 霍伯骞 8 2504浏览 这样装修多少钱?

【案例】【潘庄一号院】古典 四居室 160㎡

博洛尼 博洛尼 6 3186283浏览 这样装修多少钱?