









在快节奏的现代生活中,轻奢风设计已然成为品质生活的 “代言人”。它打破了 “奢华即昂贵” 的固有认知,以 “适度精致、舒适至上” 为核心定位,将奢华感融入日常细节,既不刻意彰显财富,又能通过精心设计的空间传递出居住者对生活品质的追求。这种风格的价值在于,它平衡了美学与实用、精致与舒适,让人们在忙碌之余,能在兼具高级感与烟火气的空间中放松身心,享受生活本真的美好,同时也为居住空间赋予了独特的个性与格调。
更多客厅灵感
客厅以暖米色为基底,搭配木纹肌理与黑色线条勾勒层次,悬浮吊顶暗藏灯光柔化氛围。米白沙发配黑玻茶几,叠搭造型单椅与皮质躺椅,精致花艺与艺术吊灯点缀细节,在简约通透的布局中,以材质碰撞与软装层次,尽显低调高级的奢适感。
更多餐厅灵感
餐厅以暖米为基底,圆形吊顶 + 艺术吊灯打造视觉焦点,大理石纹展示柜配暗藏灯槽,质感与氛围兼具。浅白餐桌搭撞色餐椅,黑金属细腿添精致,通透百叶窗引自然光,在柔润色调与细节材质的碰撞中,既显优雅格调,又保用餐舒适感。
更多卧室灵感
卧室以暖白为基底,搭配木饰面与暗藏灯槽柔化氛围。浅调床品叠搭黑纹装饰,极简边柜配艺术台灯,抽象挂画点睛精致感,通透纱帘引自然光,在简约线条与材质层次中,既保寝居松弛感,又以细节透出低调高级的轻奢格调。
更多卧室灵感
卧室以暖白、木色为基底,搭配黑调皮质床具形成撞色层次,肌理墙与暗藏灯槽柔化氛围。极简边柜配金属灯具,艺术摆件点睛精致感,整墙收纳显利落,在舒适寝居基调中,以材质碰撞与细节设计,诠释低调高级的轻奢格调。
更多厨房灵感
厨房以暖木色与黑灰为主调,大理石纹背板作视觉亮点,极简柜面配隐形拉手显利落。中岛台兼顾操作与互动,嵌入式厨电 + 金属五金点缀精致感,自然光与层次灯光柔化冷调,在实用功能中透出低调奢华的质感,适配现代精致生活。
更多厨房灵感
厨房以暖木色与黑灰撞色,大理石纹背板衬出高级感,极简柜面配隐形拉手显利落。中岛台兼作操作与社交区,嵌入式厨电 + 金属吧椅点缀精致,大窗引自然景,灯光层次柔化冷调,在实用与美学间平衡,尽显低调奢华的现代厨居格调。
更多户型图灵感
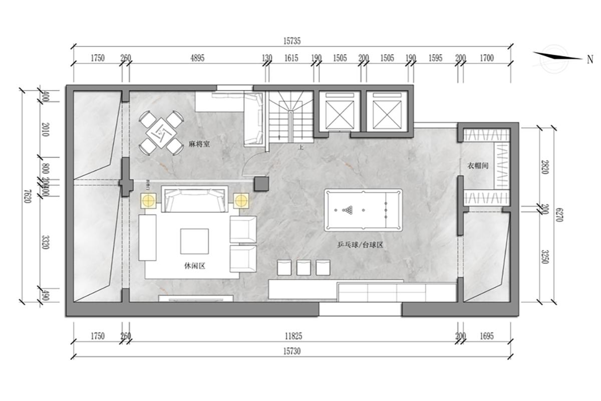
该轻奢风休闲空间分区清晰:设麻将室、台球 / 乒乓球区承载娱乐功能,休闲区适配放松互动,衣帽间兼顾收纳。动线流畅且功能复合,以通透布局弱化边界,搭配精致软装可呼应轻奢质感,既满足多元休闲需求,又在实用中透出高级格调。
更多户型图灵感
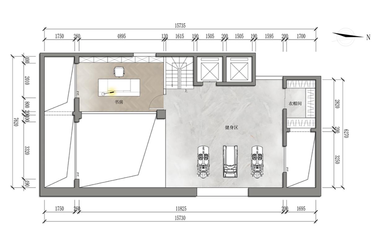
该空间以轻奢为基调,分区明确:书房适配办公阅读,健身区承载运动需求,衣帽间兼顾收纳。动线流畅且功能独立,利用通透布局弱化边界,搭配精致软装可呼应轻奢质感,既满足办公、运动的多元需求,又在实用布局中透出高级生活格调。
更多户型图灵感
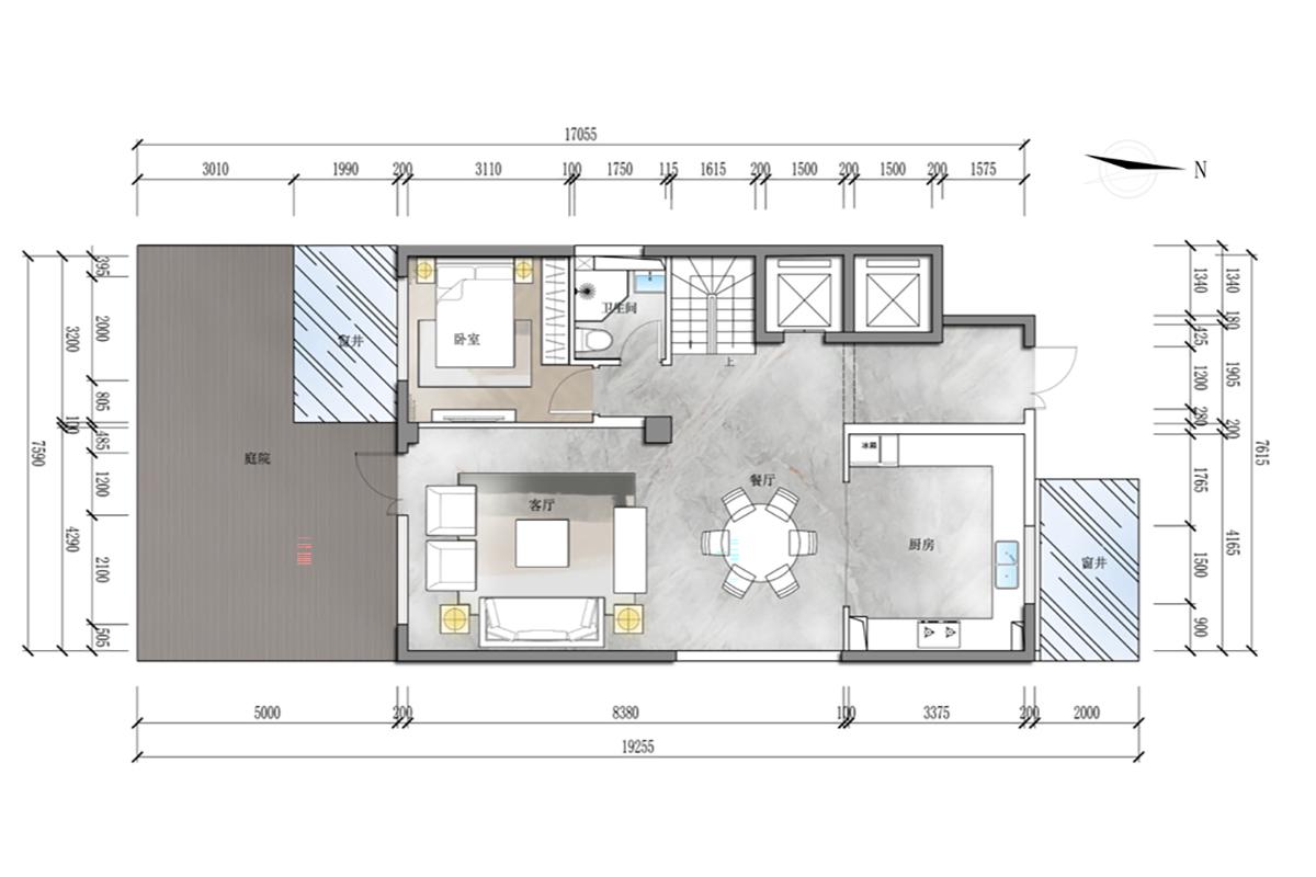
该轻奢风空间布局通透:客厅联动庭院引自然景,餐厨区近厨房增强互动,卧室配独立卫浴保障隐私。动线流畅且功能分区清晰,设备区隐蔽,以庭院衔接室内外空间,搭配精致软装可呼应轻奢质感,既满足起居需求,又显舒适高级的生活格调。
更多户型图灵感
该轻奢风卧室套间布局,设多间卧室适配居住需求,主卧配独立衣帽间与卫浴保障奢适隐私,公卫兼顾便捷。动线流畅且功能分区清晰,以通透布局弱化空间边界,搭配精致软装可呼应轻奢质感,既满足多人起居,又显舒适高级的居住格调。