









本设计以“去繁就简,回归本质”为核心,用利落几何线条勾勒空间骨架,低饱和中性色打底,搭配金属与玻璃的通透质感,弱化冗余装饰。注重功能与美学的平衡,通过模块化布局提升空间利用率,光影错落间营造通透层次感,让居住者在简约纯粹中,感受现代生活的舒适与质感共鸣。
更多户型图灵感
本现代风格设计,双车位车库衔接日常,公区开放式串联客厅、餐厅与操作区,动线清晰。以利落线条消弭冗余,地面纹理呼应空间质感,功能与形式统一,在简约秩序里,营造通透且实用的现代生活场景 。
更多户型图灵感
本层现代设计以 “开放 + 静谧” 为脉络:公区打破边界,沙发区与互动场域交融;卧室区借木质地暖化私密氛围。利落线条串联空间,石材与木的材质对话,在光影流转中,构建简洁而富有层次的现代居住体验 。
更多户型图灵感
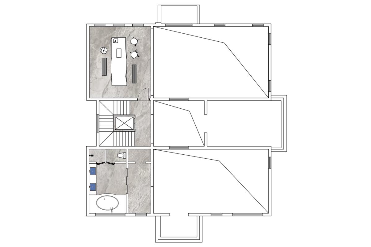
本层以现代简约为纲,构建“工作+休憩”复合场域。办公区开敞显秩序,卫浴借石材彰温润,浴缸与双台盆诠释松弛。楼梯串联动线,摒弃繁杂装饰,凭材质对话与功能咬合,凝萃简洁而有张力的现代居住哲学 。
更多户型图灵感
本层现代设计遵循 “简而有致” 逻辑:石材公区聚合社交与洽谈功能,线条利落;木纹私密区以人字拼营造温润,嵌套休憩场域。摒弃繁饰,借材质碰撞与空间咬合,在简洁秩序中,实现社交与独处的平衡,凝萃现代居住的松弛质感 。
更多户型图灵感
本茶室以低饱和棕调构建现代语境,开放式布局打破边界。线性吊灯勾勒秩序,嵌入式柜体融合收纳与陈列,石材与木作碰撞质感。极简家具适配用餐与茶叙,借材质共生、光影晕染,凝萃简雅且多元的生活场域 。