×
北京
手机博洛尼 售前:400-6868-692 售后:400-666-3706
所在位置/首页优秀案例/万和风景
点击浏览下一张
案例信息
  • 楼盘名称
  • 案例风格
  • 万和风景
  • 现代
  • 案例户型
  • 服务店面
  • 案例面积
  • 设计师
  • 385㎡
  • 康明
案例说明

以 “去繁就简” 为核心,打造现代质感空间。采用中性色打底,搭配金属线条与玻璃材质,勾勒利落轮廓。开放式布局拓宽视野,软装以简约造型为主,融入局部亮色点睛。弱化冗余装饰,强化功能分区,让光影与材质碰撞出纯粹美感,适配现代生活节奏,兼具实用与格调。

客厅
更多客厅灵感

以现代简约为内核,萃取米棕低饱和色调铺陈基底。木作温润与石材肌理碰撞,开放式布局串联场域。线性光带交织点光源,勾勒空间层次;简约家具配艺术挂画,于克制线条里,筑就兼具秩序与温度的松弛起居场 。

客厅
更多客厅灵感

以现代极简思维构建起居场域,电视墙借悬浮结构与嵌入式光带,勾勒利落层次。木调基底糅合深灰块面,搭配简约圆弧家具,让光影在利落线条间流动,于克制美学中,平衡功能与静谧氛围 。

卧室
更多卧室灵感

以米杏调为静谧基底,悬浮灯与线性光带勾勒层次。一体化床头糅合哑光布艺,开放式衣柜嵌灯显通透。借简约陈设串联收纳与休憩功能,让材质肌理与光影对话,在克制秩序中,织就松弛的现代睡眠场域 。

卧室
更多卧室灵感

以米灰调为静谧基底,线性光带与竖纹墙板勾勒层次。悬浮床头融合功能美学,简约家具串联场域。借窗引入自然光,人工光柔化边界,让材质肌理与光影共生,在克制秩序中,筑就松弛的现代睡眠私域 。

卧室
更多卧室灵感

以米白为底,木色作序,串联一体化床头与隐形收纳。点线光源柔化边界,垂坠灯呼应光影层次。借透光帘引入自然,在极简秩序里,筑就去芜存菁的休憩场域 。

其他
更多其他灵感

以现代语汇诠释东方雅意,原木与石材对话,长桌串联茶事动线。线性灯消弭边界,背景水墨肌理暗合留白,在极简秩序里,让茶叙成为材质、光影与人文的共鸣场域 。

户型图
更多户型图灵感

以现代极简为核,车库区选用哑光地坪凸显质感,楼梯衔接处借几何线条梳理动线。摒弃繁杂装饰,以利落边界界定功能。光影漫入时,材质肌理与简约布局呼应,构建理性且精致的入户过渡空间,平衡实用与美学 。

户型图
更多户型图灵感

以现代简约为脉络,开放式布局消融空间边界,起居与休闲区自然串联。甄选低饱和色调与哑光质材,借光影晕染层次。动线明晰,在利落秩序中,兼容社交与休憩功能,塑造舒展又精致的日常场域 。

户型图
更多户型图灵感

依现代逻辑重构场域,餐厨、客厅与户外连贯成境,洄游动线串联功能模块。素色哑光材质打底,线性光带勾勒层次,在简洁秩序里平衡实用与松弛,让空间流淌克制而精致的现代韵律 。

户型图
更多户型图灵感

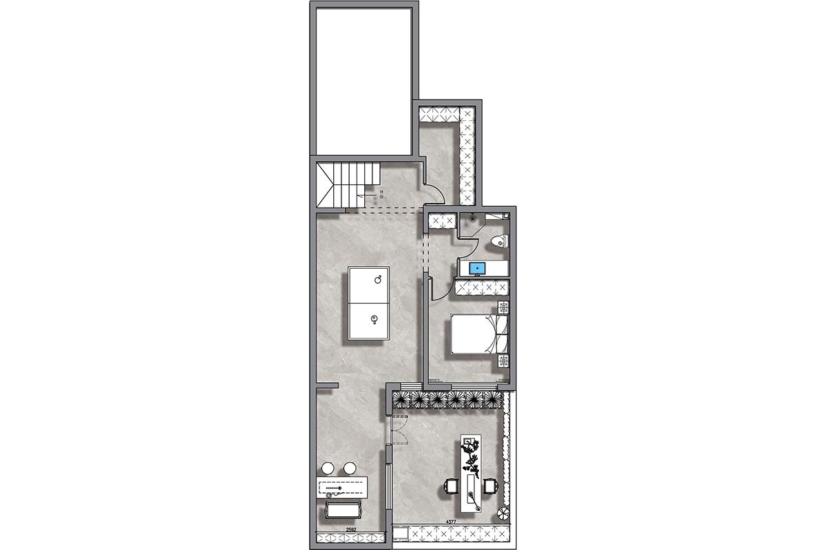
以现代极简逻辑规划休憩层,套房化布局串联睡眠与卫浴功能,动线利落。素色哑光材质打底,线性光带轻描层次,摒弃冗余装饰,让空间在秩序中沉淀静谧,借材质肌理与光影互动,构筑舒适私域 。

本案设计师

康明

特级主任设计师

  1. 168次
  2. 预约数
  1. 18年
  2. 从业年限
  1. 99套
  2. 作品案例

预约TA

现代风格的其它案例
更多

【案例】【金茂府】现代 四居室 140㎡

渠海东 渠海东 7 844534浏览 这样装修多少钱?

【案例】【万国城】现代 二居室 130㎡

霍俐明 霍俐明 7 4381616浏览 这样装修多少钱?

【案例】【棠颂】现代 别墅 360㎡

李延玲 李延玲 12 3547552浏览 这样装修多少钱?

别墅的其它案例
更多

【案例】【龙熙瓦德拉玛庄园】古典 别墅 1314㎡

博洛尼 博洛尼 6 3503962浏览 这样装修多少钱?

【案例】【自在香山】古典 别墅 300㎡

高宏寅 高宏寅 6 1538920浏览 这样装修多少钱?

【案例】【懋源景玺】古典 别墅 775㎡

渠海东 渠海东 11 821925浏览 这样装修多少钱?