×
北京
手机博洛尼 售前:400-6868-692 售后:400-666-3706
所在位置/首页优秀案例/大宁山庄
点击浏览下一张
案例信息
  • 楼盘名称
  • 案例风格
  • 大宁山庄
  • 现代
  • 案例户型
  • 服务店面
  • 案例面积
  • 设计师
  • 210㎡
  • 袁兴光
案例说明

此方案功能需求主要给家里老人居住,小女儿周末节假日过来居住,整体为简约风格,简洁明快,功能至上,颜色采用大地色系为基础色调,构造平静的空间背景,偶尔使用单一低饱和度色彩为点睛之笔,避免视觉纷扰。

客厅
更多客厅灵感

客厅以及餐厅空间矮柜隔断,既可以满足客厅嵌入电视和设备的需求,有可以满足餐厅餐边柜的需求,半高的设计又增加了空间视觉上的通透感

餐厅
更多餐厅灵感

单独就餐区域,是家庭聚会就餐更方便,圆桌的设计也更中式化一些,具有团圆的感觉,简单的背景墙设计,木色部分既体现跳色,竖向设计又实空间视觉上显高。

餐厅
更多餐厅灵感

单独设计吧台以及餐边柜区域,既可以满足老人平时人少就餐需求,又为平时小酌或者冲咖啡提供便利,和下沉式客厅也会有一个互动。

卧室
更多卧室灵感

二层主卧老人居住,配色素雅,床头背景木色和一楼以及三楼卧室呼应,床头背景以及窗帘盒的辅助光源会使灯光更加柔和

卧室
更多卧室灵感

三层主卧保持了原始建筑结构的斜屋顶结构,空间感更好,飘窗以及休闲椅又可以使室内与一楼庭院和三楼露台改造的专属健身区有互动。

卧室
更多卧室灵感

二层客房既是主卧储物的补充,又可以当做临时客房使用,床尾轨道灯设计避免了休息时灯光刺眼的情况,整个配色上素雅,安静,更体现卧室温馨,适合休息

书房
更多书房灵感

三层书房为女儿回家时的办公休闲区,书柜不到顶设计避免了整面墙视觉上的窄且高的感官,顶面天窗的光线也可以打在书柜区域,使空间感更饱满有趣味

其他
更多其他灵感

二层起居室为家人另外一个单独的聚会区域,更加私密,此区域也设置饮水区域,方便二楼居住人的喝水的便利性,无主灯设计也让空间灯光更柔和,温馨

户型图
更多户型图灵感

一层布局上拆除了一个卧室空间做餐厅,使各空间打通,使空间视觉上更加有延伸感,采光更好,每个空间的储物也有相应配置完全满足一楼的使用需求

户型图
更多户型图灵感

二层主要是居住空间,平时只有老人居住,主卧的储物安排在北侧卧室,释放了主卧空间设置按摩椅满足老人的需求

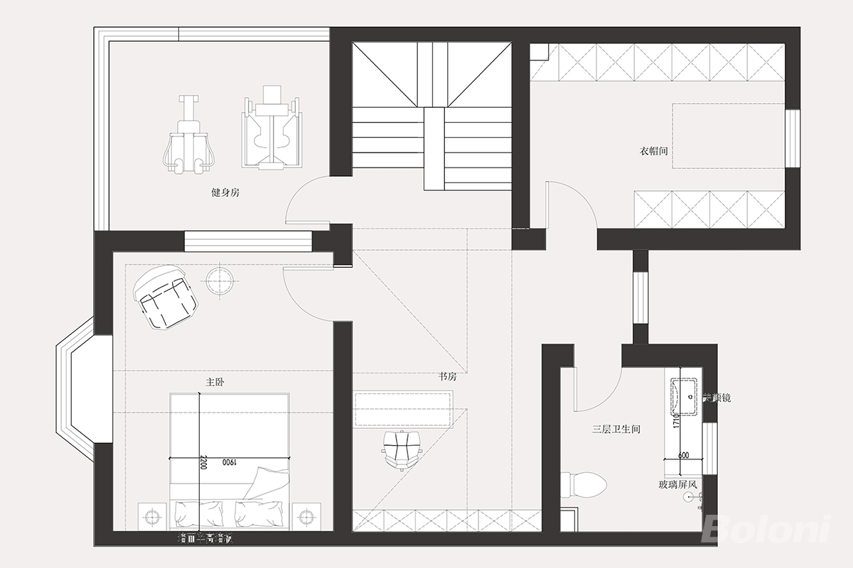
户型图
更多户型图灵感

整个三层的空间都是女儿活动区,南侧露台改为健身房,添加了功能区,北侧卧室改为衣帽间增加储物,书房在布局在中间区,除了北侧窗户采光通风,顶上的天窗也是光线补充,使书房光线也比较充足

本案设计师

袁兴光

资深设计师

  1. 168次
  2. 预约数
  1. 13年
  2. 从业年限
  1. 4套
  2. 作品案例

预约TA

现代风格的其它案例
更多

【案例】【金茂府】现代 四居室 140㎡

渠海东 渠海东 7 844594浏览 这样装修多少钱?

【案例】【万国城】现代 二居室 130㎡

霍俐明 霍俐明 7 4381653浏览 这样装修多少钱?

【案例】【棠颂】现代 别墅 360㎡

李延玲 李延玲 12 3547616浏览 这样装修多少钱?

别墅的其它案例
更多

【案例】【龙熙瓦德拉玛庄园】古典 别墅 1314㎡

博洛尼 博洛尼 6 3504088浏览 这样装修多少钱?

【案例】【自在香山】古典 别墅 300㎡

高宏寅 高宏寅 6 1538934浏览 这样装修多少钱?

【案例】【懋源景玺】古典 别墅 775㎡

渠海东 渠海东 11 822055浏览 这样装修多少钱?