








本案以轻奢风格为基调,旨在打造一个兼具优雅格调与舒适体验的居住空间。在色彩运用上,以米白色、浅灰色等中性色为主色调,奠定空间柔和、宁静的基调,搭配香槟金、玫瑰金等金属色作为点缀,为空间注入精致与奢华感,营造出低调而不失高贵的氛围。材质选择上,运用天然大理石,其独特的纹理增添自然质感与艺术气息;搭配质感细腻的皮革家具,触感柔软舒适,尽显品质;金属线条的巧妙运用,不仅勾勒出空间的轮廓,更提升了整体的精致度。软装布置注重细节与品质,精致的灯具散发柔和光线,营造温馨氛围;艺术摆件与装饰画则为空间增添文化内涵与艺术品味。整个空间在简约中彰显奢华,于细节处体现品质。
更多客厅灵感
采用客厅与餐厅一体化设计,展现出简约而不失高雅的现代轻奢风格。客厅内,浅米色的大弧形沙发搭配造型独特的圆形茶几,柔和而舒适,双层水晶吊灯增添了空间的奢华感。餐厅区域,大理石餐桌与简约餐椅相得益彰,吊灯设计别具一格。大面积落地窗引入自然光线,将窗外风景尽收眼底,室内外景观完美融合。绿植的点缀为空间注入生机与活力,整体设计在简洁中彰显品质,营造出舒适且精致的居住氛围。
更多客厅灵感
客厅空间呈现出现代轻奢的独特韵味。电视背景墙采用木质材料,纹理自然,营造出温暖质朴的氛围。双层水晶吊灯璀璨夺目,为空间增添了华丽感。绿色的单人沙发椅成为视觉亮点,与整体中性色调形成鲜明对比,增添生机。大理石元素的茶几和吧台,质感上乘。电视柜上的简约摆件与绿植,为空间带来自然气息与生活情趣。整体设计在简约的基调下,通过材质与色彩的巧妙搭配,展现出精致、舒适且时尚的居住品质。
更多餐厅灵感
餐厅区域设计简约而时尚,巧妙融合了功能与美感。中央的大理石纹岛台成为视觉焦点,白色柜体搭配绿意纹路,清新雅致,提供额外收纳与操作空间。岛台旁的高脚椅为日常用餐或亲友小聚提供舒适座位。后方厨房区域,白色橱柜简洁大方,大理石背景墙提升整体质感。上方吊柜下方安装灯带,补充操作照明。两盏造型别致的吊灯悬于上方,营造温馨用餐氛围,整个空间色调和谐,尽显现代轻奢格调。
更多卧室灵感
在儿童房的设计中,整体风格简约温馨。房间以柔和的米白色与浅棕色为主色调,营造出舒适宁静的氛围。定制一体化柜体兼具衣柜、书桌与收纳展示功能,洞洞板设计增添灵活性,方便孩子收纳小物件。床铺靠墙摆放,节省空间,条纹床品与抱枕带来清新感。窗边飘窗让自然光线充足进入,窗旁的圆形小凳造型独特。星星形状的吸顶灯可爱有趣,为房间增添童真,整个空间在实用与美观间达到了完美平衡。
更多卧室灵感
卧室以简约优雅为设计主调,营造出宁静舒适的休憩氛围。卧室中央摆放着一张造型独特的褶皱床,白色的床品干净纯粹,搭配棕色靠枕,增添温馨感。床头背景墙采用木质材料,纹理细腻,挂上一幅几何装饰画,提升空间艺术格调。两侧的白色床头柜简洁实用,绿植与小摆件的点缀带来生机与灵动。大窗户引入充足自然光,浅灰色地毯柔软舒适。整体设计在简约中追求品质,细节处彰显精致,打造出静谧而温馨的私人空间。
更多书房灵感
左侧衣帽间玻璃柜门储物柜时尚且实用,透过柜门能隐约看到内部收纳,增添空间通透感。窗边白色矮柜,为收纳或展示提供更多可能。右侧书房,深色书桌与书架一体化,尽显沉稳大气,书架上书籍与摆件有序摆放,文化氛围浓厚。两幅装饰画为墙面增添艺术格调。大窗户引入明亮光线,木地板营造温暖氛围,打造出舒适且具品质的居家区域。
更多衣帽间灵感
左侧为空间的门厅区域,以简约之姿迎接归人,玻璃柜门的设计时尚且实用,既拓展了视觉空间,又方便物品收纳。右侧是主卧内的衣帽间,与主卧共处一室,私密性极佳。深色的书桌搭配开放式书架,功能与美感兼具,摆件与书籍为空间注入生活气息。窗外光线透过窗帘轻柔洒入,木地板传递着温暖质感。两个空间虽不相连,却都以轻奢格调,诠释着舒适精致的居家理念。
更多户型图灵感
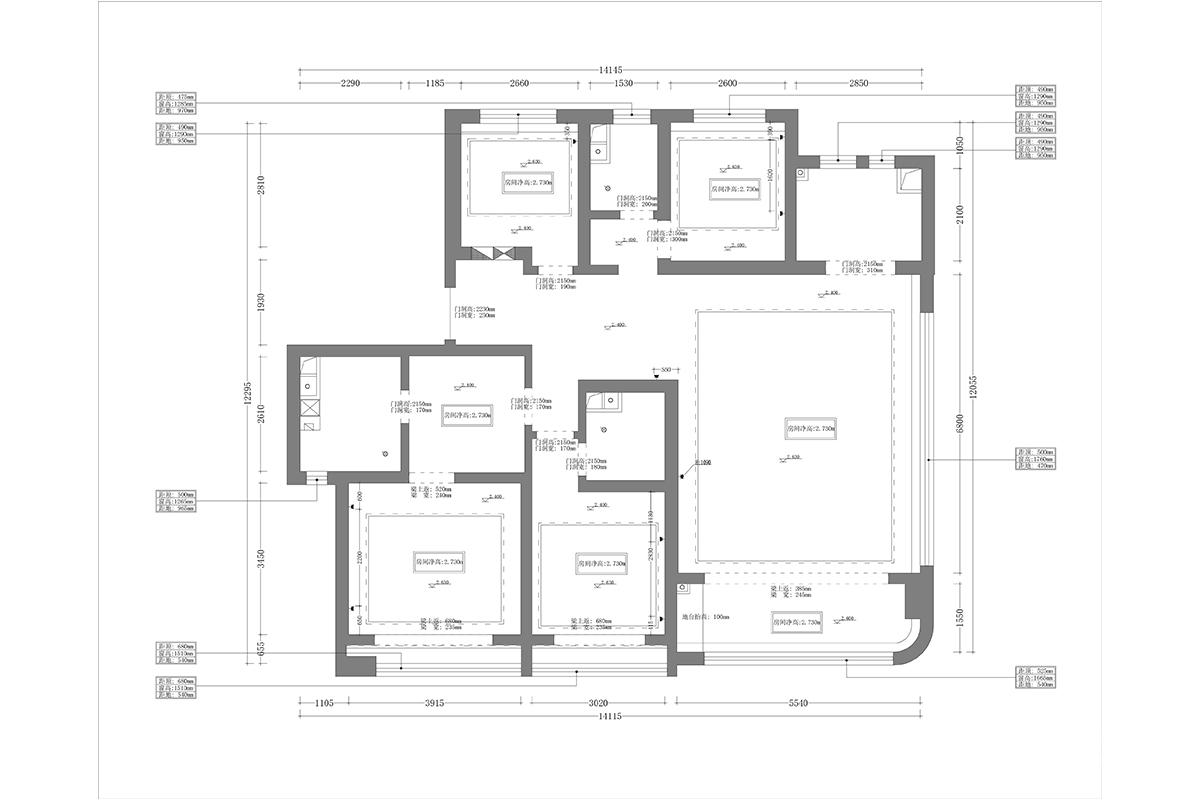
本方案为三室两厅两卫户型设计,整体风格简约实用。入口设玄关,增强收纳与过渡功能。客厅与餐厅一体化,开阔通透,搭配生活阳台,保证充足采光。厨房紧邻餐厅,方便上菜用餐。主卧配独立卫生间和衣帽间,保障私密与舒适。次卧和书房可根据需求灵活使用。双卫设计避免使用高峰冲突。各空间布局紧凑合理,动线流畅,充分利用空间,满足现代家庭生活需求,营造舒适便捷的居住体验。
更多户型图灵感
此户型平面布局以轻奢风格为导向,整体设计精致且富有质感。空间规划合理,动静分区明确,客厅与餐厅相连,营造开阔的公共活动区域,彰显大气风范。卧室布局注重私密与舒适,配备独立卫浴提升居住便利性。材质选择上,融入金属、大理石等元素,增添奢华感。色彩搭配沉稳而不失时尚,线条简洁流畅。细节处精心雕琢,既满足功能需求,又展现出高雅的品味与格调,打造出舒适且具品质感的现代轻奢居住空间。