×
北京
手机博洛尼 售前:400-6868-692 售后:400-666-3706
所在位置/首页优秀案例/棕榈墅
点击浏览下一张
案例信息
  • 楼盘名称
  • 案例风格
  • 棕榈墅
  • 现代
  • 案例户型
  • 服务店面
  • 案例面积
  • 设计师
  • 300㎡
  • 杨枫
案例说明

通过简约的线条、纯粹的色彩与高级的材质,营造出一种低调内敛却不失品味的空间氛围,让奢华渗透于细节,而非流于表面。

客厅
更多客厅灵感

让空间更显明亮通透。餐厅紧邻厨房,方便用餐与烹饪流程的衔接,同时预留出足够的用餐空间,可满足多人聚餐需求。在客厅与餐厅之间,通过地面材质的细微差异或简约的吊顶造型进行自然分区,既保证了空间的整体性,又实现了功能的明确划分。

卧室
更多卧室灵感

卧室区域位于空间内侧,最大化保障居住私密性,其中轻奢卧室设计是整体空间质感的核心体现,以“静谧舒适、精致内敛”为核心,打造兼具睡眠功能性与格调感的休憩空间。主卧采用套间设计,涵盖卧室、独立卫浴与步入式衣帽间,形成完整的私密生活闭环。

卧室
更多卧室灵感

木色轻奢卧室设计是整体空间质感的核心体现,以“静谧舒适、自然雅致”为核心,将木色的温润质感与轻奢格调深度融合,打造兼具睡眠功能性与自然格调感的休憩空间。

玄关
更多玄关灵感

作为入户第一印象的玄关,是连接室外与室内的核心过渡区域,本次设计将其打造为兼具仪式感、实用性与轻奢质感的“归家序曲”。

卫生间
更多卫生间灵感

以“精致实用、格调斐然”为设计核心,将轻奢质感与卫浴功能完美融合,打造兼具舒适体验与美学价值的洗漱休憩空间。

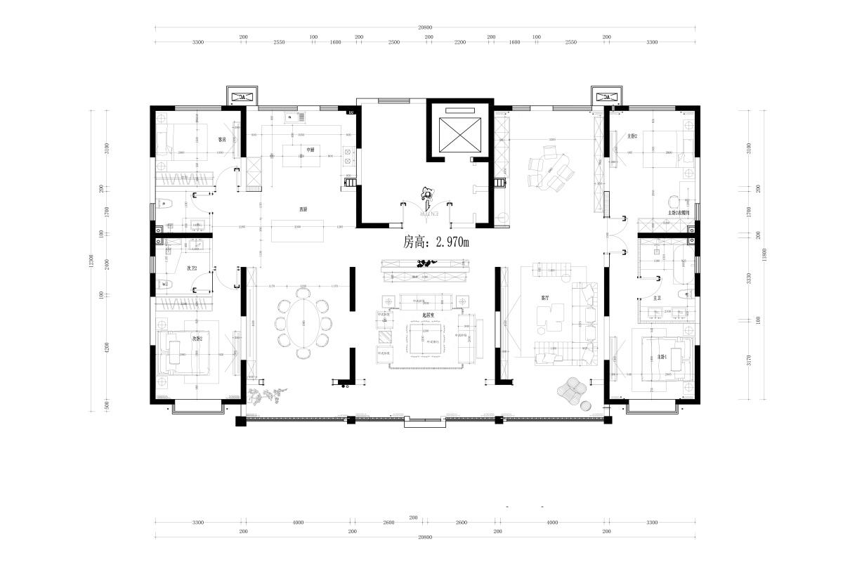
户型图
更多户型图灵感

现代轻奢风格的核心在于“轻”与“奢”的平衡。“轻”代表着简洁、舒适、自由的生活态度,摒弃多余的装饰,回归空间本质;“奢”则体现在对材质、

本案设计师

杨枫

钛马赫别墅设计事务所

  1. 261次
  2. 预约数
  1. 12年
  2. 从业年限
  1. 36套
  2. 作品案例

预约TA

现代风格的其它案例
更多

【案例】【金茂府】现代 四居室 140㎡

渠海东 渠海东 7 844216浏览 这样装修多少钱?

【案例】【万国城】现代 二居室 130㎡

霍俐明 霍俐明 7 4381313浏览 这样装修多少钱?

【案例】【棠颂】现代 别墅 360㎡

李延玲 李延玲 12 3546962浏览 这样装修多少钱?

五居室的其它案例
更多

【案例】【香山艺墅】古典 五居室 380㎡

朱凌 朱凌 8 3610973浏览 这样装修多少钱?

【案例】【东方润园】古典 五居室 260㎡

刘一禛 刘一禛 9 3873119浏览 这样装修多少钱?

【案例】【北河沿大街甲88号】现代 五居室 270㎡

王锋 王锋 6 1084浏览 这样装修多少钱?