





本设计以 “暖调极简・功能共生” 为核心,打造现代宜居空间。整体采用米白 + 浅木色主调,搭配柔和氛围灯,营造温润松弛的居住感。客餐厅以一体化柜体整合收纳与展示,餐区洞洞板墙兼具实用与装饰;主卧用隐形柜 + 格栅背景提升精致感;儿童房通过主题墙绘与组合家具实现学习、休憩功能;厨卫则以简洁线条 + 智能设备保障实用与美观。空间利用上,通过嵌入式设计、多功能家具,在极简视觉下实现储物、休闲等需求的平衡,适配家庭日常多元场景。
更多客厅灵感
整面定制柜以米白 + 浅木色铺陈基调,玻璃展示区嵌入氛围灯,让书籍与藏品成为流动的美学装饰;悬浮式电视柜弱化厚重感,暗藏收纳的同时,留足空间呼吸感。环形吊灯与圆型茶几呼应,柔化空间线条;绒面单椅、模块脚凳则以低饱和暖棕注入松弛质感,再缀一抹绿植,让光影与软装交织出「好看又好住」的日常。
更多餐厅灵感
浅木色餐桌与同质感墙面呼应,柔和米白打底,黑框隐藏门衬出精致层次;弧形转角架把边角空间变成美学收纳区,嵌入式灯槽裹着暖光,让餐边柜里的摆件都浸着松弛感。连桌下都留了鞋物的落脚处,把入户动线的实用需求,藏进了简约温润的视觉里 —— 吃饭、置物、过渡,每个日常动作都被妥帖接住。
更多卧室灵感
这个主卧是 “裹在暖调里的松弛卧室”:米白与浅木色织就柔和基底,隐形衣柜藏起繁杂,只留整洁的墙面呼吸感;床头格栅裹着暖光,木质床架搭着柔棕床品,连云朵吊灯都像揉软的光团。细节里藏着巧思 —— 一边是能挂衣储物的隐形柜,一边是衬着艺术画的轻简墙面,让睡眠的松弛、收纳的实用,都浸在这温温柔柔的氛围里。
更多厨房灵感
浅木色与米白铺就柔和基底,L 型台面把烹饪、备菜、清洗动线串成流畅闭环,嵌入式厨电收走杂乱,只留利落的操作面。窗边的自然光裹着绿植的生机,挂钩、壁龛藏着小物件的归处 —— 既让煎炒烹煮的烟火有了整洁的容器,又让每一次下厨都浸在松弛的秩序里。
更多卫生间灵感
浅暖色调裹着柔和肌理,弧形淋浴房消弭了空间的生硬感,黑框玻璃又衬出利落质感。智能镜带着温显功能,壁龛藏起洗漱用品,连毛巾架都做成简约的线条型 —— 既把如厕、洗漱、沐浴妥帖分区,又让每一处细节都浸着不张扬的精致,实用和颜值在这方小空间里刚好平衡。
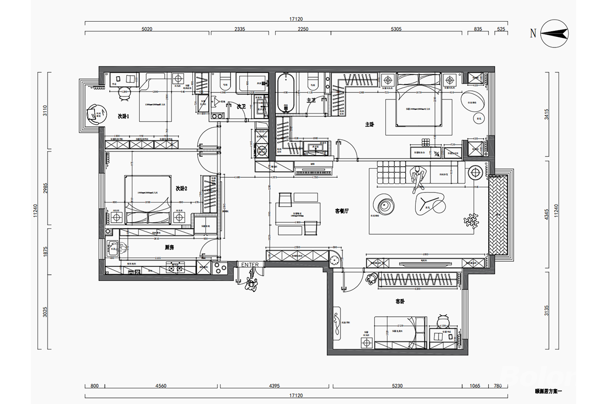
更多户型图灵感
客餐厅 + 厨房形成无界互动场域,既承载家庭聚会的热闹,也能让烹饪、休闲动线自然串联;双次卧 + 主卧的布局,用隐形收纳系统(如次卧嵌入式柜体、主卧隐藏式衣帽间)化解空间压迫感,同时预留儿童房的成长可变空间;卫浴区采用干湿三分离,将洗漱、如厕、沐浴高效分区,搭配家政收纳模块,让日常琐碎被妥帖安放;细节上,餐区洞洞板墙、客餐厅悬浮柜体等设计,在极简视觉里藏着实用巧思,适配现代家庭的多元需求。