









空间以 “通透联动 + 功能分层” 为核心逻辑:一层规划客餐厅、厨房与公卫,客餐区开阔联动,搭配储物功能区,满足日常起居与社交;厨房、公卫布局紧凑实用,动线顺畅。二层为休憩与办公区,设主次卧、书房及双卫,主卧配独立衣帽间强化隐私与收纳,书房兼顾静谧办公需求;楼梯间衔接上下层,动线清晰。整体以自然材质与简约线条为基调,结合嵌入式收纳与通透布局,平衡了空间的功能性与雅致氛围,适配现代家庭的分层生活需求。
更多客厅灵感
深木色与浅灰肌理墙形成层次,地台嵌线性灯柔化空间。浅灰弧形沙发配红棕抱枕,搭同色系单椅,以亮色点缀提升活力;大理石圆桌兼具质感与实用,窗边绿植、艺术摆件添松弛感。灯光用内嵌灯带 + 造型吊灯,暖调烘托高级静谧氛围,整体以低饱和基底 + 亮色点睛,平衡了质感与舒适感。
更多餐厅灵感
餐厅以木色长桌 + 皮质餐椅为主,搭配大理石纹理岛台,兼顾用餐与社交功能;岛台旁设高脚凳,拓展互动场景。空间延续客厅的深木 + 浅灰基底,以红棕单椅、绿植摆件点睛,灯光用线性吊灯 + 内嵌灯带,暖调串联客餐区。整体通透联动,材质对比显质感,既保障功能流畅,又营造出高级松弛的用餐氛围。
更多卧室灵感
以深木 + 浅石纹理墙作床头背景,层次分明;床品用灰、棕低饱和色调,搭配软包床尾凳,营造松弛休憩感。侧设格栅隔断,半透式衔接衣帽间,保障隐私又显通透;金属感台灯与极简软装呼应,强化精致调性。整体以材质对比+ 柔和灯光,平衡了静谧氛围与现代质感,适配主卧的舒适隐私需求。
更多书房灵感
嵌入式格栅书架配纹理背板,内嵌灯带烘托静谧氛围;左侧设长条书桌,搭配人体工学椅,满足办公需求。空间利用嵌入式设计整合收纳与办公区,材质对比(温润木 / 肌理背板)显层次,百叶窗保障采光同时兼顾隐私。整体功能紧凑、氛围舒缓,适配专注办公与轻阅读的双重场景
更多玄关灵感
现代极简风的空间隔断设计:浅棕肌理墙与金属网格玻璃砖形成虚实分区,既保障通透感又界定空间。底部木质地台嵌线性灯,暖光柔化冷硬材质;左侧悬浮台搭配艺术雕塑,提升精致感。整体以低饱和色调 + 材质对比(哑光墙 / 通透砖 / 温润木),营造出高级且松弛的过渡氛围,是功能与美学兼具的隔断设计。
更多玄关灵感
二层玄关,以浅木饰面柜体为基底,嵌入石材展台与悬浮台面,材质对比(温润木 / 肌理石)显层次。展台配艺术雕塑,侧区挂线性吊灯,内嵌灯带烘托暖调氛围,既保障收纳功能,又通过局部留白与灯光设计营造出精致的过渡感。整体简约克制,以细节质感,提升空间格调,适配二层休憩区的静谧氛围。
更多其他灵感
水泥肌理墙为基底,嵌入深浅错落的木饰面置物格,搭配内嵌灯带,暖光烘托出静谧的阅读氛围。书架与楼梯一体化布局,既利用了楼梯旁的闲置空间,又通过书籍、摆件的陈列增添了人文质感。金属扶手与石质台阶强化现代感,,实现了空间利用与美学的双重提升。
更多衣帽间灵感
木饰面贯穿柜体与地面,营造温润整洁的氛围。左侧开放式置物架嵌灯带,分区收纳衣物,兼顾展示与实用;搭配黑白圆凳,提升更衣便利性。右侧设玻璃柜门,弱化封闭感的同时保护隐私,顶部嵌入筒灯补充照明。整体以极简线条 + 嵌入式灯光,实现了收纳功能与舒适氛围的平衡,适配主卧的雅致调性。
更多户型图灵感
以客餐联动为核心,客厅设沙发与休闲区,衔接餐厅形成开阔公共空间,满足社交与日常起居;右侧规划厨房与公卫,动线紧凑实用;楼梯间衔接上下层,周边配置储物功能区,强化空间利用率。整体布局通透流畅,功能分区清晰,适配现代家庭的生活场景。
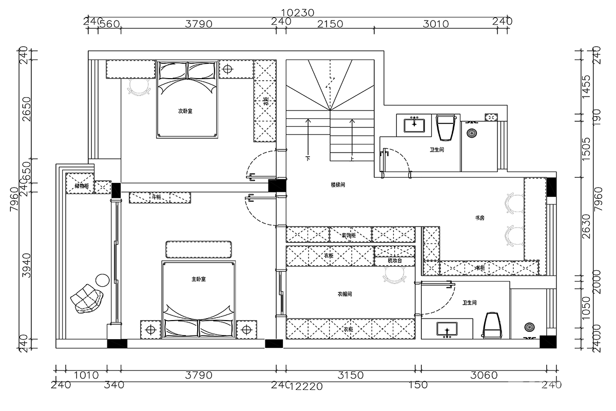
更多户型图灵感
二层布局以休憩与办公为核心功能:设主卧(配独立衣帽间)、次卧保障隐私起居,书房满足静谧办公需求;配置双卫生间提升使用效率,楼梯间衔接上下层,周边嵌入储物区强化收纳。整体分区清晰,动线流畅,既保障了休憩空间的私密性,又通过嵌入式收纳优化了空间利用率,适配家庭的分层生活场景。