






以原木质感贯穿全屋,客餐厅通厅布局借自然材质柔化空间边界,主卧、儿童房以温润木调营造松弛休憩感,功能区动线简洁,用质朴材质串联起舒适烟火气,让家成为兼具实用与治愈的自然系生活容器。
更多客厅灵感
以 “轻简柔境” 为设计理念:用低饱和暖调 + 无主灯灯光,营造松弛的治愈感;线条极简的柜体、家具弱化厚重感,让空间更通透;自然材质(木色)与柔纱帘搭配,平衡现代感与生活温度,打造 “卸下疲惫的松弛角落”。
更多客厅灵感
以暖调极简为基底,通过餐厨与客区的无界衔接弱化空间壁垒,让动线更流畅;木色肌理与层叠灯光柔化现代线条,嵌入轻享操作区,既保生活效率,又晕染松弛氛围,将日常空间转化为 “轻度假式” 治愈场域。
更多卧室灵感
“轻柔栖居・松弛留白” 以暖调极简为基底,用木色肌理、无主灯柔光弱化空间棱角,嵌入飘窗地台拓展松弛角落;通过 “简而有质” 的软装(低饱和床品、轻量装饰画)留白视觉,既保留储物功能的实用,又让睡眠空间回归 “卸下疲惫的温柔容器”,实现舒适与质感的平衡。
更多卧室灵感
“轻潮成长・功能共生” 以简约暖调为基底,整合床、书桌、飘窗形成一体化功能区,适配学习与休憩的双重需求;用潮玩装饰画注入年轻活力,低饱和色系 + 柔和灯光平衡松弛感,既满足空间效率,又让小房间成为 “适配成长的轻潮生活场”。
更多书房灵感
以极简素雅的基底(浅调柜体、柔和光影)弱化空间压迫感,将传统佛龛以 “轻隐式” 融入现代书房,用木色肌理与简洁线条平衡禅意庄重与日常松弛,既保留精神栖居的敬心场域,又让功能空间(储物、阅读)自然相融,实现 “日常使用与精神安顿的共生”。
更多卫生间灵感
“轻氧森居・功能分融” 以热带植物花砖为视觉核心,注入自然松弛感;用玻璃隔断实现干湿分离,同时将洗漱、洗衣功能独立分区,既保障使用效率,又以清新肌理打破卫浴的沉闷感,让实用空间兼具 “森系轻氧” 的治愈氛围。
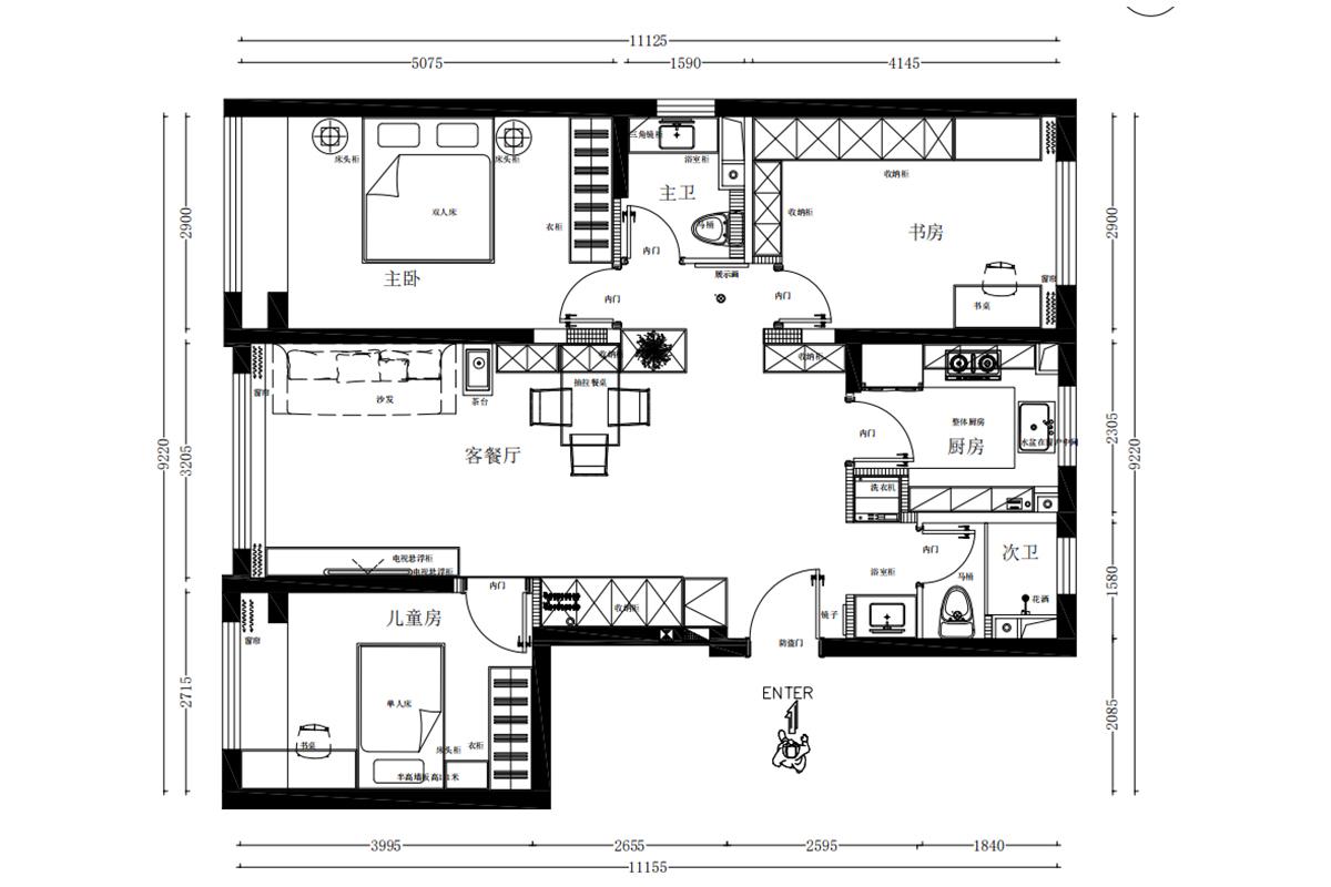
更多户型图灵感
以 “洄游聚场 + 动静分维” 为核心理念:借客餐厨 - 书房的环形动线,让空间流动且开阔;按 “公共(客餐)- 半私密(书房)- 私密(卧)” 分层,兼顾互动与隐私;厨房开敞化、儿童房留可视隔断,把 “家人陪伴” 藏进空间细节里。