










本项目以 “优雅多元 + 质感融合” 为核心,串联起轻奢客餐厨、法式卧室、艺术休闲区等空间。通过古典线条与现代软装的碰撞(如石膏线配亮色家具)、光影层次(天窗、暗藏灯)与材质对比(大理石、木饰面),打造出兼具精致美学与实用功能的居所,适配社交、休憩等多元生活场景。
更多户型图灵感
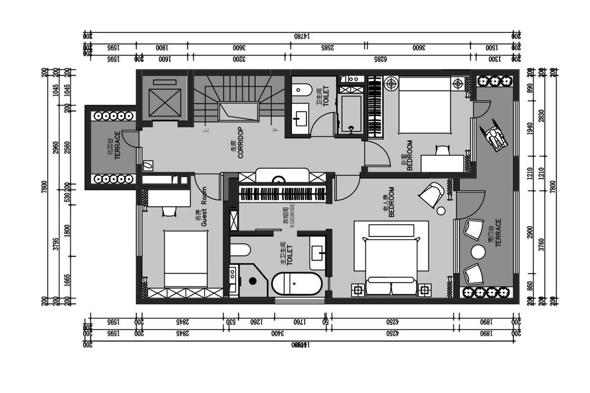
功能分层清晰:低层含双车位车库 + 影音室等辅助空间;中层为餐客厨 + 卧室,满足日常起居;上层设多卧室 + 双露台,强化休憩;另有休闲层(客厅、品茶区)与储物层,空间配置完善,公私分区明确,适配多元生活场景
更多户型图灵感
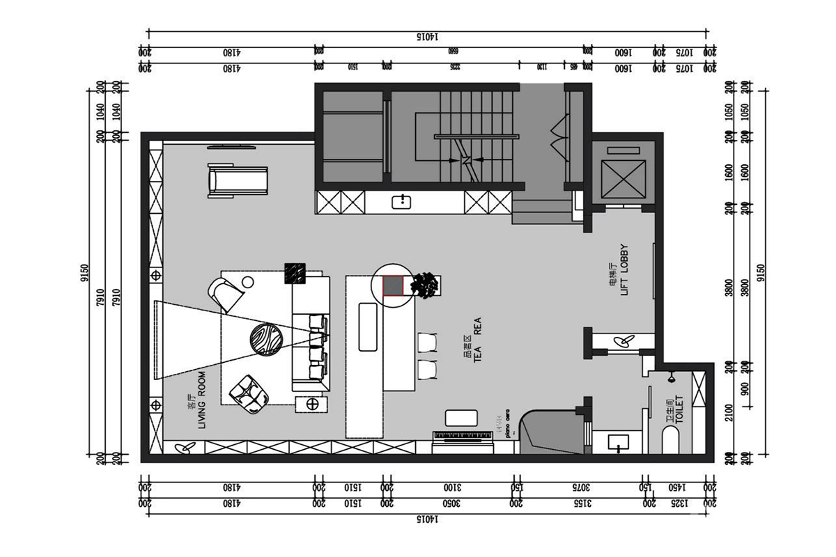
功能分层清晰:低层含双车位车库 + 影音室等辅助空间;中层为餐客厨 + 卧室,满足日常起居;上层设多卧室 + 双露台,强化休憩;另有休闲层(客厅、品茶区)与储物层,空间配置完善,公私分区明确,适配多元生活场景
更多户型图灵感
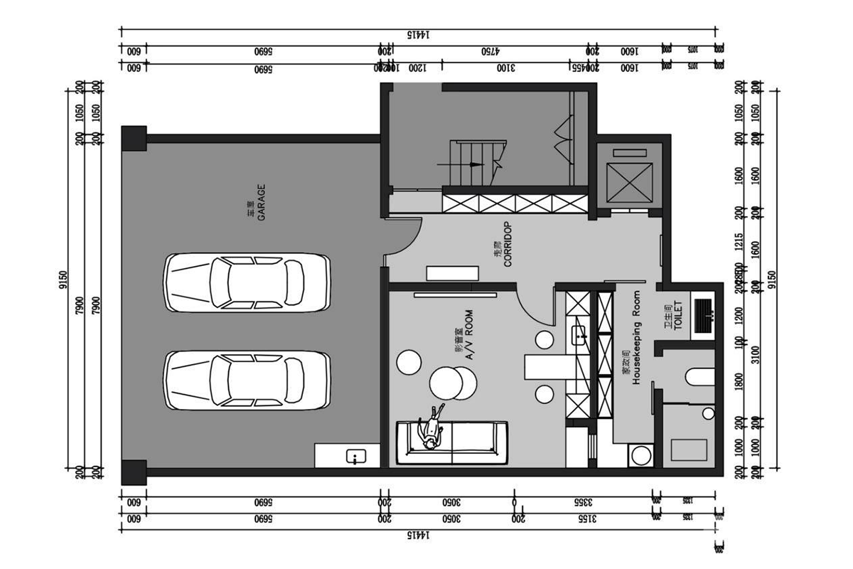
功能分层清晰:低层含双车位车库 + 影音室等辅助空间;中层为餐客厨 + 卧室,满足日常起居;上层设多卧室 + 双露台,强化休憩;另有休闲层(客厅、品茶区)与储物层,空间配置完善,公私分区明确,适配多元生活场景
更多户型图灵感
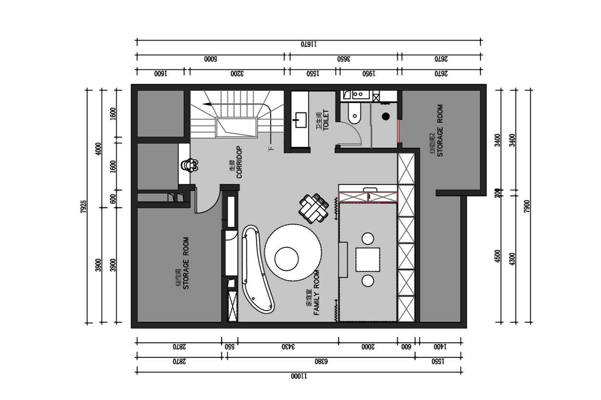
功能分层清晰:低层含双车位车库 + 影音室等辅助空间;中层为餐客厨 + 卧室,满足日常起居;上层设多卧室 + 双露台,强化休憩;另有休闲层(客厅、品茶区)与储物层,空间配置完善,公私分区明确,适配多元生活场景
更多户型图灵感
功能分层清晰:低层含双车位车库 + 影音室等辅助空间;中层为餐客厨 + 卧室,满足日常起居;上层设多卧室 + 双露台,强化休憩;另有休闲层(客厅、品茶区)与储物层,空间配置完善,公私分区明确,适配多元生活场景
更多户型图灵感
功能分层清晰:低层含双车位车库 + 影音室等辅助空间;中层为餐客厨 + 卧室,满足日常起居;上层设多卧室 + 双露台,强化休憩;另有休闲层(客厅、品茶区)与储物层,空间配置完善,公私分区明确,适配多元生活场景