










空间采用现代轻奢风格,以低饱和色调为基底,融合木饰面、皮革等材质,搭配无主灯 + 氛围灯营造层次。客卧注重舒适感,休闲区巧用天窗引自然光,影音酒窖通过星空顶等元素强化沉浸式体验,整体功能与美学兼顾。
更多户型图灵感
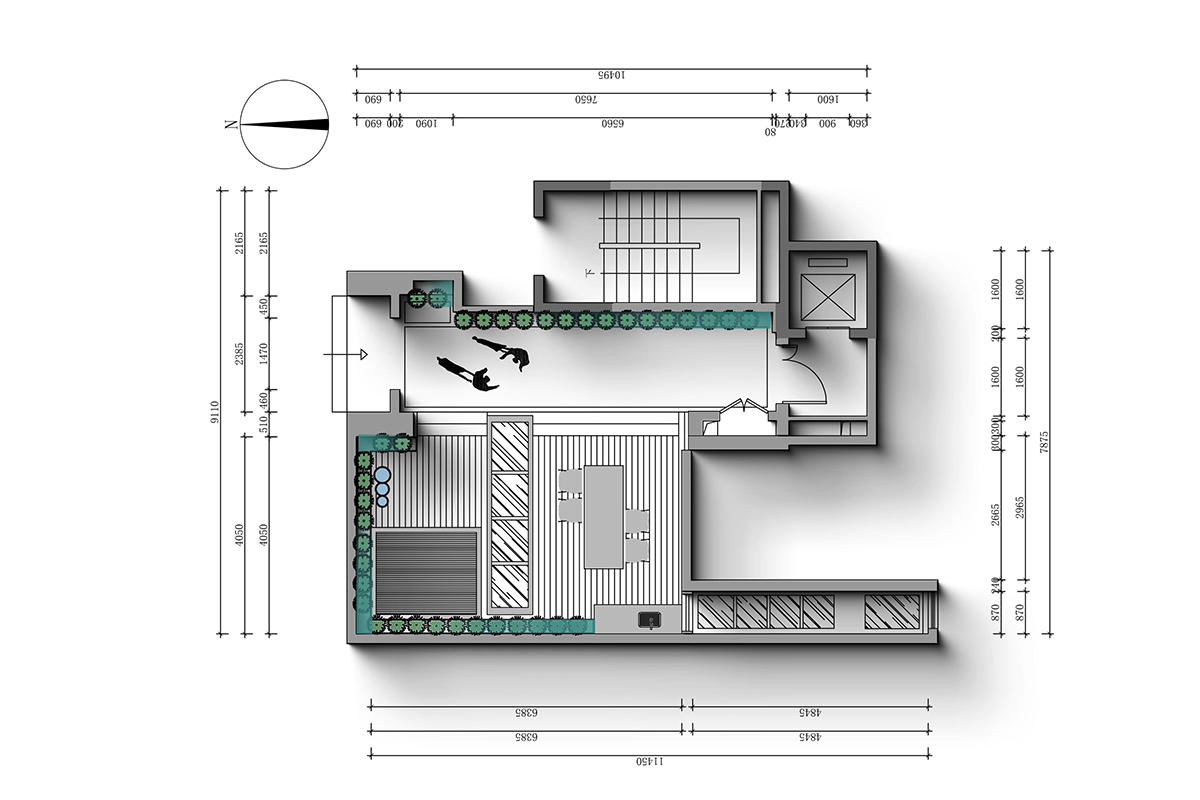
首层是餐厨起居等公共区域,三层为双卧 + 休闲角+衣帽间,四层为主要休息区,搭配生活阳台感受生活的惬意,B2层含双车库 + 影音室,阁楼是家庭厅,B1层为主要会客区。各层动线流畅,公私分区明确,覆盖生活、社交等场景,空间利用率高,适配多元居住需求。
更多户型图灵感
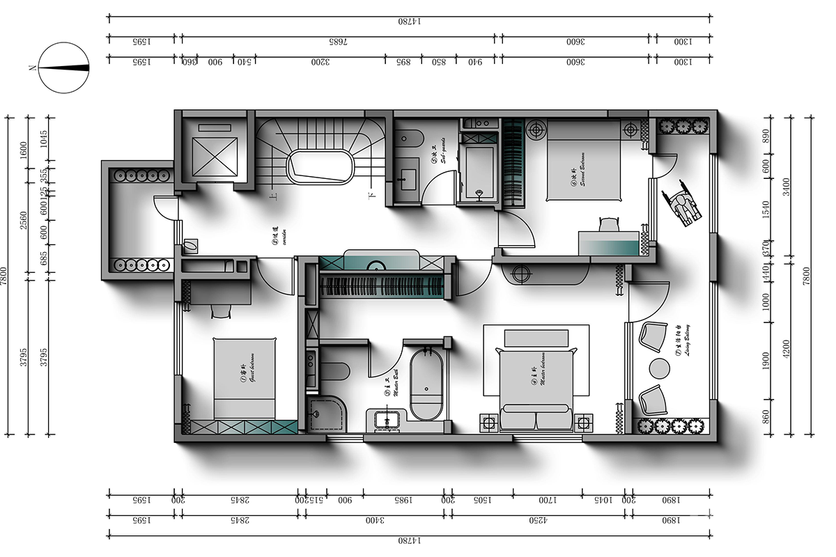
首层是餐厨起居等公共区域,三层为双卧 + 休闲角+衣帽间,四层为主要休息区,搭配生活阳台感受生活的惬意,B2层含双车库 + 影音室,阁楼是家庭厅,B1层为主要会客区。各层动线流畅,公私分区明确,覆盖生活、社交等场景,空间利用率高,适配多元居住需求。
更多户型图灵感
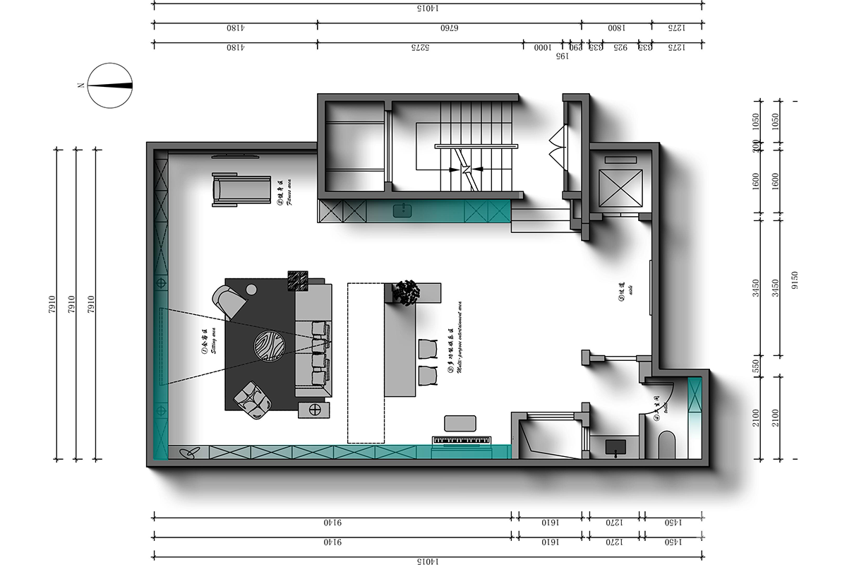
首层是餐厨起居等公共区域,三层为双卧 + 休闲角+衣帽间,四层为主要休息区,搭配生活阳台感受生活的惬意,B2层含双车库 + 影音室,阁楼是家庭厅,B1层为主要会客区。各层动线流畅,公私分区明确,覆盖生活、社交等场景,空间利用率高,适配多元居住需求。
更多户型图灵感
首层是餐厨起居等公共区域,三层为双卧 + 休闲角+衣帽间,四层为主要休息区,搭配生活阳台感受生活的惬意,B2层含双车库 + 影音室,阁楼是家庭厅,B1层为主要会客区。各层动线流畅,公私分区明确,覆盖生活、社交等场景,空间利用率高,适配多元居住需求。
更多户型图灵感
首层是餐厨起居等公共区域,三层为双卧 + 休闲角+衣帽间,四层为主要休息区,搭配生活阳台感受生活的惬意,B2层含双车库 + 影音室,阁楼是家庭厅,B1层为主要会客区。各层动线流畅,公私分区明确,覆盖生活、社交等场景,空间利用率高,适配多元居住需求。
更多户型图灵感
首层是餐厨起居等公共区域,三层为双卧 + 休闲角+衣帽间,四层为主要休息区,搭配生活阳台感受生活的惬意,B2层含双车库 + 影音室,阁楼是家庭厅,B1层为主要会客区。各层动线流畅,公私分区明确,覆盖生活、社交等场景,空间利用率高,适配多元居住需求。