×
北京
手机博洛尼 售前:400-6868-692 售后:400-666-3706
所在位置/首页优秀案例/宜山居
点击浏览下一张
案例信息
  • 楼盘名称
  • 案例风格
  • 宜山居
  • 轻奢
  • 案例户型
  • 服务店面
  • 案例面积
  • 设计师
  • 300㎡
  • 李玉鹏
案例说明

以 “精致松弛的现代起居” 为核:用低饱和色调 + 岩板、金属等质感材质,借弧形吊顶、悬浮家具塑极简线条,以壁炉、艺术灯柔化氛围,平衡视觉高级感与日常舒适感,让轻奢不浮夸、简约不单调。

客厅
更多客厅灵感

岩板背景 + 弧形灯光顶塑高级质感,客餐一体拉通互动动线,壁炉与艺术软装柔化氛围,借大窗引自然光,让空间兼具精致格调与松弛的社交属性。

餐厅
更多餐厅灵感

深调柜面 + 岩板岛台塑高级质感,内嵌灯光与酒柜补全功能,餐厨一体拉通操作动线,软装点缀柔化氛围,让空间兼具精致格调与实用烹饪属性。

卧室
更多卧室灵感

深棕肌理墙 + 低饱和软装衬高级氛围,灯光层次柔化空间,艺术画与简约家具平衡精致感,借大窗引自然光,让卧室兼具松弛舒适与格调质感。

卧室
更多卧室灵感

浅调基底搭深棕细节塑高级感,嵌入式书桌补全功能,艺术画与灯光柔化氛围,借窗引自然光,让卧室在整洁秩序中兼具松弛舒适与精致格调。

卧室
更多卧室灵感

暖棕肌理墙 + 嵌入式储物塑高级质感,灯光层次柔化空间,艺术画与软装平衡精致感,借大窗引自然光,让卧室兼具松弛舒适与格调收纳属性。

卧室
更多卧室灵感

灰调基底搭潮玩软装塑个性质感,书桌 + 储物补全功能,艺术画与足球柔化氛围,借大窗引自然光,让空间兼具学习、休憩属性与青春格调。

卫生间
更多卫生间灵感

用低饱和灰调 + 岩板质感塑高级感,干湿分离 + 洗烘一体补全功能,灯光与通透布局柔化氛围,让卫浴空间既具精致视觉,又兼顾疗愈松弛的使用体验。

卫生间
更多卫生间灵感

用低饱和灰调 + 岩板材质塑高级感,悬浮柜、智能镜 + 内嵌灯组增精致细节,干湿分离兼顾实用,让空间在整洁秩序中透出松弛的舒适质感。

卫生间
更多卫生间灵感

浅调岩板衬简约基底,悬浮台盆 + 灯光置物架塑轻奢细节,干湿分离兼顾实用,装饰画柔化氛围,让卫浴在整洁秩序中兼具松弛舒适的体验感。

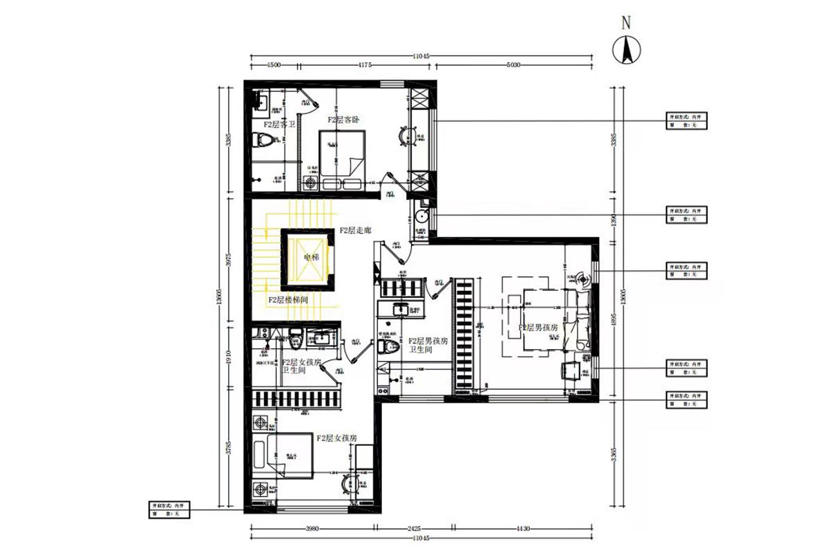
户型图
更多户型图灵感

按功能分层规划起居、卧室区,双卫 + 独立机能间补全生活细节,用现代轻奢的线条与质感,平衡多成员居住的隐私性与空间精致感,让分层布局既实用又具格调。

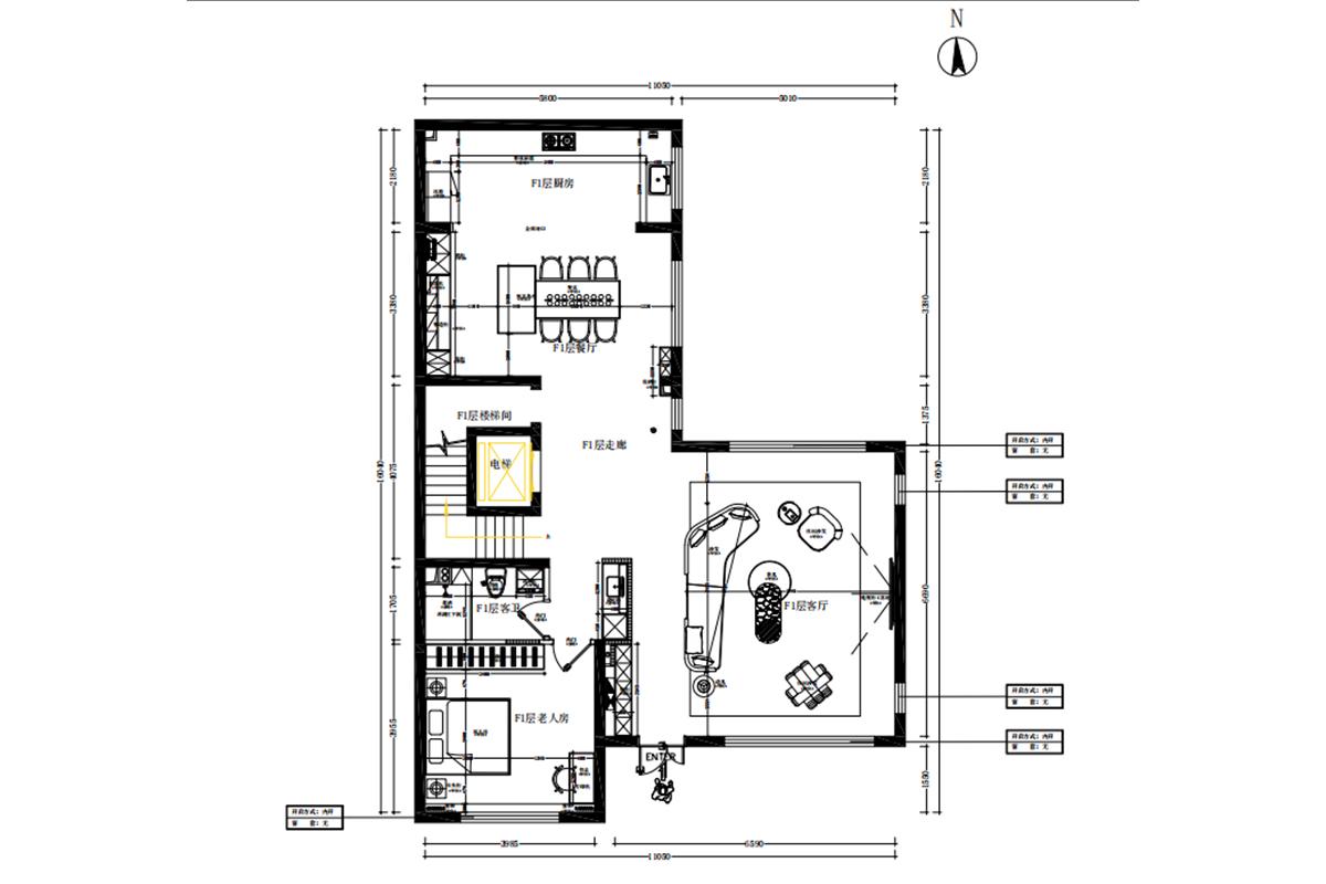
户型图
更多户型图灵感

一层规划餐厨、老人房与公区,适配日常起居与长辈便捷;分层布局既保障空间隐私,又以现代轻奢的整洁质感,平衡多代居住的实用性与居住格调。

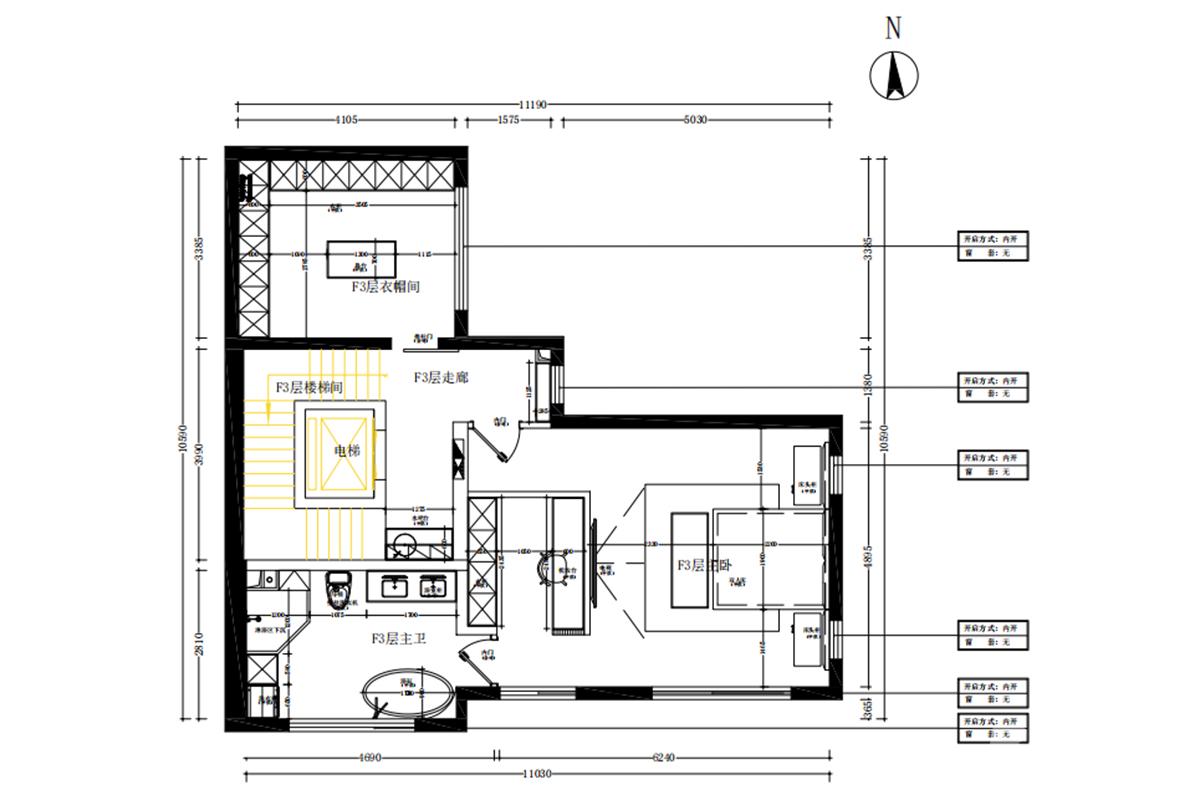
户型图
更多户型图灵感

三层规划主卧、主卫与衣帽间,打造专属私域空间;借独立动线保障隐私,以轻奢质感的布局,平衡休憩的松弛感与空间的精致格调,适配顶层的高端居住需求。

本案设计师

李玉鹏

主任设计师

  1. 168次
  2. 预约数
  1. 10年
  2. 从业年限
  1. 59套
  2. 作品案例

预约TA

轻奢风格的其它案例
更多

【案例】【西山御园】轻奢 五居室 300㎡

闫磊 闫磊 6 4382792浏览 这样装修多少钱?

【案例】【西山壹号院】轻奢 四居室 400㎡

谭为 谭为 9 1142905浏览 这样装修多少钱?

【案例】【宝坻时光小镇101】轻奢 别墅 220㎡

博洛尼 博洛尼 6 903638浏览 这样装修多少钱?

别墅的其它案例
更多

【案例】【龙熙瓦德拉玛庄园】古典 别墅 1314㎡

博洛尼 博洛尼 6 3505530浏览 这样装修多少钱?

【案例】【自在香山】古典 别墅 300㎡

高宏寅 高宏寅 6 1539147浏览 这样装修多少钱?

【案例】【懋源景玺】古典 别墅 775㎡

渠海东 渠海东 11 823234浏览 这样装修多少钱?