






本设计融合现代简约与复古质感,以米白、木棕为基调,打造舒适治愈的居住空间。平面布局功能清晰,动线流畅;空间运用原木、棉麻等自然材质,搭配复古灯具、做旧摆件,在简洁中注入时光韵味。客厅通透雅致,卧室温馨静谧,餐厨与书房兼顾实用与美学,整体呈现出“简约而有温度,复古却不陈旧”的混搭风格,满足现代生活对品质与情怀的双重追求。
更多客厅灵感
本客厅设计融合现代与复古风格,以米白、木棕为基调。线性灯与极简家具体现现代简约,原木柜体、复古单人椅及装饰画注入复古质感,枯枝花艺增添自然温度。整体在简洁中营造出“现代利落又复古雅致”的舒适氛围,实现风格混搭的和谐统一。
更多餐厅灵感
本餐厨空间融合现代与复古风格,以木棕、米白为基调。现代感的简约柜体搭配复古黄铜拉手,复古吊灯、古典装饰画注入怀旧韵味,卡座与编织椅则平衡舒适与质感。整体在功能布局中实现风格混搭,营造出“现代实用又复古温馨”的餐厨氛围,展现出独特的空间美学。
更多卧室灵感
本卧室设计融合现代与复古风格,以米白、深棕为主色调。复古床头、黄铜壁灯、艺术吸顶灯尽显复古韵味,原木家具与棉麻地毯则体现现代简约质感。整体空间在简洁布局中,通过复古元素的点缀,营造出“现代舒适又复古雅致”的休憩氛围,实现风格混搭的和谐统一。
更多卧室灵感
本空间融合现代与复古风格,以米白、原木色为基调。现代简约的墙体与吊顶搭配复古木质家具(如罗汉床、做旧收纳柜),软装中的复古摆件与艺术装置增添时光韵味。整体布局通透,在简洁中营造出“现代松弛又复古雅致”的休闲氛围,实现风格混搭的和谐统一。
更多卧室灵感
本空间融合现代与复古风格,以米白、原木色为基调。现代简约的墙体与吊顶搭配复古木质家具(如罗汉床、做旧收纳柜),软装中的复古摆件与艺术装置增添时光韵味。整体布局通透,在简洁中营造出“现代松弛又复古雅致”的休闲氛围,实现风格混搭的和谐统一。
更多卧室灵感
本卧室融合现代与复古风格,以米白、木棕为基调。现代线性灯与简约柜体保证空间利落,复古壁灯、藤编床头柜、古典花卉油画则注入怀旧质感,棉麻床品与原木元素平衡舒适与韵味。整体在简洁布局中营造出“现代雅致又复古温馨”的休憩氛围,实现风格混搭的和谐统一。
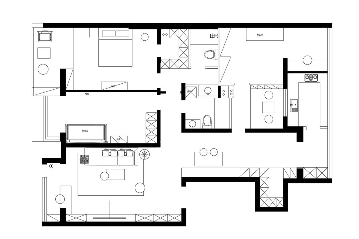
更多户型图灵感
本平面设计为现代风格住宅布局,功能分区清晰。客厅与餐厅联动,空间通透;卧室配备“罗汉床”,兼具休憩与休闲;厨房操作动线流畅,卫生间干湿分离。整体布局高效利用空间,动线合理,通过墙体与家具实现动静分区,满足现代家庭对简洁实用、功能齐全的居住需求。