






本项目以现代简约 + 轻奢质感为核心风格,通过深棕木饰面、哑光石材、皮革与金属的碰撞,营造出兼具沉静力量与精致温度的居住体验,既满足当代人对极简秩序的追求,又通过材质的细腻表达传递高阶生活质感。
更多客厅灵感
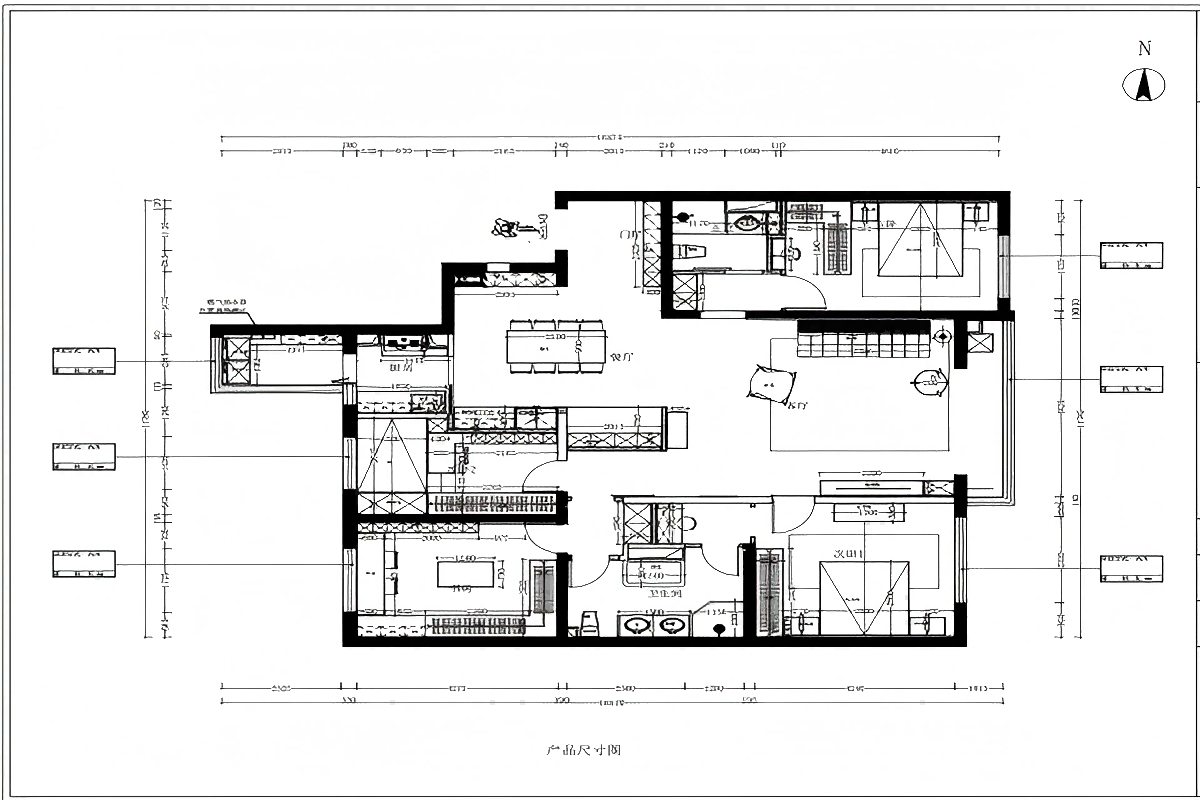
无界洄游动线:打破传统客厅 “沙发 + 电视” 的呆板布局,采用LDK 一体化(客餐厨一体化) 设计,拆除多余隔断墙,让客厅、餐厅、阳台形成连贯的洄游动线;沙发不靠墙摆放,背后预留 60cm 通道,既方便通行,又可作为临时阅读角,放置单人椅与边几,拓展空间功能。
更多客厅灵感
沙发选用焦糖色皮革三人位 + 深灰色布艺单人位的组合,柔和的皮革质感中和木质与石材的冷硬;异形黑胡桃木茶几,边角做圆弧处理,兼顾美观与安全性;窗帘采用双层设计 —— 内层纱帘过滤强光,外层亚麻遮光帘保证隐私,自然光透过纱帘洒入时,空间自带柔和滤镜。
更多卧室灵感
睡眠区围合式布局:床头背景墙采用深色胡桃木满铺 + 软包拼接,软包区域选用浅灰色绒布材质,提升触感舒适度;床两侧不设传统床头柜,改用悬浮式边几,搭配壁灯代替台灯,释放地面空间,让卧室更显开阔;窗帘选用遮光率 90% 的亚麻材质,隔绝外界光线,保证深度睡眠。 衣帽间 + 书房一体化:利用主卧飘窗旁的空间,打造开放式衣帽间 + 嵌入式书桌的组合区 —— 衣帽间采用金属挂杆 + 层板的设计。
更多书房灵感
左侧为开放式衣帽间,以玻璃柜门替代传统实体门,既保持了空间通透感,又能防尘;挂衣区与叠放区清晰划分,满足日常衣物收纳需求。 右侧为嵌入式书房,利用窗边空间打造 L 型书桌,延伸至飘窗区域,形成 “办公 + 休闲” 的复合场景,飘窗处可放置软垫作为临时阅读角。
更多玄关灵感
材质虚实对比:背景墙采用深棕胡桃木饰面 + 天然哑光石材拼接,木饰面区域做竖向格栅肌理,石材区域保留自然斑驳纹理,一暖一冷、一柔一刚的碰撞,让入户第一眼就传递出轻奢质感;地面选用深色防滑岩板,耐脏且与墙面材质呼应,形成视觉闭环。