













本案为别墅住宅,整体风格为现代风格,男主人是房产高管,女主人是全职太太,男方希望以简单明快,又不失调性的搭配来调节室内空间功能区。 因此本案以“现代”的表现形式来满足主人对空间环境感性和理性的需求。餐区与开放的文案区相结合是工作与生活的一种契机,与会客厅彼此互动,感情交流三面为一面的空间规划是整个设计的核心重点。
更多客厅灵感
整体以米白、深棕为基底,色调干净克制。整面无拉手电视背景柜采用上下分色设计,弱化柜体厚重感;顶面弧形悬浮吊顶内嵌线性灯带,柔化空间边界。 中央黑白大理石茶几与黑色皮质休闲椅形成视觉焦点,搭配艺术边几与金属摆件,线条利落又不失细节。浅灰地毯柔化空间,右侧纱帘过滤自然光,整体呈现出高级又松弛的现代家居氛围。
更多客厅灵感
整体以米白、深棕为基底,中央黑色三角钢琴成为视觉焦点,搭配同色系琴凳,彰显艺术质感。左侧区域衔接楼梯与卫浴空间,圆形背光镜与线性灯带柔化边界;右侧玻璃书柜兼具展示与收纳功能,顶面环形灯带勾勒空间层次。 空间动线流畅,钢琴区与功能区自然过渡,落地窗以百叶帘过滤自然光,整体呈现出高级又松弛的艺术家居氛围。
更多客厅灵感
整体以米白、深棕为基底,色调干净克制。整面无拉手电视背景柜弱化了柜体厚重感;顶面弧形悬浮吊顶内嵌线性灯带,柔化空间边界。 中央黑白大理石茶几与黑色皮质沙发、休闲椅形成视觉焦点,搭配艺术边几与金属摆件,线条利落又不失细节。右侧玻璃书柜兼具展示与收纳功能,落地窗以百叶帘过滤自然光,整体呈现出高级又松弛的现代家居氛围。
更多餐厅灵感
整体以米白、深棕为基底,左侧绿白奢石背景墙如流动的山水画卷,奠定空间高级基调。中央圆桌采用大理石台面搭配黑色金属底座,搭配造型独特的白色餐椅,线条利落又不失东方韵味。 顶面环形吊灯柔化空间边界,后方厨房与洗衣区动线流畅,功能分区清晰;落地窗以百叶帘过滤自然光,整体呈现出高级又松弛的餐厨社交氛围。
更多餐厅灵感
整体以米白、深棕为基底,中央圆桌采用大理石台面搭配黑色金属底座,搭配造型独特的白色餐椅,线条利落又不失东方韵味。 背景墙采用绿白奢石纹理,如流动的山水画卷,与右侧同材质电视背景墙形成呼应;左侧玻璃展示柜兼具收纳与展示功能,顶面环形吊灯柔化空间边界,整体呈现出高级又松弛的餐厨社交氛围。
更多卧室灵感
本空间为现代轻奢童趣风女孩儿童房,以兔子主题为核心,打造兼具梦幻感与实用性的成长空间。 视觉核心为灰色绒布兔子造型软包床,大耳朵床头与爪形床尾灵动可爱,亲肤绒布适配儿童使用需求,搭配星星波点床品强化童趣氛围。左侧一体化悬浮书桌、收纳格与通顶衣柜,覆盖学习、收纳全需求,粉色波浪造型椅呼应空间柔美元素。 云朵吊灯柔和护眼,粉色罗马帘与艺术画点缀,整体营造出治愈又充满想象力的成长氛围。
更多卧室灵感
本空间为现代轻奢童趣风女孩儿童房,以软萌兔子为核心主题,打造兼具实用性与成长性的治愈成长空间。 视觉核心是灰色绒布兔子造型软包床,大耳朵床头与爪形床尾灵动可爱,亲肤材质适配儿童使用需求,星星波点床品强化童趣氛围。右侧一体化书桌搭配同系列造型椅,满足日常学习需求。 云朵吊灯柔和护眼,粉色罗马帘与艺术画点缀空间,浅暖灰基底搭配白色地面,整体营造出充满想象力的治愈成长氛围。
更多影音室灵感
整体以浅紫、米白为基底,顶面星空顶搭配线性灯带,营造出置身宇宙的沉浸感;中央浅灰模块化沙发区满足多元观影场景,玻璃茶几与艺术雕塑点缀,线条利落又不失细节。 右侧酒柜与嵌入式冰箱满足多元使用需求,墙面内嵌灯带柔化空间边界,整体呈现出兼具先锋感与实用性的娱乐体验。
更多影音室灵感
整体以浅紫、米白为基底,顶面星空顶搭配线性灯带,营造出置身宇宙的沉浸感;中央巨幕投影与环绕音响构建完整视听系统,带来震撼观影体验。 左侧吧台与嵌入式酒柜满足多元使用需求,玻璃茶几与艺术雕塑点缀空间;墙面内嵌灯带柔化边界,整体呈现出兼具先锋感与实用性的娱乐体验。
更多其他灵感
整体以米白、深棕为基底,中央大理石餐桌搭配金属与皮质餐椅,线条利落又不失东方韵味;顶面艺术吊灯柔化空间边界,右侧玻璃展示柜兼具收纳与展示功能。 左侧绿白奢石背景墙如流动的山水画卷,与右侧同材质电视背景墙形成呼应;浅灰地面与线性灯带柔化空间,整体呈现出高级又松弛的现代家居氛围。
更多户型图灵感
动线枢纽:入户门厅衔接各功能区,左侧设定制鞋柜,实现归家收纳与空间过渡。 静谧品茗区:门厅旁独立茶谷,双圆桌布局适配小型茶叙,定制柜体满足茶具收纳。 多元会客区:大尺度多功能厅,规划沙发区与备餐区,兼顾宴请、休闲等复合场景。
更多户型图灵感
餐厨一体化区:西侧规划完整厨房空间,紧邻中央圆桌餐厅,满足家庭用餐与小型宴请,动线短捷高效。 次起居与休憩区:餐厅旁设开放式起居区,衔接东侧次卧,形成相对独立的次居住单元,适配亲友留宿。 配套功能区:楼梯旁设独立客卫,兼顾便利性与私密性,完善层内功能闭环。
更多户型图灵感
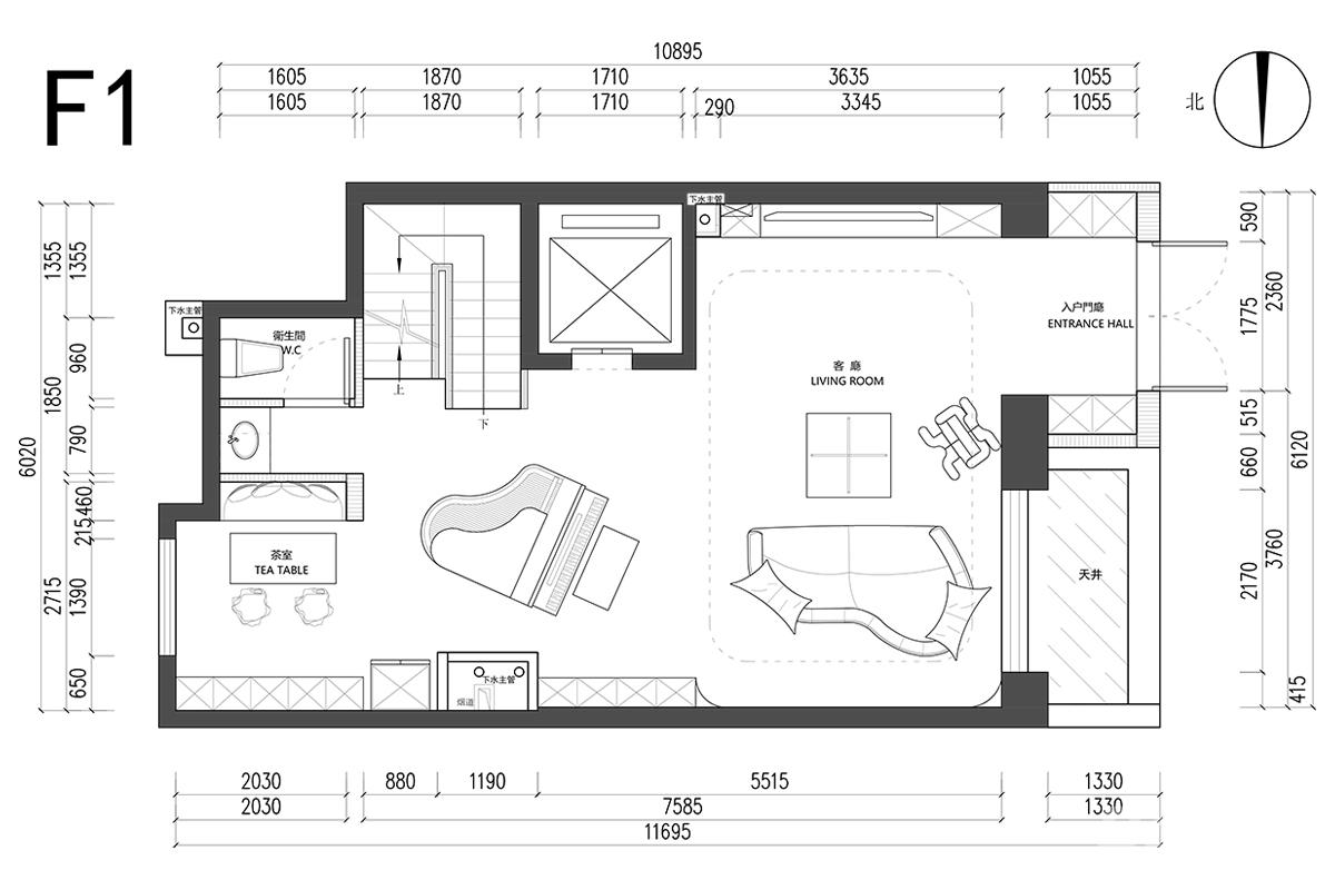
入户门厅:作为归家第一界面,衔接室内外,形成过渡缓冲,彰显大宅入户仪式感。 核心客厅:大尺度开放空间,搭配天井采光,引入自然光线,适配家庭日常与宾客接待。 多元休闲区:中央钢琴区与西侧茶室形成动静分区,既满足艺术陶冶,又可实现品茗雅聚,丰富休闲场景。 配套功能区:楼梯旁独立客卫,兼顾便利性与私密性,完善层内功能闭环。
更多户型图灵感
主卧套间:左侧规划独立主卧,配备专属卫浴,形成完整私密的私享领域,保障主人居住的尊崇与舒适。 双女儿房:右侧布局两间女儿房,共享双台盆卫浴区,既保障独立休憩空间,又兼顾使用便利性,适配家庭成长需求。 动线枢纽:中央楼梯衔接上下层,形成高效垂直动线,同时作为空间过渡,保障各功能区的相对独立。