












奶油风的核心是 “温柔” 与 “低饱和质感”,以柔润色彩、细腻材质与流畅线条为基底,摒弃生硬棱角与浓烈撞色,打造兼具温馨氛围与实用功能的居住空间。本设计针对碧湖居 F1、F2 层户型结构,深度融合 “奶油风” 的柔暖特质与户型原生优势,最大化利用入户门厅、阳台、储物间等功能区域,通过统一的色彩体系、通透的空间规划与隐形收纳设计,让两层空间形成 “上下呼应、层层递进” 的治愈感。 F1 层:核心生活层,柔暖主场F1 层聚焦 “日常起居 + 餐厨互动 + 基础休憩”,以 “通透流畅” 为原则,优化动线设计。 F2 层聚焦 “睡眠 + 私享 + 家政功能”,以 “静谧柔和” 为核心。
更多客厅灵感
本案以「松弛感」为核心设计锚点,融合现代极简的理性秩序与侘寂美学的温润质感,旨在构建一个能够承载日常情绪、疗愈精神的居住容器。通过消弭空间边界、弱化视觉冗余,让居者在纯粹柔和的场域中,回归生活本真的松弛与自在。
更多客厅灵感
整体采用低饱和度的「米白 - 浅灰 - 原木色」作为基底色调,以柔和的中性色铺陈空间情绪,营造静谧舒缓的视觉氛围。局部以深棕抱枕、黑色餐桌及金属线条作为点缀,在低明度色彩碰撞中,赋予空间细腻的层次变化与沉稳气质,避免单调的同时保持整体调性的统一。
更多客厅灵感
软装选择遵循「少而精」的原则:几何感金属边几与肌理感单人椅形成视觉对话,抱枕的色彩搭配呼应空间色系,艺术摆件与花艺点缀则为空间注入人文气息与鲜活感,让极简空间脱离冰冷,成为兼具温度与个性的生活场域。
更多餐厅灵感
整体采用「米白 - 浅灰 - 深棕 - 雅黑」的低饱和色彩叙事: 以大面积米白与浅灰铺陈基底,营造开阔通透的视觉感受; 背景墙的雅黑与柜体的胡桃木色作为视觉锚点,形成沉稳且富有层次的色彩节奏; 浅木色开放格与布艺软装的暖调点缀,让空间在理性秩序中不失温度。
更多卧室灵感
本案以「静谧栖居」为核心设计主题,在现代极简的空间秩序中,融入侘寂美学的温润质感,打造一个能够承载深度休憩与情绪疗愈的私域睡眠场域。通过消弭视觉冗余、柔化光影层次,让居者在纯粹柔和的氛围中,彻底卸下外界纷扰,回归栖居本真的松弛与安宁。
更多厨房灵感
本案以「雅致共生」为核心设计脉络,在现代极简的秩序框架下,融入自然材质的温润质感与轻奢元素的精致细节,打造一个兼具社交属性与私享体验的开放式餐厨场域。通过消弭功能边界、强化材质对话,让烹饪、用餐、社交的行为在无界空间里自然流动,诠释当代雅致的生活方式。
更多玄关灵感
整体采用「米白 - 浅木色 - 浅灰」作为基底色调,以低饱和的柔和色系铺陈空间,营造静谧温润的视觉感受。 米白墙面与浅灰地面构建开阔通透的底色,弱化空间边界感; 浅木色楼梯与造景台的自然纹理,为空间注入温暖质感; 绿植的鲜活绿意与月球灯的柔和白光作为点缀,在统一调性中增添层次与生机。
更多儿童房灵感
本案以「温柔栖居」为核心设计主题,在奶油风的空间框架下,融入柔和的童趣细节与治愈系材质,打造一个兼具松弛感、安全感与温馨感的私域睡眠空间。通过弱化棱角、柔化色彩与光影,让居者在温润柔和的场域中,卸下一日疲惫,回归最纯粹的休憩体验。
更多其他灵感
本案以「秩序化过渡」为核心设计主题,将家政功能区与空间过渡动线深度整合,在极简克制的空间语言中,构建一个兼具实用性与松弛感的枢纽场域。通过消弭视觉冗余、柔化空间边界,让家政操作与垂直动线的行为自然融入整体空间秩序,实现功能与美学的共生。
更多户型图灵感
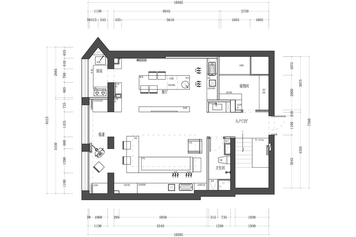
本案以「收纳高效化・动线流畅化・生活质感化」为核心设计脉络,立足碧湖居 F1 户型的结构特性与居家实用需求,聚焦 “日常收纳痛点” 与 “空间动线效率” 两大核心问题,通过精准的功能分区规划、定制化收纳体系植入与适配性材质选型,将入户过渡、餐厨操作、储物整理、休闲阅读等场景深度融合。既保证每个功能区的独立性与实用性,又通过统一的设计语言弱化空间割裂感,最终实现 “小空间不拥挤、功能区不冗余、日常动
更多户型图灵感
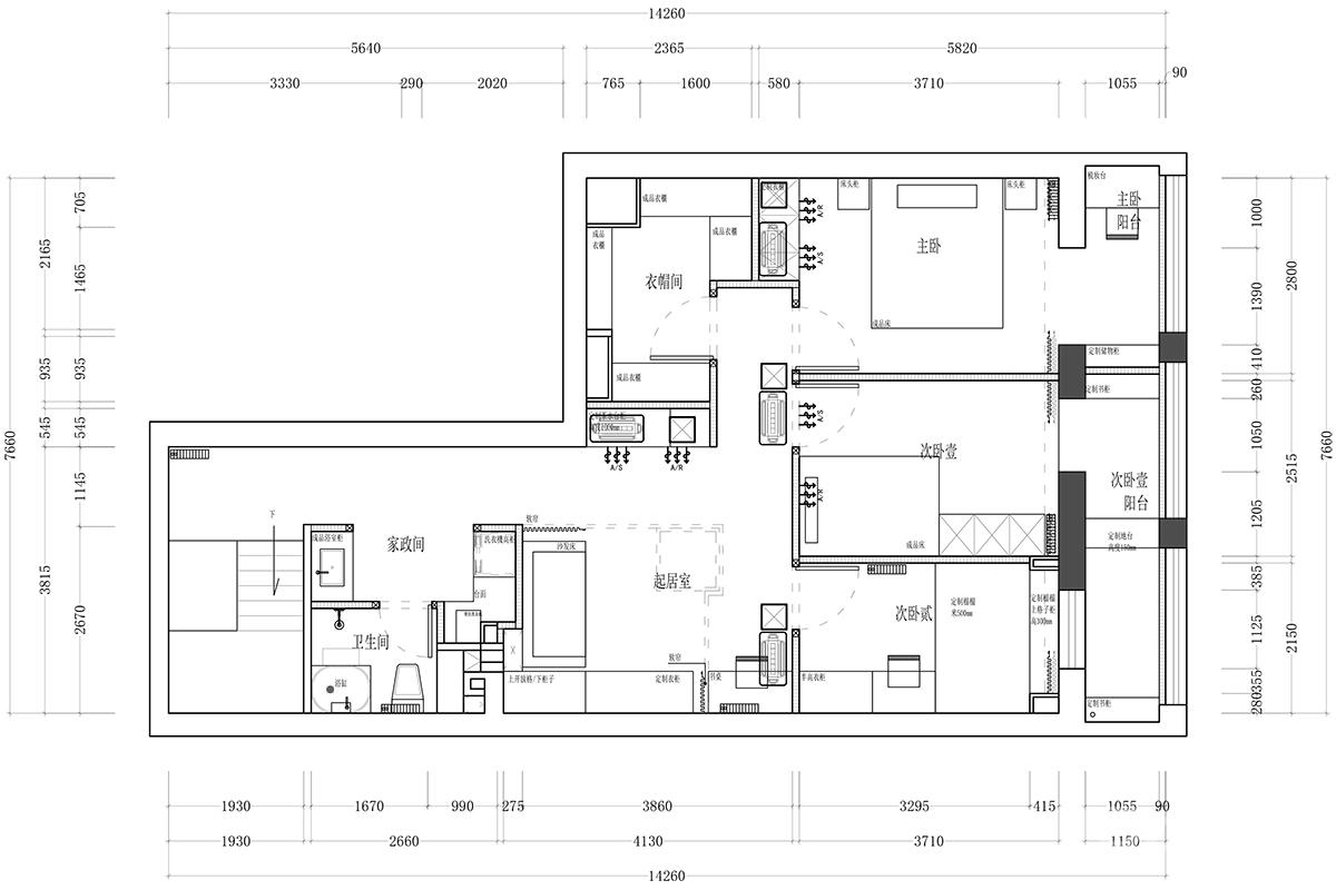
本案以「全龄适配・功能分层・松弛共生」为核心设计脉络,立足该多居室户型的空间结构与多成员家庭的居住需求,通过 “动静分区明确化、功能场景专属化、收纳体系层级化” 的规划逻辑,将公共互动、私密休憩、家务操作、专属收纳等场景深度适配。既保障不同成员(老人、成人、儿童)的独立空间与生活习惯,又通过流畅动线与统一的温润质感,让多空间家庭告别 “杂乱与拥挤”,实现 “各得其所,松弛共生” 的居住体验。