





采光通风优越:客厅和主卧拥有大面积观景窗,次卧和餐厅也有充足采光面,空间布局通透,空气可形成对流,提升了居住的舒适度。 公共空间开阔:客餐厅一体化设计,搭配大面宽观景窗,视觉上非常宽敞,既方便家庭互动,也适合接待亲友。 主卧套房品质高:主卧配置独立卫浴和步入式衣帽间,形成完整的私密套房,大幅提升了居住品质。
更多客厅灵感
格局开阔通透:大面宽的客餐厅一体化设计,搭配整面落地窗,视觉上极大地拓宽了空间感,让公共区域显得气派又敞亮。 动线简洁流畅:沙发区与电视墙形成对称布局,从入户到各个功能区的动线无交叉,日常起居和接待访客都非常顺畅。 收纳与展示兼顾:左侧的镜面与木质柜体组合,既提供了充足的储物空间,又通过镜面反射让空间更显开阔,同时兼具展示功能。
更多餐厅灵感
餐厨一体化设计:中岛台与餐桌无缝衔接,让备餐、用餐和社交的动线非常流畅,既提升了空间利用率,也增强了家人之间的互动感。 中西厨功能融合:橱柜既满足了中式烹饪的储物需求,也预留了西式操作台面和嵌入式电器位,适配现代多元的烹饪方式。 收纳能力充足:顶天立地的橱柜与玻璃酒柜组合,既提供了强大的储物功能,也能展示藏品,兼顾实用与美观。
更多餐厅灵感
现代轻奢质感高级:以深木色、米灰为基调,搭配大理石餐桌、金属线条和悬浮吊顶,营造出沉稳又不失精致的用餐氛围,既显档次又不失温馨。 色彩层次和谐统一:浅棕餐椅与深木色柜体形成柔和的色彩对比,绿植点缀为空间注入活力,让整体氛围松弛又有质感。 灯光层次细腻:悬浮吊顶的氛围灯带与餐桌吊灯结合,满足了不同场景的照明需求,也提升了空间的氛围感。
更多卧室灵感
功能分区清晰:睡眠区、收纳区、休闲区明确划分,动线流畅,从入户到床区的过渡自然,没有冗余的空间浪费。 收纳系统完善:左侧展示柜与右侧顶天立地衣柜结合,既有封闭储物区满足日常收纳,也有开放展示区用于陈列装饰,实用与美观兼备。 通透感强:镜面与玻璃元素的运用,让空间视觉上更开阔,弱化了长走廊的压抑感,同时增加了空间层次。
更多卧室灵感
现代轻奢风格高级感:以米白、浅灰为基调,搭配水晶吊灯、金属线条和艺术挂画,营造出优雅精致的睡眠氛围,既显档次又不失温馨。 色彩层次丰富和谐:橄榄绿、浅灰抱枕与红色休闲椅形成柔和的色彩对比,艺术地毯与装饰画为空间注入活力,让整体氛围松弛又有质感。 灯光层次细腻舒适:悬浮吊顶的氛围灯带、水晶主灯与背景墙的线性灯结合,满足了不同场景的照明需求,也提升了空间的氛围感。
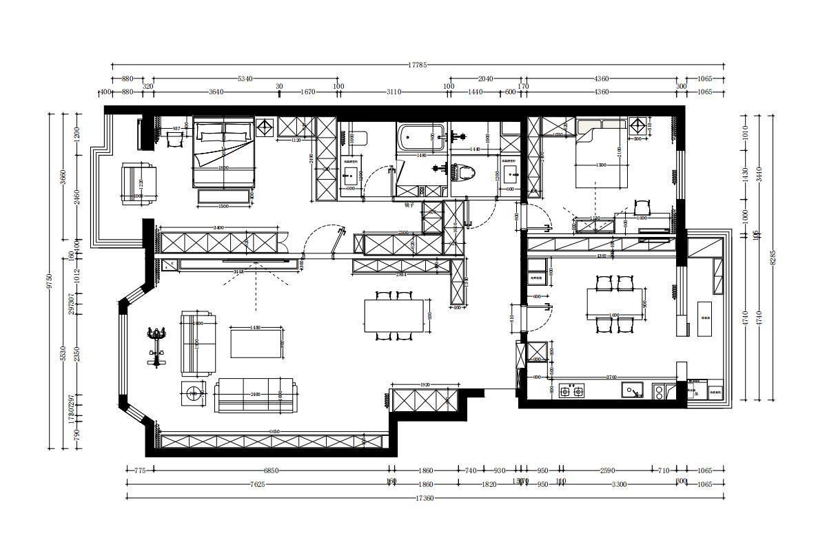
更多户型图灵感
动静分区清晰:公共活动区(客餐厅、厨房)集中在户型南侧和中部,休息区(主卧、次卧)位于北侧和东侧。这种布局有效避免了活动区域对休息区的干扰,保障了卧室的静谧性。 公私分区明确:入户后需经过公共区域才能进入卧室,减少了访客对私人空间的直接打扰,保护了居住隐私。 三卫配置高效:主卧配备独立卫生间,次卧和客卫分离,满足多成员家庭的使用需求,避免了早晚高峰的使用冲突。