





坐标北京海淀·郦城三区,在这片兼具城市烟火与自然绿意的社区里,我们与业主一同,将对家的期待,从一纸蓝图,落地为可触摸的日常。摒弃传统的空间隔断,将客餐厨一体化设计,让烹饪、用餐、会客自然衔接。开放式布局不仅放大了空间感,更让家人互动无界,无论是朋友小聚还是日常陪伴,都能在流畅的动线中,感受家的松弛感。
更多餐厅灵感
功能布局:整面墙的高柜系统将酒柜、收纳柜融为一体,玻璃柜门搭配暖光灯带,让藏品成为空间的装饰;下方大理石台面延伸出餐岛功能,满足中西厨操作需求。 • 灯光与家具:两盏复古穹顶吊灯成为餐桌的视觉焦点,与带有斑马纹布艺和金属脚的餐椅相得益彰,轻奢中透着一丝灵动。
更多卧室灵感
背景墙艺术:床头背景采用定制的立体浮雕硬包,流线型的纹理打破了平面的单调,成为整个空间的艺术核心。 • 衣帽间设计:左侧采用金色金属框架搭配玻璃的半开放式衣帽间,通透轻盈,与深色木饰面形成经典的“黑金”配色,高级感拉满。
更多儿童房灵感
空间规划:采用“L型书桌+整面衣柜”的高效布局,将学习区靠窗设置,最大化利用自然光;床头背景墙采用柔和的硬包材质,保障孩子的安全。 • 风格与色彩:整体色调柔和温馨,浅米色的云朵造型软包床充满童趣,搭配造型独特的奶油风书椅,营造出治愈的成长氛围。
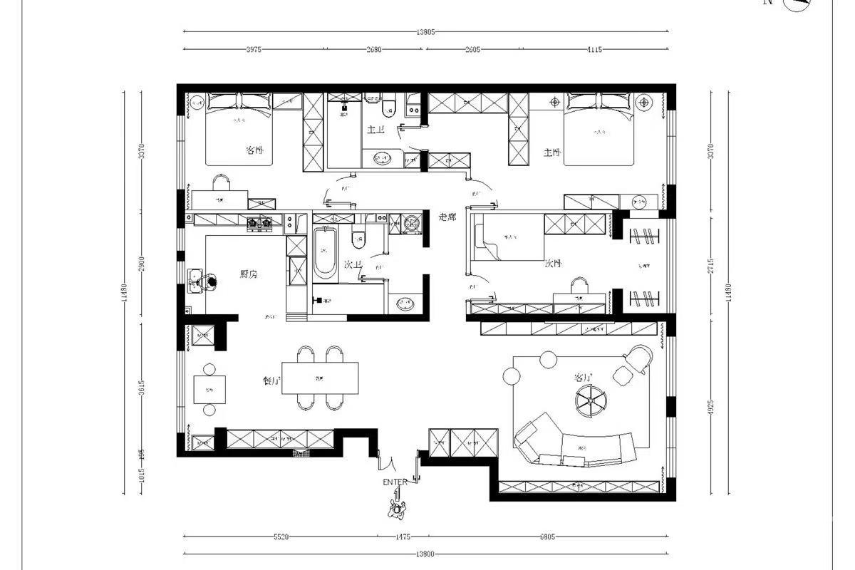
更多户型图灵感
这套方案不仅是对空间的物理重构,更是对生活方式的深度适配。我们通过对动线、功能、收纳、光影的系统性优化,让郦城三区的这套住宅,从一个冰冷的建筑容器,转变为一个有温度、有秩序、有情感的理想家园。