








本方案为改善型三居户型,以 “通透动线、功能分层、舒适宜居” 为核心,兼顾家庭互动与私密需求。 空间布局:采用动静分区设计,左侧为卧室区(主卧带独立衣帽间与主卫、儿童房),保障睡眠与收纳;右侧为客餐厨一体化公区,客厅与餐厅相连,厨房连通生活阳台,形成洄游动线,提升家庭互动效率。 功能优化:双卫设计满足多人使用需求,客卫整合洗衣区,实现干湿分离;主卧套房设计提升居住品质,儿童房预留成长空间。 细节考量:公区采用开放式布局,增强采光与通风;各空间收纳系统完善,兼顾实用性与美观度;阳台预留家政与休闲功能,适配多元生活场景。 整体设计以人本为核心,通过空间重构与功能整合,打造兼具仪式感与烟火气的现代家
更多户型图灵感
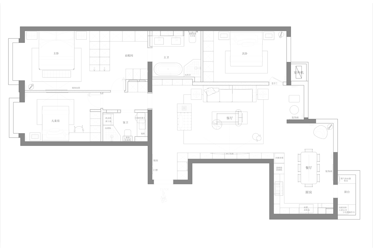
以 “动静分区、通透动线” 为设计核心。左侧为卧室区,主卧带独立衣帽间与主卫,形成私密套房;儿童房预留成长空间,客卫整合洗衣区实现干湿分离。右侧为客餐厨一体化公区,客厅与餐厅相连,厨房连通生活阳台,形成洄游动线,增强家庭互动与采光通风。整体布局完善收纳系统,兼顾实用与仪式感,打造兼具舒适与精致的现代家居环境。