×
北京
手机博洛尼 售前:400-6868-692 售后:400-666-3706
所在位置/首页优秀案例/天润福熙大道
点击浏览下一张
案例信息
  • 楼盘名称
  • 案例风格
  • 天润福熙大道
  • 轻奢
  • 案例户型
  • 服务店面
  • 案例面积
  • 设计师
  • 122㎡
  • 李安然
案例说明

本案为老房翻新,一家三口居住,整体风格定位为意式轻奢风,遵循"少即是多,,删繁就简"的原则,让部分空间保留白色,让每一道线条都藏着韵律。在材质上采用了石材,皮革,不锈钢,原木,冷冽的石材肌理与温润的原木或柔韧的皮革相遇,在纯粹的光影中形成微妙张力。

客厅
更多客厅灵感

客厅餐厅连接,一体化设计,择了造型简约的模块式沙发、几何感的餐椅,无主灯设计搭配线性灯、吊灯,软装少而精,符合“意式极简轻奢”的核心,同时兼顾了实用性。

客厅
更多客厅灵感

客餐一体化的开放式设计,打破空间隔阂,让视野更开阔;家具摆放疏密有致,既保证了活动空间,又让功能区划分清晰。

餐厅
更多餐厅灵感

客餐一体化的开放式设计,打破空间隔阂,让视野更开阔;家具摆放疏密有致,既保证了活动空间,又让功能区划分清晰。

卧室
更多卧室灵感

意式极简风格卧室以 “去冗余、重质感” 为核心,配色上既保留意大利设计的元素,又强调色彩与材质的完美搭配,多以低饱和色为基底, 通过同色系层次、冷暖色微妙平衡,搭配木质、皮革等天然材质的肌理,营造出 “克制不冷淡、高级不疏离” 的舒适氛围。

玄关
更多玄关灵感

玄关是家的第一道风景,它不仅是进入家中的第一印象,更是展示主人品味与风格的重要空间。 颜色为枪灰色+米,使其更意式大气,也能与整体空间风格协调一致。

衣帽间
更多衣帽间灵感

采用一体化设计,将睡眠区与办公区无缝衔接,床头旁的悬浮式书桌节省空间且动线流畅;整面定制柜体满足收纳需求,同时让墙面更整洁统一。

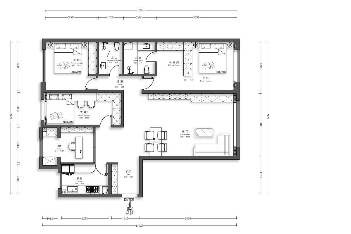
户型图
更多户型图灵感

本案为老房翻新,一家三口居住,整体风格定位为意式轻奢风,遵循"少即是多,,删繁就简"的原则,让部分空间保留白色,让每一道线条都藏着韵律。 在材质上采用了石材,皮革,不锈钢,原木,冷冽的石材肌理与温润的原木或柔韧的皮革相遇,在纯粹的光影中形成微妙张力。

本案设计师

李安然

主任设计师

  1. 168次
  2. 预约数
  1. 14年
  2. 从业年限
  1. 6套
  2. 作品案例

预约TA

轻奢风格的其它案例
更多

【案例】【西山御园】轻奢 五居室 300㎡

闫磊 闫磊 6 4382740浏览 这样装修多少钱?

【案例】【西山壹号院】轻奢 四居室 400㎡

谭为 谭为 9 1142793浏览 这样装修多少钱?

【案例】【宝坻时光小镇101】轻奢 别墅 220㎡

博洛尼 博洛尼 6 903180浏览 这样装修多少钱?

三居室的其它案例
更多

【案例】【富贵园】古典 三居室 200㎡

博洛尼 博洛尼 6 3481817浏览 这样装修多少钱?

【案例】【中海凯旋】古典 三居室 135㎡

于自奇 于自奇 7 5286浏览 这样装修多少钱?

【案例】【世纪城远大园】古典 三居室 140㎡

薛超 薛超 6 1669浏览 这样装修多少钱?