













本案以原木风为核心,融合现代简约与自然质朴的美学理念。通过质朴的材质、柔和的色彩与松弛的线条,营造出宁静、治愈且充满呼吸感的居住氛围,让空间成为心灵的栖居之所。
更多客厅灵感
米白色模块沙发为视觉中心,搭配圆形木质茶几与艺术地毯,界定出舒适的会客与放松区域。 左侧通过拱形门洞连接其他空间,胡桃木藤编柜与高柜组合,兼顾收纳与展示功能。 拱形窗引入自然光,红砖墙面与白色窗帘形成复古质感,让空间更具层次。
更多其他灵感
最大化利用墙面空间,提供充足的操作与收纳区域,一侧靠窗保证自然采光,适合长时间办公与阅读。 左侧为封闭式吊柜 + 开放式洞洞板 + 灯带层板,右侧为玻璃门高柜,兼顾展示与隐藏收纳,让空间整洁有序。
更多户型图灵感
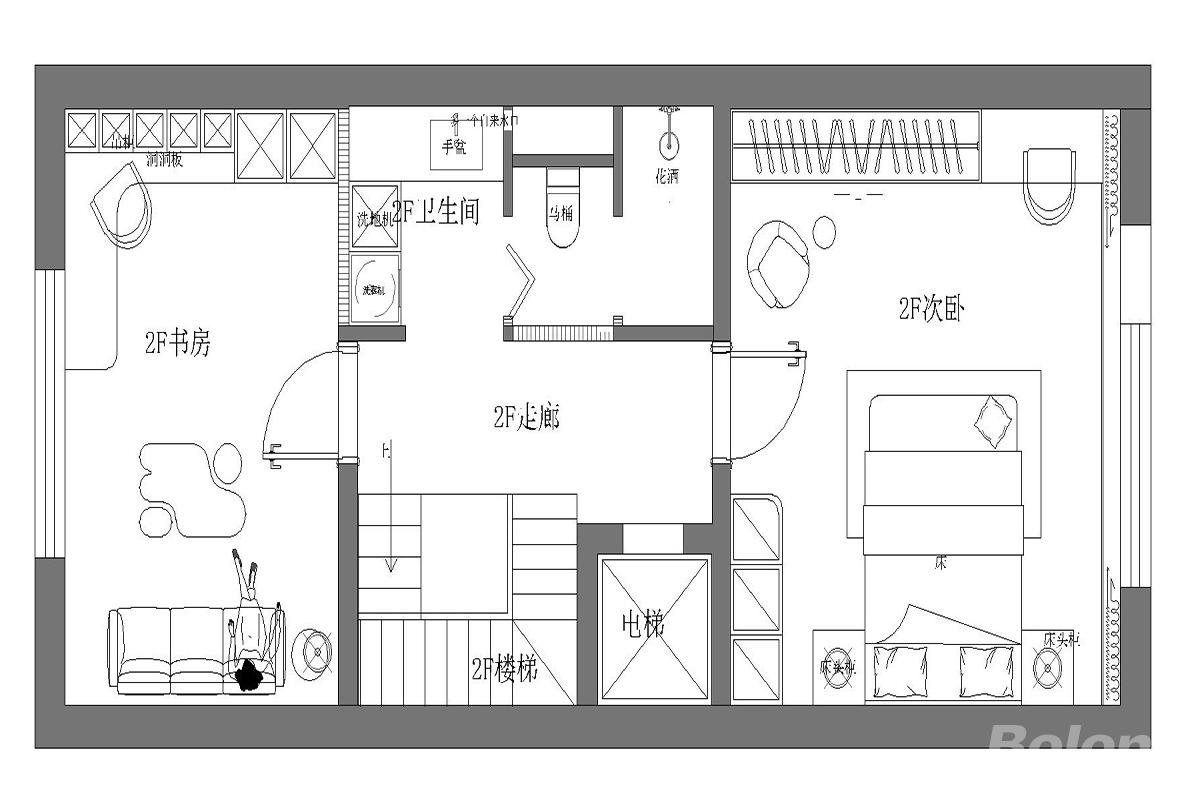
这是一张住宅二层平面布局图,清晰划分了功能区域,整体动线流畅,兼顾了私密与公共需求。 位于左侧,是独立安静的工作区。 沙发、休闲座椅、洞洞板收纳墙,适合办公与放松。 与卧室区分离,避免噪音干扰,采光良好。
更多户型图灵感
这是住宅三层私密主卧层,核心为一套完整的主卧套房设计,是整屋的核心居住区域,私密性与舒适度拉满。 占据右侧核心区域,是整屋最大的卧室空间。 大床、双床头柜、书桌、通高衣柜,还预留了休闲角落,功能完整。 带独立采光面,与主卫、衣帽间形成套房,居住体验奢华。