×
北京
手机博洛尼 售前:400-6868-692 售后:400-666-3706
所在位置/首页优秀案例/万科云庐
点击浏览下一张
案例信息
  • 楼盘名称
  • 案例风格
  • 万科云庐
  • 奶油
  • 案例户型
  • 服务店面
  • 案例面积
  • 设计师
  • 350㎡
  • 渠海东
案例说明

本方案以轻法式奶油风为核心,融合现代简约与法式浪漫,通过柔和的色彩、流畅的曲线与精致的细节,打造一个兼具优雅质感与舒适放松的睡眠休憩空间。设计摒弃了传统法式的繁复雕花,以轻盈的线条、温润的材质和低饱和度色彩,营造出 “温柔而有力量” 的空间氛围,让居住者在日常中感受诗意与松弛感。

客厅
更多客厅灵感

以j家具复古中古风为基调,深棕木色碰撞奶油白,墨绿窗帘点睛。融合温润实木与精致金属灯饰,动线通透,于烟火日常中沉淀优雅静谧的复古质感。木色为底,奶油为肤,墨绿点睛。揉合中古家具的温润与现代光影的灵动,客餐一体化布局,让复古韵味在通透空间里,生长出松弛的居家诗意。

客厅
更多客厅灵感

以轻法式奶油为核心,奶油白皮质沙发搭配深棕木色家具,复古绿橱柜与水晶吊灯点缀其间。客餐厨一体化布局,通透动线融合精致软装与温润材质,营造优雅松弛的现代居家氛围。

餐厅
更多餐厅灵感

以轻法式复古为基调,以奶油白柜体与复古绿背景墙形成撞色,搭配黑色实木餐桌椅与水晶吊灯,温润木色地板与双层窗帘柔化空间,在通透光线中营造兼具仪式感与松弛感的用餐氛围。

卧室
更多卧室灵感

以轻法式奶油风为基调,用奶油白打底,复古绿背景墙点睛,搭配深棕木地板与柔润织物。弧形沙发弱化硬朗感,石膏线条复刻法式优雅,光线通透,营造治愈松弛的休憩氛围。

卧室
更多卧室灵感

以轻法式美学勾勒主卧轮廓,奶油白铺陈温柔底色,孔雀绿背景墙注入复古韵味。软包床头的细腻、花纹床品的精致与艺术摆件的点缀相得益彰,通透动线搭配柔和光影,让空间在优雅质感中,尽显治愈舒缓的睡眠氛围。

其他
更多其他灵感

以轻法式奶油为基调,以奶油白柜体与复古绿背景墙形成撞色,搭配黑色实木餐桌椅与水晶吊灯,温润木色地板与双层窗帘柔化空间,在通透光线中营造兼具仪式感与松弛感的用餐氛围。

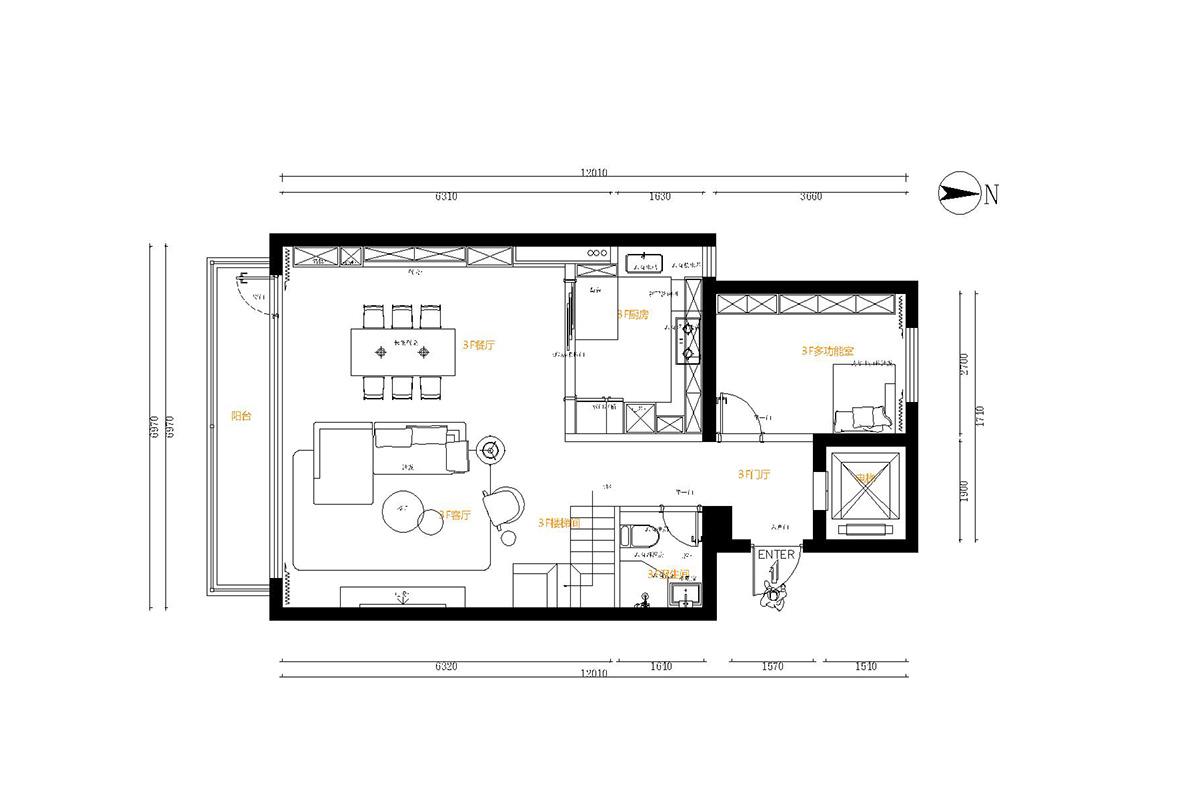
户型图
更多户型图灵感

本方案为三层轻法式复古风住宅平面,以客餐厨一体化布局串联核心动线,阳台与客厅相连,拓展采光与休闲空间。多功能室兼顾灵活使用,楼梯与门厅形成有序过渡,整体布局通透流畅,兼顾实用与美学。

户型图
更多户型图灵感

本方案为三层轻法式复古风住宅平面,以客餐厨一体化布局串联核心动线,阳台与客厅相连,拓展采光与休闲空间。多功能室兼顾灵活使用,楼梯与门厅形成有序过渡,整体布局通透流畅,兼顾实用与美学

户型图
更多户型图灵感

本方案以轻法式复古为基调,采用动静分区布局:主卧与主卫形成私密套房,小书房与大书房满足多元办公需求,储物间与楼梯间优化收纳与动线过渡,整体功能清晰、尺度宜人,兼顾优雅质感与实用主义。

本案设计师

渠海东

别墅设计事务所

  1. 265次
  2. 预约数
  1. 15年
  2. 从业年限
  1. 109套
  2. 作品案例

预约TA

奶油风格的其它案例
更多

【案例】【澳林观邸】奶油 四居室 200㎡

康明 康明 9 73960浏览 这样装修多少钱?

【案例】【首城国际】奶油 二居室 150㎡

叶曼 叶曼 6 515548浏览 这样装修多少钱?

【案例】【豪柏公寓】奶油 三居室 128㎡

蒋胜 蒋胜 6 3763浏览 这样装修多少钱?

三居室的其它案例
更多

【案例】【富贵园】古典 三居室 200㎡

博洛尼 博洛尼 6 3481933浏览 这样装修多少钱?

【案例】【中海凯旋】古典 三居室 135㎡

于自奇 于自奇 7 5493浏览 这样装修多少钱?

【案例】【世纪城远大园】古典 三居室 140㎡

薛超 薛超 6 1689浏览 这样装修多少钱?