×
北京
手机博洛尼 售前:400-6868-692 售后:400-666-3706
所在位置/首页优秀案例/西山美墅馆
点击浏览下一张
案例信息
  • 楼盘名称
  • 案例风格
  • 西山美墅馆
  • 法式
  • 案例户型
  • 服务店面
  • 案例面积
  • 设计师
  • 170㎡
  • 王旭
案例说明

业主追求优雅松弛、兼具仪式感与实用性的生活方式,偏爱法式古典美学,希望保留经典的线条感与精致感,同时避免过度繁复,适配现代生活节奏。同时注重空间的采光与通透感,让自然光线成为空间的一部分。希望家既有复古文艺的格调,又能承载舒适放松的生活场景。

客厅
更多客厅灵感

对称双窗与壁炉造型,还原法式古典秩序感,弱化厚重感,通透轻盈。黑色曲线吊灯、艺术感花卉挂画与自然花艺点缀,平衡理性结构与感性温度,营造慵懒优雅的复古轻奢氛围。

客厅
更多客厅灵感

白色墙面与精致石膏线勾勒立面层次,双拱形门洞打破封闭感,对称布局延续法式秩序感,通透轻盈。米白墙面奠定柔和基调,墨绿绒面沙发与同色系地毯形成视觉呼应,木质底座与黑白花纹家具碰撞出复古轻奢质感。

餐厅
更多餐厅灵感

玻璃移门与大窗引入自然采光,通透感与仪式感并存。复古球形吊灯、艺术装饰画与自然花艺点缀,平衡古典韵味与现代舒适,营造慵懒雅致的用餐场景。

卧室
更多卧室灵感

以米白为基底,搭配墨绿床品与黑色线条软装,形成经典法式配色,冷暖平衡不沉闷,尽显温柔质感。复古球形吊灯搭配艺术挂画,绿植与摆件点缀角落,既保留了法式的精致浪漫,又兼顾了日常居住的实用与松弛。

书房
更多书房灵感

顶面精致石膏线勾勒法式古典轮廓,浅木色柜体与 L 型书桌形成规整的功能布局,玻璃展示柜与落地窗引入自然采光与通透感,在秩序中营造松弛氛围。

厨房
更多厨房灵感

黑白配色的上下柜与抽屉组合,形成规整的法式立面层次,L 型布局高效利用动线,兼顾操作流畅与视觉平衡。

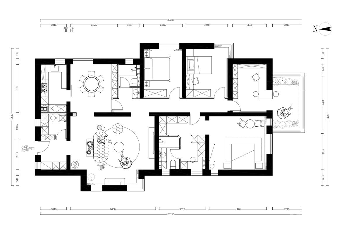
户型图
更多户型图灵感

动静分区清晰、客餐厅开放通透、功能布局完整且兼顾社交与私密需求,同时通过柔和的弧形家具与流畅动线,营造出法式松弛感与生活仪式感。

本案设计师

王旭

主任设计师

  1. 168次
  2. 预约数
  1. 13年
  2. 从业年限
  1. 18套
  2. 作品案例

预约TA

法式风格的其它案例
更多

【案例】【大郊亭】法式 三居室 160㎡

赵波 赵波 6 5739浏览 这样装修多少钱?

【案例】【玉海园】法式 跃层/loft 120㎡

代伟欣 代伟欣 7 1197370浏览 这样装修多少钱?

【案例】【京西悦府】法式 别墅 300㎡

赵波 赵波 6 3029浏览 这样装修多少钱?

四居室的其它案例
更多

【案例】【金盛家园】古典 四居室 155㎡

霍禹晨 霍禹晨 5 3624590浏览 这样装修多少钱?

【案例】【陶然亭】古典 四居室 117㎡

袁媛 袁媛 6 2701浏览 这样装修多少钱?

【案例】【西钓鱼台庄园】古典 四居室 141㎡

霍伯骞 霍伯骞 8 2157浏览 这样装修多少钱?