×
北京
手机博洛尼 售前:400-6868-692 售后:400-666-3706
所在位置/首页优秀案例/金地璟宸
点击浏览下一张
案例信息
  • 楼盘名称
  • 案例风格
  • 金地璟宸
  • 现代
  • 案例户型
  • 服务店面
  • 案例面积
  • 设计师
  • 230㎡
  • 王旭
案例说明

整体空间以现代简约为内核,通过简洁线条、高级材质、克制装饰,实现 “空而不空,简而不凡” 的视觉效果,既满足业主对实用功能的需求,又传递出从容、雅致的生活态度,让每一处细节都成为生活质感的延伸。

客厅
更多客厅灵感

整面无把手隐形门与嵌入式柜体形成统一立面,弱化视觉干扰,强化空间纵深感;中岛与长桌的组合,模糊了餐厨与社交的边界,符合当代开放型生活方式。

客厅
更多客厅灵感

以米白、深灰为基底,搭配大理石台面与金属线条,弱化冗余装饰,凸显材质本身的细腻肌理,营造沉静高级的氛围。

卧室
更多卧室灵感

以米白、浅灰为基调,搭配暖棕床品与浅木色地板,弱化视觉冲突,营造温润柔和的氛围;哑光墙面与细腻织物的碰撞,让空间更具层次与温度。

玄关
更多玄关灵感

左侧通顶收纳展示柜,将储物与陈列功能结合,灯带勾勒出立体层次右侧设置休闲单椅与洞洞板,打破走廊的单调感,实现 “过渡 + 展示 + 休憩” 的多元场景。

影音室
更多影音室灵感

趣味雕塑、条纹艺术单椅与绿植点缀其间,在简约基调中注入灵动与温度;通顶收纳柜与留白墙面平衡了实用与审美,践行 “少即是多” 的现代设计哲学。

户型图
更多户型图灵感

F1:厨房与客餐厅的隔空呼应,强化了互动性与通透感,符合现代生活方式。动静分区清晰,既满足了公共区域的开放社交,又保证了卧室区的静谧休憩。

户型图
更多户型图灵感

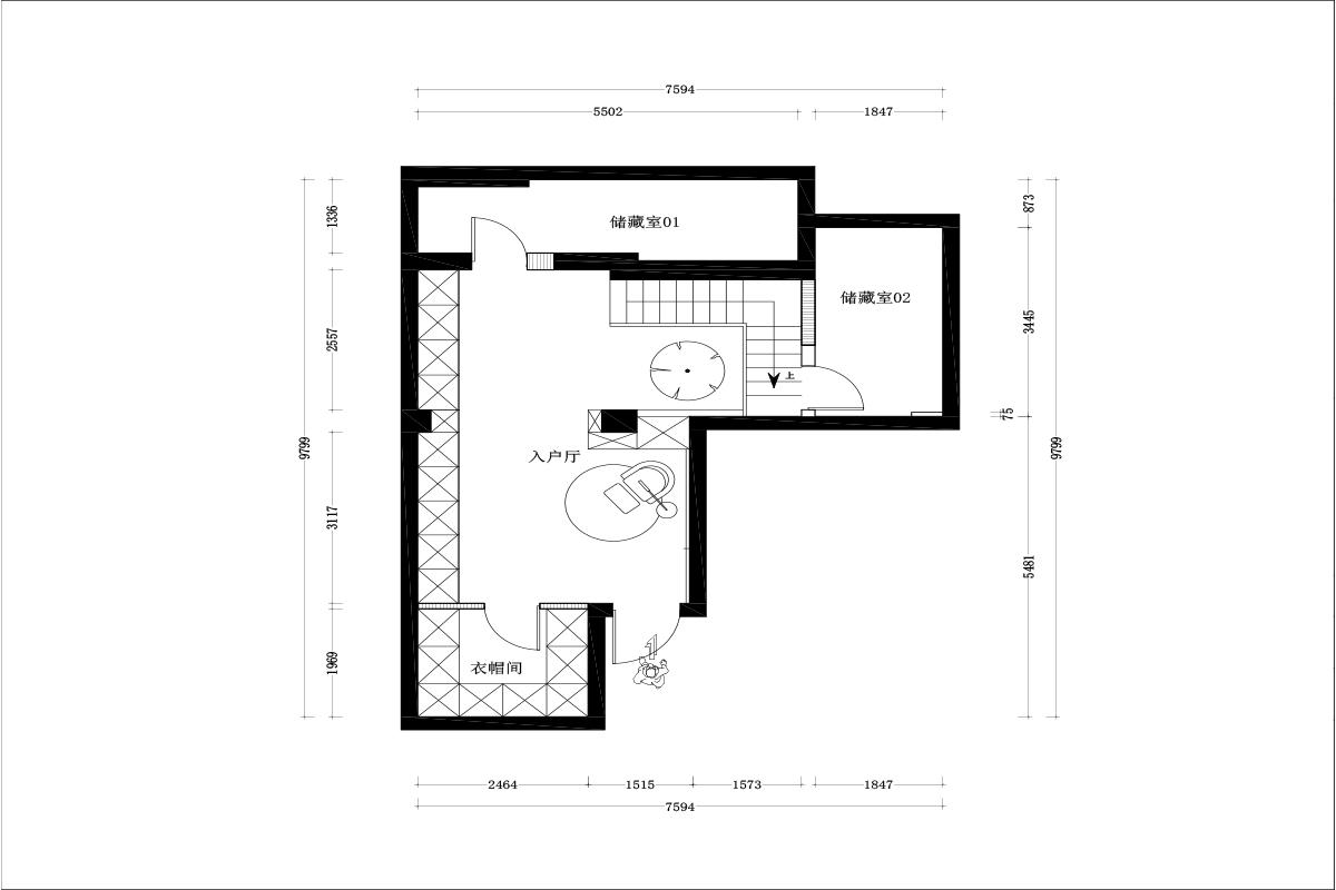
B2:入户厅作为空间枢纽,衔接入户门与楼梯,预留休闲家具位置,为后续软装与个性化设计预留了充足发挥空间,实现归家仪式感与临时休憩功能

户型图
更多户型图灵感

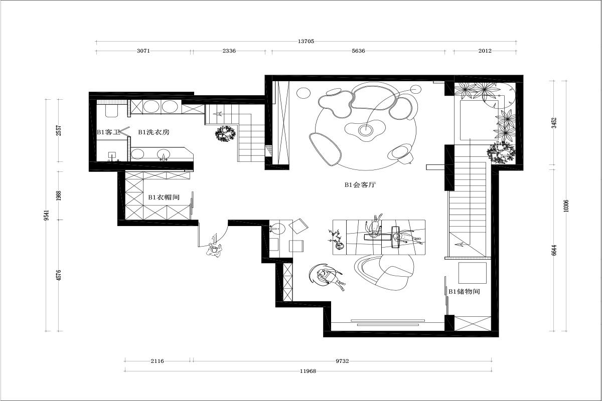
B1:高收纳配置(衣帽间 + 储物间)解决地下空间的储物痛点,提升空间利用率。开放式会客厅布局,契合现代家庭对休闲社交的需求,让地下空间成为生活的延伸场域

本案设计师

王旭

主任设计师

  1. 168次
  2. 预约数
  1. 13年
  2. 从业年限
  1. 18套
  2. 作品案例

预约TA

现代风格的其它案例
更多

【案例】【金茂府】现代 四居室 140㎡

渠海东 渠海东 7 844908浏览 这样装修多少钱?

【案例】【万国城】现代 二居室 130㎡

霍俐明 霍俐明 7 4381954浏览 这样装修多少钱?

【案例】【棠颂】现代 别墅 360㎡

李延玲 李延玲 12 3548058浏览 这样装修多少钱?

别墅的其它案例
更多

【案例】【龙熙瓦德拉玛庄园】古典 别墅 1314㎡

博洛尼 博洛尼 6 3504808浏览 这样装修多少钱?

【案例】【自在香山】古典 别墅 300㎡

高宏寅 高宏寅 6 1539059浏览 这样装修多少钱?

【案例】【懋源景玺】古典 别墅 775㎡

渠海东 渠海东 11 822634浏览 这样装修多少钱?