×
北京
手机博洛尼 售前:400-6868-692 售后:400-666-3706
所在位置/首页优秀案例/西山美墅馆
点击浏览下一张
案例信息
  • 楼盘名称
  • 案例风格
  • 西山美墅馆
  • 中古
  • 案例户型
  • 服务店面
  • 案例面积
  • 设计师
  • 170㎡
  • 王旭
案例说明

业主想打造兼具复古韵味与当代生活舒适度的松弛居所,“复古不陈旧、简约不冷淡”是他的核心需求。于是我们选择摒弃繁复堆砌,提取中古风经典的木质肌理、几何元素、温润米白三大核心语言,满足业主对美的独特需求。

客厅
更多客厅灵感

墙面采用暖米色,搭配浅木色木纹砖地面,奠定柔和、温暖的空间基调,黑色(落地灯、窗框)、深棕色(单椅)、抽象画的暖棕线条,用小面积深色提亮,避免空间发灰。

客厅
更多客厅灵感

客厅电视墙采用悬浮式 + 分段式设计。左侧保留原木格栅元素,增加通透感与呼吸感;右侧为大面积素色墙面,中间内嵌电视,符合现代审美

餐厅
更多餐厅灵感

餐厅实木餐椅的温润、餐桌的木色纹理、餐边柜玻璃门的通透、墙面艺术漆的肌理,通过材质层次丰富空间质感。

卧室
更多卧室灵感

以温润原木、东方意境、松弛氛围为核心,打造出兼具仪式感与舒适度的睡眠空间,通过材质层次丰富空间质感。

厨房
更多厨房灵感

木色橱柜的温润、石英石台面的质感、洞石中岛的肌理、洞洞板的通透,通过材质层次丰富空间质感,契合中古风的自然质朴

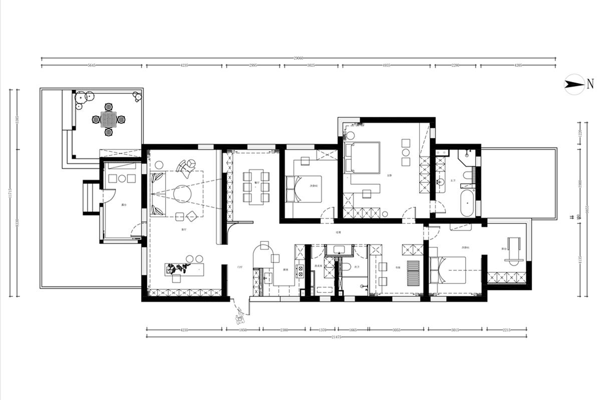
户型图
更多户型图灵感

打通客餐厨空间,打造通透开阔的公共区域,采光视野拉满,社交属性强。生活动线、居住动线、家务动线完全分离,流畅无冗余,提升生活效率。

本案设计师

王旭

主任设计师

  1. 168次
  2. 预约数
  1. 13年
  2. 从业年限
  1. 18套
  2. 作品案例

预约TA

中古风格的其它案例
更多

【案例】【康乐里小区】中古 二居室 103㎡

张洋 张洋 6 3799浏览 这样装修多少钱?

【案例】【枫丹丽舍】中古 三居室 160㎡

吕宏音 吕宏音 6 2157浏览 这样装修多少钱?

【案例】【棕榈泉国际公寓】中古 三居室 135㎡

渠海东 渠海东 9 3365浏览 这样装修多少钱?

三居室的其它案例
更多

【案例】【富贵园】古典 三居室 200㎡

博洛尼 博洛尼 6 3482770浏览 这样装修多少钱?

【案例】【中海凯旋】古典 三居室 135㎡

于自奇 于自奇 7 6968浏览 这样装修多少钱?

【案例】【世纪城远大园】古典 三居室 140㎡

薛超 薛超 6 2247浏览 这样装修多少钱?