












通过清晰的功能分区、人性化的全龄设计与灵活的空间规划,打造了适配多代同堂家庭的舒适居住空间,既满足了日常家务、互动、休息的基础需求,也通过可变空间与全屋储物体系,兼顾了家庭长期居住的灵活性与实用性,实现了 “每一个空间都服务于生活
更多客厅灵感
居中布置深色长书桌,可同时满足多人办公、亲子阅读、手工创作等需求,桌面预留充足空间,适配笔记本、书籍、文具的摆放。 书桌上方悬挂简约线性吊灯,提供局部照明,光线柔和不刺眼,聚焦桌面区域,营造专注的办公阅读氛围。
更多客厅灵感
采用「木饰面 + 岩板 + 收纳柜 + 仿真壁炉」的组合形式,实现了功能与颜值的统一: 中间嵌入式大屏电视,搭配左右两侧的奶白色柜体,右侧柜体嵌入带灯开放格,可收纳展示物品; 背景墙上下搭配线性灯带,下方设置仿真壁炉,营造温馨的氛围感,同时也提升了空间的层次感; 右侧大理石纹岩板与左侧木饰面形成材质对比,打破了背景墙的单调感,传递轻奢质感。
更多卧室灵感
以暖调奶油色与肌理材质打造了治愈松弛的睡眠氛围,从视觉、触觉、听觉多维度保障了居住的舒适度; 极简克制的设计语言与完善的收纳系统,兼顾了颜值与实用性,适配长期居住的需求; 同时通过休闲区的预留,让卧室不再局限于单一的睡眠功能,成为集休息、放松、收纳于一体的复合型私人空间。
更多卫生间灵感
用多层次照明 + 人性化细节,兼顾了日常使用的便利性与居住的仪式感。 整体设计适配主卧套间主卫的定位,既满足了多代家庭或夫妻二人的日常洗漱需求,也能作为放松的泡澡空间,适配长期居住的使用需求。
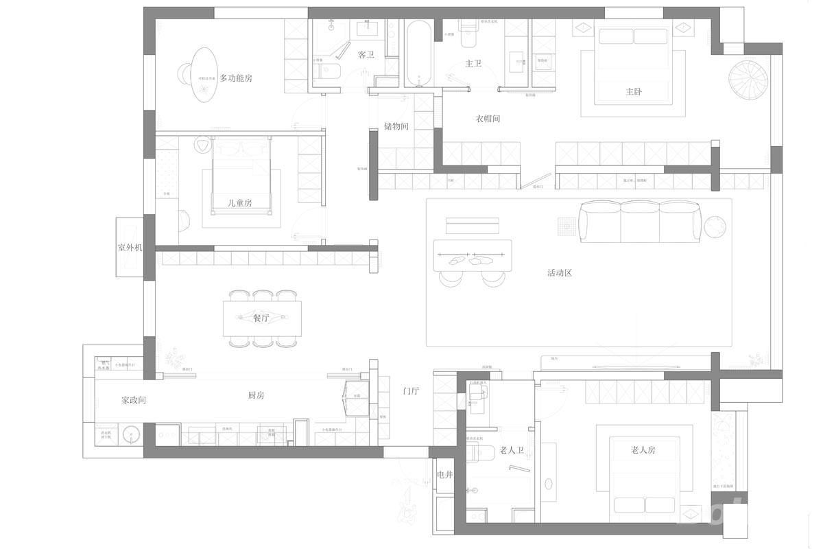
更多户型图灵感
动区(公共活动区):门厅、厨房、家政间、餐厅、活动区(客餐厅一体化),集中布置于户型南侧与中部,是家庭互动、会客、日常活动的核心区域,动线流畅无遮挡,采光与视野最大化。 静区(私密休息区):老人房、儿童房、多功能房、主卧套间,沿户型北侧与东侧分布,远离动区噪音干扰,保障不同年龄段家庭成员的休息隐私