






设计中巧妙运用高级棕调雕琢细节,诠释现代生活理念。萃取传统家居的精髓元素与生活符号,通过合理搭配与科学布局,使整体空间兼具中式韵味与当代人居的生活特点。
更多卧室灵感
主卧以现代简约为基调,浅灰与暖棕交织出柔和静谧的休憩氛围。格栅护墙与环形吊灯勾勒出柔和层次,背景艺术装置成为视觉焦点,搭配通顶收纳柜,整体简约雅致,为日常休憩打造一处松弛舒适的治愈角落。
更多玄关灵感
玄关与餐厅以现代简约为基调,通顶收纳柜搭配格栅隔断,实现空间的柔性过渡。大理石地面温润透亮,艺术装置与线性灯光点缀其间,既保证了入户的秩序感,又为客餐厅营造出通透雅致、层次丰富的互动氛围。
更多户型图灵感
二层以静谧居住为核心,打造专属休憩层。主次卧分区规划,搭配独立卫浴,保障私密舒适;一侧设置储物间,满足家庭收纳需求。双阳台的引入,为空间注入充足采光与自然气息,整体动线清晰,功能分区合理,构建层次分明、松弛有序的居住体验。
更多户型图灵感
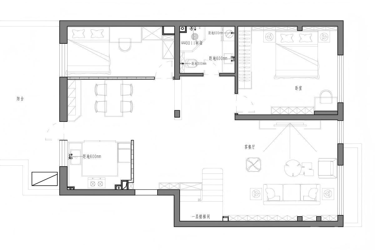
一层以客餐一体化为核心,打造通透开放的公区空间。餐厨区与客餐厅相连,动线流畅,便于日常互动与家庭聚会;南北双卧室分列两侧,搭配独立公卫,兼顾居住私密性。整体布局动静分区清晰,衔接户外阳台,实现室内外空间的自然过渡,营造舒适有序的日常居家氛围。