×
北京
手机博洛尼 售前:400-6868-692 售后:400-666-3706
所在位置/首页优秀案例/影坛花园
点击浏览下一张
案例信息
  • 楼盘名称
  • 案例风格
  • 影坛花园
  • 现代
  • 案例户型
  • 服务店面
  • 案例面积
  • 设计师
  • 115㎡
  • 梁春英
案例说明

此客户为一家三口,客户对于居住的舒适度有很高的追求,希望动静分区明显,有休闲娱乐的地方需要单独的一个空间当作书房,以便满足日后办公阅读的需求,整体喜欢暖色调以现代简约风格为主。

客厅
更多客厅灵感

客厅整体为极简现代风,低饱和浅咖主调柔和高级。整面木饰面背景简洁大气,线条干净利落,无主灯设计拉伸空间感,绿植柔化氛围,尽显温润舒适的居家质感。

餐厅
更多餐厅灵感

餐厨一体现代轻奢风,大理石岛台提亮空间,木饰面+通透玻璃酒柜层次分明,吊灯柔和氛围感拉满,兼具颜值、实用与高级居家格调。

卧室
更多卧室灵感

主卧极简温润设计,低柔配色沉静治愈。大理石艺术背景+整墙收纳柜,功能规整,无主灯柔光烘托氛围,营造松弛舒适、静谧安稳的休憩私域。

卧室
更多卧室灵感

次卧整体浅柔奶油极简风,色调干净治愈。护墙板背景柔和温馨,嵌入式收纳+小巧书桌兼顾储物与学习,光线通透,打造松弛舒适的休憩小空间。

卧室
更多卧室灵感

这间卧室采用现代极简风,浅暖基底干净通透。一体化书桌与收纳柜高效整合空间,无主灯设计柔和静谧,整体留白克制,打造慵懒松弛、兼具工作休憩的治愈居所。

书房
更多书房灵感

书房雅致沉静,木饰面通墙书柜质感温润,封闭柜体+开放格兼具收纳与展示功能。钢琴与书桌分区合理,采光柔和,兼具办公、阅读与休闲雅致氛围。

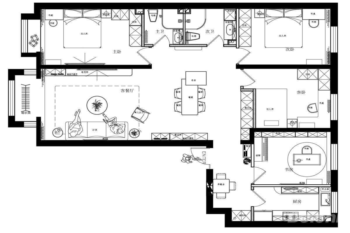
户型图
更多户型图灵感

该户型方正通透,动静分区清晰,客餐一体空间开阔,双卫提升居家便利,三房布局适配多元需求,动线流畅,居住舒适度高。

本案设计师

梁春英

高级主任设计师

  1. 168次
  2. 预约数
  1. 15年
  2. 从业年限
  1. 15套
  2. 作品案例

预约TA

现代风格的其它案例
更多

【案例】【金茂府】现代 四居室 140㎡

渠海东 渠海东 7 844981浏览 这样装修多少钱?

【案例】【万国城】现代 二居室 130㎡

霍俐明 霍俐明 7 4382010浏览 这样装修多少钱?

【案例】【棠颂】现代 别墅 360㎡

李延玲 李延玲 12 3548129浏览 这样装修多少钱?

四居室的其它案例
更多

【案例】【金盛家园】古典 四居室 155㎡

霍禹晨 霍禹晨 5 3624621浏览 这样装修多少钱?

【案例】【陶然亭】古典 四居室 117㎡

袁媛 袁媛 6 2730浏览 这样装修多少钱?

【案例】【西钓鱼台庄园】古典 四居室 141㎡

霍伯骞 霍伯骞 8 2193浏览 这样装修多少钱?