











空间以经典美式复古为基调,配色自带电影般的叙事感,整体耐看又高级。柔和温馨的灯光为空间勾勒出细腻的色彩层次,于细节中流淌着精致优雅的美式浪漫氛围。
更多餐厅灵感
餐厅空间延续了客厅的色彩基调,统一的材质与配色让一层公区形成完整而连贯的整体。精致的凹凸造型门板赋予空间清晰的层次与优雅韵律,暖白基底上,绿色与咖色的搭配为空间注入了沉静力量,褪去浮华,回归舒适本真。
更多餐厅灵感
负一中餐厅温润人字拼木地板搭配奶白护墙板,勾勒出柔和优雅的底色。圆形餐桌与吧台区相邻,自然衔接了用餐与备餐场景;天窗与壁灯的光线交织,让整个空间通透而富有层次,营造出温馨舒适的用餐氛围。
更多户型图灵感
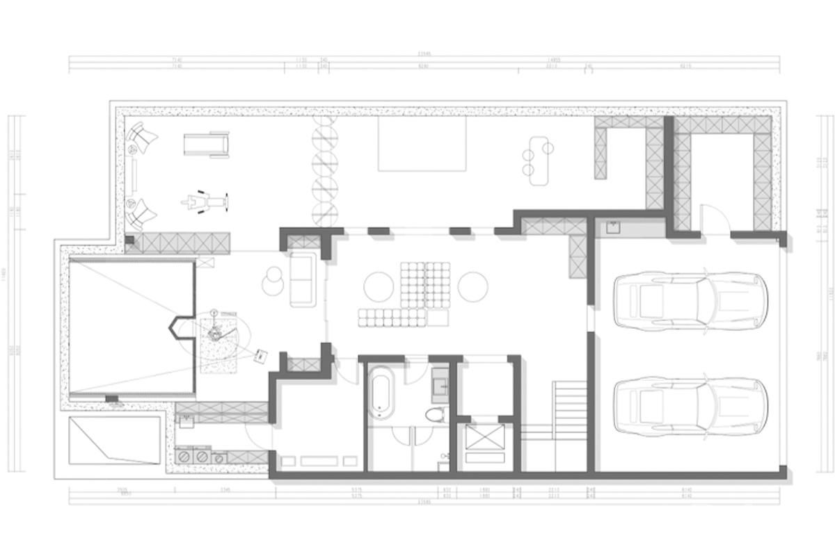
负二层以多功能复合空间为核心,打造集车库、会客、休闲与家政收纳于一体的家庭生活后场。独立双车位车库与入户楼梯无缝衔接,保障了归家动线的便捷私密;大面积开放厅可作为家庭影音室、运动区或会客厅,满足多元兴趣需求;独立卫浴与家政区的配置,让日常使用更显便利。整体布局兼顾实用与拓展性,让负二层不再是单纯的附属空间,而是充满生活可能性的专属天地。
更多户型图灵感
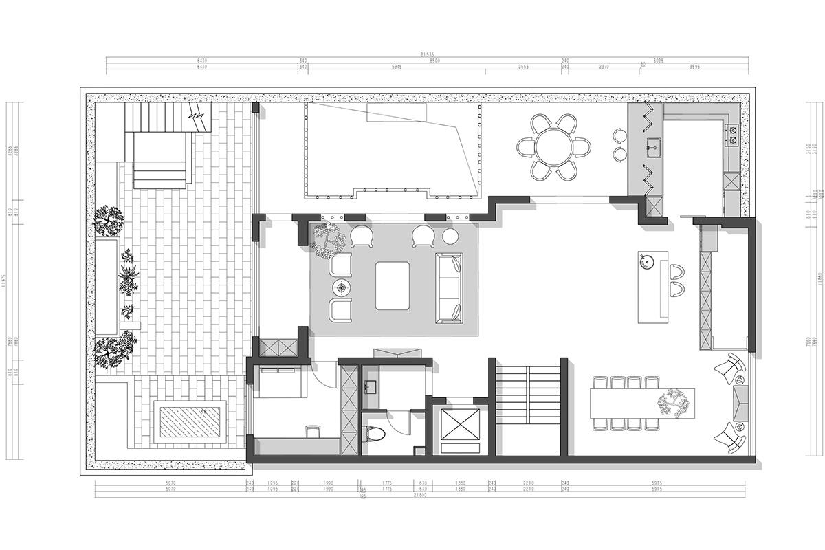
负一层以开放复合的空间形态,打造集家庭社交、休闲与餐厨功能于一体的多元生活主场。大面积客餐一体的横厅布局,将客厅、长桌区与餐厅自然串联,让家人互动与朋友聚会的场景无界延伸;西侧连通的下沉庭院,为地下空间引入自然采光与景观,打破了传统地下室的封闭感;配套的公卫与独立储物间,兼顾了使用的便利性与收纳需求。
更多户型图灵感
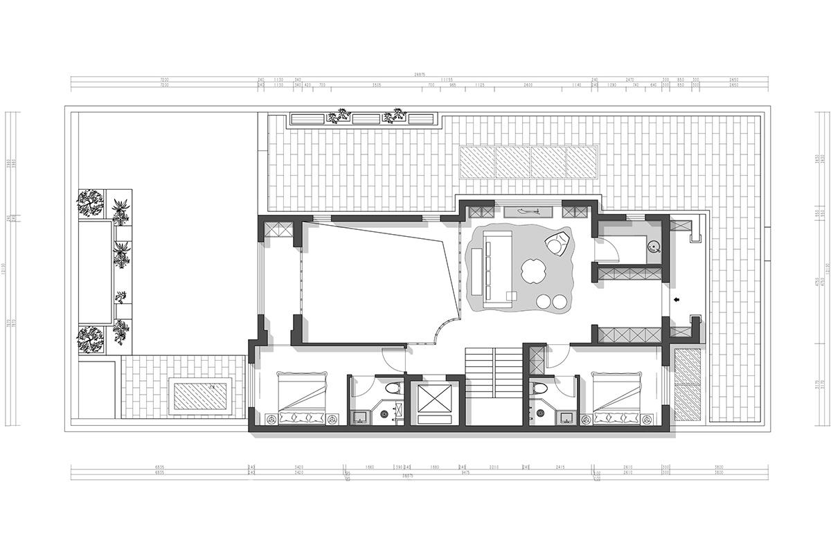
一层以「开放公共区 + 私密居住区」的清晰动线为骨架,打造动静相宜的家庭首层空间。 公区采用客餐一体的通透布局,将客厅与开放互动区相连,形成开阔的家庭互动核心;两侧对称规划双卧室套房,均配备独立卫浴,保障了居住的私密性与舒适度。
更多户型图灵感
二层以纯粹的居住功能为核心,打造了一处静谧私密的家庭休息层。 整体采用「双卧套房 + 开放起居厅」的布局:南北两侧规划独立的卧室套房,均配备专属卫浴与收纳空间,保证了居住的私密性与舒适度;中间的开放起居厅,可作为家庭共享的阅读、休闲区,成为连接两个卧室的过渡空间,也为家人提供了不被打扰的互动场景。
更多户型图灵感
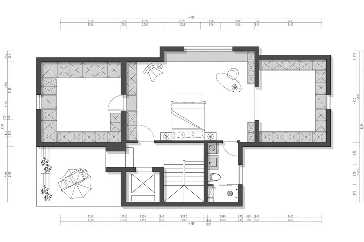
阁楼以「主卧套房 + 户外露台」的形式,打造了一处专属顶层的静谧休憩空间。 主体为完整的主卧套间,搭配独立卫浴与步入式收纳区,为屋主提供了极致私密的休息环境;两侧大面积的露台被纳入规划,一侧可作为户外休闲区,享受顶层的开阔视野与自然景观。整体空间功能纯粹,动线简洁,让阁楼成为远离喧嚣、独享静谧时光的私人领地。