×
北京
手机博洛尼 售前:400-6868-692 售后:400-666-3706
所在位置/首页优秀案例/国奥村
点击浏览下一张
案例信息
  • 楼盘名称
  • 案例风格
  • 国奥村
  • 轻奢
  • 案例户型
  • 服务店面
  • 案例面积
  • 设计师
  • 210㎡
  • 郭清林
案例说明

业主比较讲究风水,原有功能格局中的客卫,改成了衣帽间、整个家居空间做了动静区分离,增加了保姆间。主人私密区和家政区域完全隔离开来。

客厅
更多客厅灵感

意式轻奢风格是业主喜欢的调性,整体式电视墙的设计加上不规则分割的纯色墙板,跳色沙发使空间更具有灵动性。

客厅
更多客厅灵感

意式轻奢风格是业主喜欢的调性,整体式电视墙的设计加上不规则分割的纯色墙板,跳色沙发使空间更具有灵动性。

餐厅
更多餐厅灵感

原有户型的厨房是半开放式的中式厨房,空间打开全开放式西厨,做了岛台+餐桌的设计,整体橱柜做了嵌入式冰箱,合理利用了空间。

卧室
更多卧室灵感

在北次卧室光线不是很明亮的情况下,用浅色背景墙,加上墙板灯的设计,空间层次感和灯光氛围感都表现的充分。

卧室
更多卧室灵感

主卧室把原有的衣帽间取消后,扩大了空间感,独立的梳妆台区域紧邻主卫,动线合理,光照充足,岩板与木质墙板相结合的背景墙意式感强。

卧室
更多卧室灵感

南次卧室光线很明亮,是年轻夫妻房,喜欢厚重沉稳的调性,背景墙采用黑橡木加上墙板灯的设计,空间层次感和灯光氛围感强。

厨房
更多厨房灵感

原有户型的厨房是半开放式的中式厨房,空间打开全开放式西厨,餐厅岛台与餐桌融合,餐边柜与酒柜整体设计,收纳满满。

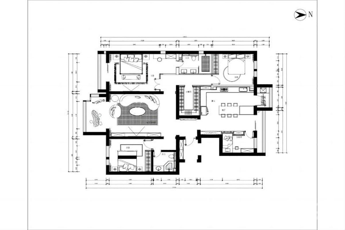
户型图
更多户型图灵感

原有户型正中间是客卫洗衣房,业主很不满意这点,注重风水。将此空间改造成独立的大衣帽间,厨房餐厅融为一体式。

本案设计师

郭清林

主任设计师

  1. 169次
  2. 预约数
  1. 12年
  2. 从业年限
  1. 26套
  2. 作品案例

预约TA

轻奢风格的其它案例
更多

【案例】【西山御园】轻奢 五居室 300㎡

闫磊 闫磊 6 4382751浏览 这样装修多少钱?

【案例】【西山壹号院】轻奢 四居室 400㎡

谭为 谭为 9 1142812浏览 这样装修多少钱?

【案例】【宝坻时光小镇101】轻奢 别墅 220㎡

博洛尼 博洛尼 6 903259浏览 这样装修多少钱?

三居室的其它案例
更多

【案例】【富贵园】古典 三居室 200㎡

博洛尼 博洛尼 6 3481920浏览 这样装修多少钱?

【案例】【中海凯旋】古典 三居室 135㎡

于自奇 于自奇 7 5455浏览 这样装修多少钱?

【案例】【世纪城远大园】古典 三居室 140㎡

薛超 薛超 6 1686浏览 这样装修多少钱?