北京
手机博洛尼 售前:400-6868-692 售后:400-666-3706
所在位置/首页优秀案例/欧陆经典
点击浏览下一张
案例信息
  • 楼盘名称
  • 案例风格
  • 欧陆经典
  • 现代
  • 案例户型
  • 服务店面
  • 案例面积
  • 设计师
  • 150㎡
  • 郭清林
案例说明

业主90后职场精英。作为婚房,要计划未来5年至10年的居住人口变化和使用功能性的调整。老人房兼具儿童房的次卧,居家办公的大书房是男女业主最常使用的空间。

客厅
更多客厅灵感

西式的岛台+餐桌设计,将功能性延展开来,客厅的仿真壁炉与简约式的电视墙相结合,层次感强,功能上也兼具了餐厅酒柜是设置。

卧室
更多卧室灵感

孩子房由于有学习的需求,所以加了书桌,并设计了个性的壁灯增加趣味性,整体风格温馨,柜子颜色用了暖白色增加温馨感。

卧室
更多卧室灵感

超大的卧室空间,增设了独立的衣帽间,男女主人的衣物可分开独立的区域放置,主卧中配备了梳妆台。原有的房高较矮,但做了明装无主灯的设计。

书房
更多书房灵感

男主人需要独立办公的空间,所以做了书房和书柜的设计,满足了书籍的收纳量,整体色调采用了暖白和深胡桃色的搭配。

卫生间
更多卫生间灵感

主卫生间原有格局不合理,利用管道井做出壁龛设计作为淋浴区沐浴用品放置区,原有马桶移位至中间,动线共用于三个功能区,并可以做双盥洗盆。

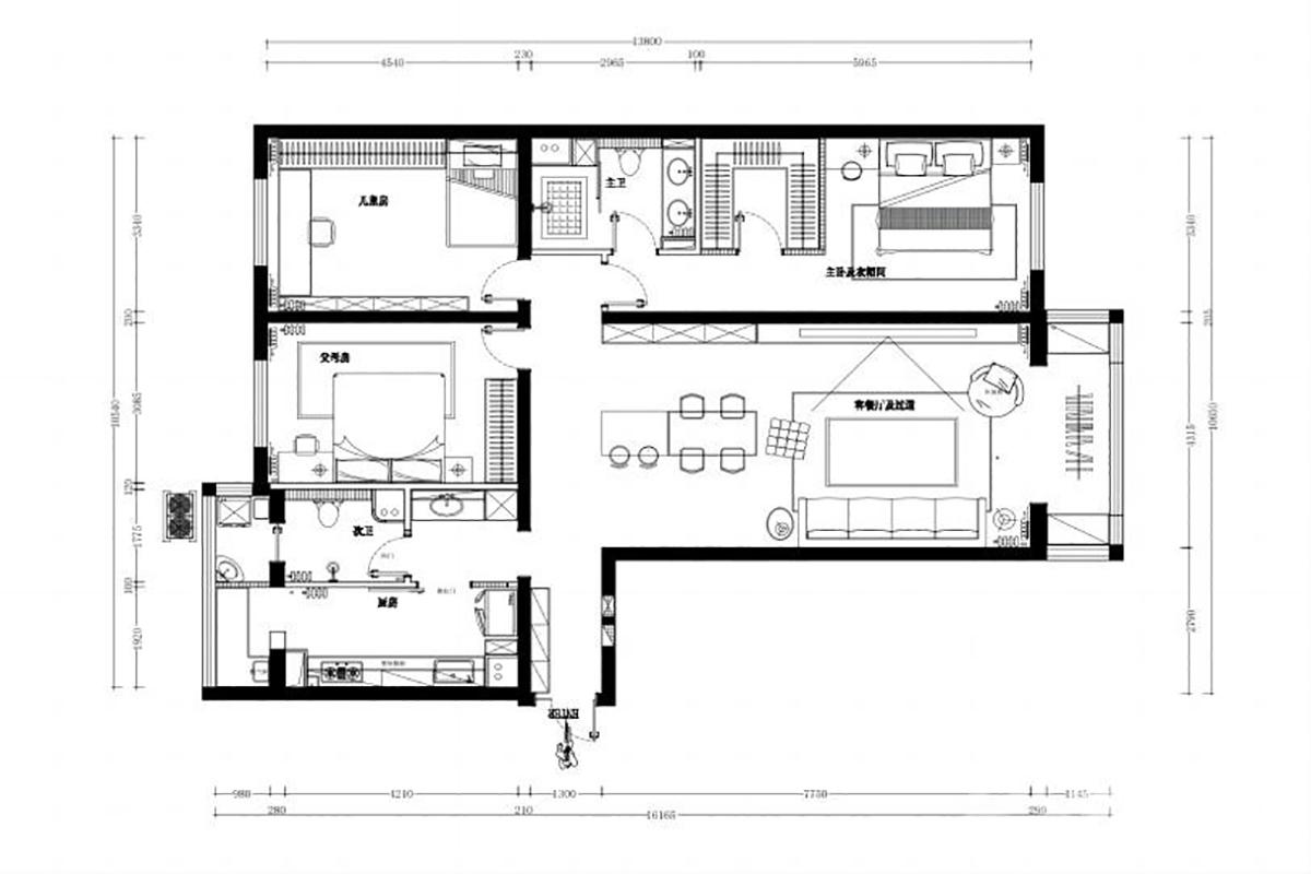
户型图
更多户型图灵感

客户一家三口人居住,老人偶尔回来住,所以保留了三个卧室,女业主衣服比较多,所以在主卧做了独立衣帽间的设计。

本案设计师

郭清林

主任设计师

  1. 169次
  2. 预约数
  1. 12年
  2. 从业年限
  1. 26套
  2. 作品案例

预约TA

现代风格的其它案例
更多

【案例】【金茂府】现代 四居室 140㎡

渠海东 渠海东 7 845013浏览 这样装修多少钱?

【案例】【万国城】现代 二居室 130㎡

霍俐明 霍俐明 7 4382044浏览 这样装修多少钱?

【案例】【棠颂】现代 别墅 360㎡

李延玲 李延玲 12 3548208浏览 这样装修多少钱?

三居室的其它案例
更多

【案例】【富贵园】古典 三居室 200㎡

博洛尼 博洛尼 6 3482067浏览 这样装修多少钱?

【案例】【中海凯旋】古典 三居室 135㎡

于自奇 于自奇 7 5767浏览 这样装修多少钱?

【案例】【世纪城远大园】古典 三居室 140㎡

薛超 薛超 6 1743浏览 这样装修多少钱?