×
北京
手机博洛尼 售前:400-6868-692 售后:400-666-3706
所在位置/首页优秀案例/金地仰山
点击浏览下一张
案例信息
  • 楼盘名称
  • 案例风格
  • 金地仰山
  • 现代
  • 案例户型
  • 服务店面
  • 案例面积
  • 设计师
  • 100㎡
  • 于自奇
案例说明

该户型为一个三居室平层设计,常住人口为三代人的居住结构,整个风格采用简洁明快的线条和中性色调,营造出宽敞、通透的视觉效果。

客厅
更多客厅灵感

现代简约电视柜的精髓在于 “减”与“藏”——减去冗余装饰,隐藏杂乱,将功能与美学融合于极简的线条中。它不仅是电视的基座,更是整个客厅视觉与功能的核心。

卧室
更多卧室灵感

主卧以浅灰色系为主,整体效果在简约的基础上,增加了局部石材作为装饰,搭配双层遮光窗帘吗,柔软的质感为卧室增添了一丝温暖的舒适感。

卧室
更多卧室灵感

这间蓝色儿童房,整体效果宁静又充满活力,能给孩子一个舒适又充满想象力的成长空间。便于更换的软装饰品,可以让房间轻松适应孩子不同成长阶段的需求。

卫生间
更多卫生间灵感

地用同一浅色微水泥或瓷砖,视觉扩容。干湿分离,独立的淋浴区。在浴室柜、镜框等焦点位置使用原木,避免沉闷。

其他
更多其他灵感

本户型南北通透,通风和采光较好,空间流线较为明确;走廊较为宽敞,侧边做收纳柜补充收纳空间,使空间更美观,更实用。

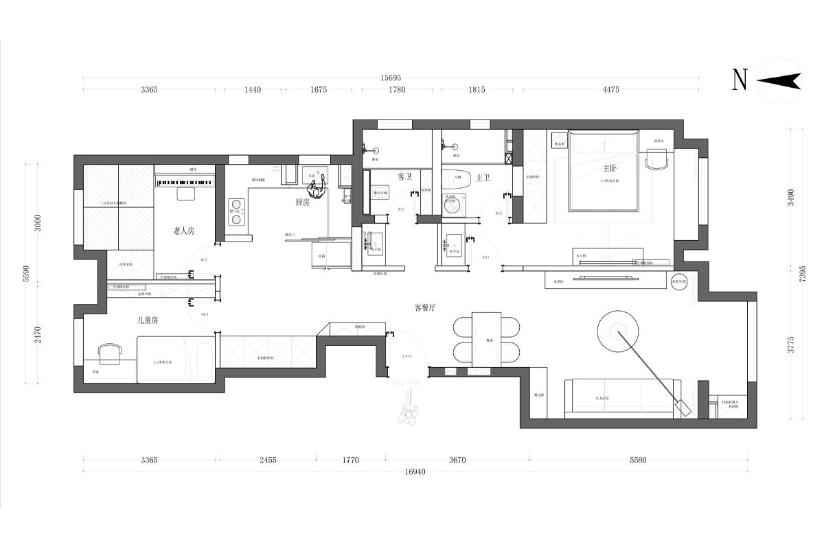
户型图
更多户型图灵感

该户型是三居室,户型布局较为规整;业主为一家三代,三间卧室是必要需求;客餐厅主卧采光通风性能较好,房间区域功能齐全。拥有独立主次卫生间,开放式厨房,方便生活使用习惯。

本案设计师

于自奇

特级主任设计师

  1. 168次
  2. 预约数
  1. 14年
  2. 从业年限
  1. 126套
  2. 作品案例

预约TA

现代风格的其它案例
更多

【案例】【金茂府】现代 四居室 140㎡

渠海东 渠海东 7 845147浏览 这样装修多少钱?

【案例】【万国城】现代 二居室 130㎡

霍俐明 霍俐明 7 4382166浏览 这样装修多少钱?

【案例】【棠颂】现代 别墅 360㎡

李延玲 李延玲 12 3548492浏览 这样装修多少钱?

三居室的其它案例
更多

【案例】【富贵园】古典 三居室 200㎡

博洛尼 博洛尼 6 3482351浏览 这样装修多少钱?

【案例】【中海凯旋】古典 三居室 135㎡

于自奇 于自奇 7 6317浏览 这样装修多少钱?

【案例】【世纪城远大园】古典 三居室 140㎡

薛超 薛超 6 1928浏览 这样装修多少钱?