





本方案为三居室,满足家庭成员的居住需求,提供舒适、实用和美观的居住环境。设计风格以简约、实用为主,注重空间的利用和采光通风效果。
更多客厅灵感
本客厅设计以功能复合+体验升级为核心,打造多元通透的生活空间。设计融合休闲、社交与艺术功能,沙发区满足日常会客观影需求,增设钢琴区实现娱乐与艺术的巧妙结合,让单一客厅可适配多元生活场景。采用客餐一体化无隔断布局,既优化了生活动线流畅度,又从视觉上拓宽空间尺度。大面积落地窗的设计,最大化引入自然采光与室外景观,强化空间与自然的互动感;同时兼顾收纳与美学,围合式布局进一步提升了空间的社交属性。
更多餐厅灵感
本案例以现代简约风格为核心,打造客餐琴房一体化的开放式空间布局,打破传统隔断限制,通过家具摆放实现软性功能分区,既保障动线流畅与空间通透感,又兼顾社交互动与钢琴区的独立使用需求。色彩上以黑白为主调,白色柜体与墙面提亮空间,黑色钢琴、餐椅形成视觉焦点;材质上融合高光瓷砖的冷硬质感与木质餐边柜的温润纹理,形成层次对比。光影设计采用无主灯+艺术吊灯的组合,软装搭配简约布艺与几何家具,辅以整面定制收纳柜体
更多卧室灵感
本案例为现代简约风格休闲卧室设计,以“极简实用+自然采光”为核心。空间以白色为基底,浅木色地板调和温润质感,大面积落地窗引入充足自然光,强化空间通透感。功能上,靠墙定制整面嵌入式柜体,实现收纳与空间的一体化融合;软装选用低饱和度布艺床具,搭配简约装饰画点缀。设计摒弃冗余装饰,以功能性为导向,通过材质与光影的结合,打造出简洁宜居的休憩空间。
更多卧室灵感
主卧为现代简约风格卧室设计,以舒适与实用为核心打造宜居休憩空间。色彩上以白色为基底,浅木色地板搭配浅咖色软包床具,低饱和度色调营造出温润静谧的睡眠氛围;光影设计摒弃传统主灯,床头线性灯带结合无主灯布局,用柔和漫射光打造层次光影。功能上巧用转角空间,将梳妆台与床头柜一体化设计,实现功能叠加;右侧整面嵌入式定制衣柜,兼顾收纳与空间整洁。软装则以简约装饰画、圆形化妆镜及质感床品点缀,在极简框架下丰富空间
更多卧室灵感
本案例为现代简约风格次卧设计,以「功能复合+轻盈质感」为核心。空间以浅米色为主调,搭配浅木色局部饰面,大面积落地窗引入自然光线,让空间更显通透。功能上,将书桌与床头柜一体化设计,利用床侧转角打造办公休憩双区;左侧嵌入式柜体兼顾收纳与空间整洁,软装以格纹床品、简约装饰画点缀,在极简框架下实现功能与美学的平衡,适配现代小户型的居住需求。
更多户型图灵感
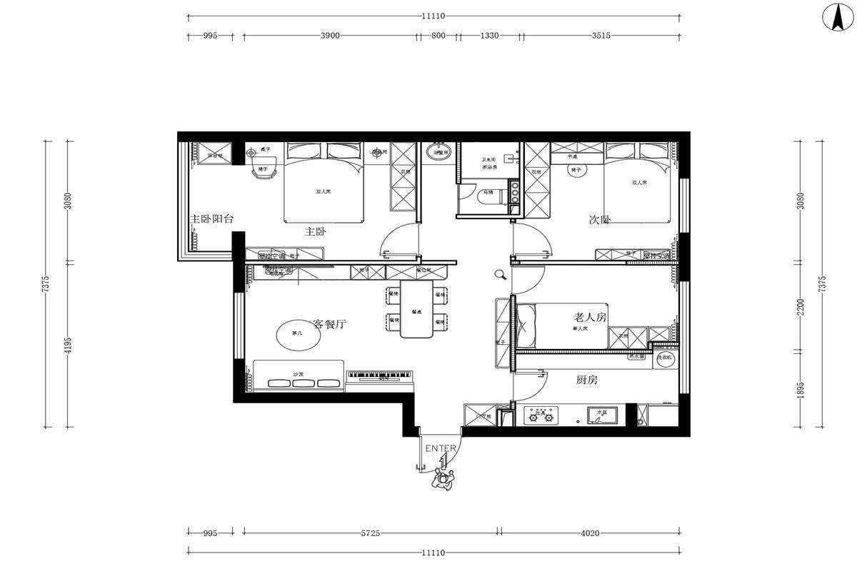
此户型整体设计兼顾实用性与私密性。功能分区清晰,卧室、客厅、厨房等区域独立划分,动静分离效果好,休息区与活动区互不干扰;厨房紧邻餐厅,备餐、用餐动线便捷,卧室集中排布也进一步保障了休息空间的私密性。空间利用率较高,各功能区面积分配均衡,无明显浪费的鸡肋空间,卫生间靠近卧室的设计也让日常使用更便利。