北京
手机博洛尼 售前:400-6868-692 售后:400-666-3706
所在位置/首页优秀案例/新风街
点击浏览下一张
案例信息
  • 楼盘名称
  • 案例风格
  • 新风街
  • 法式
  • 案例户型
  • 服务店面
  • 案例面积
  • 设计师
  • 93㎡
  • 于铭哲
案例说明

在繁忙的现代生活中,我们常常渴望寻找到一种平衡,让我们的生活既充满活力又充满诗意。法式奶油风室内设计正是这样一种平衡的象征,它以其独特的风格和温馨的氛围,将浪漫与优雅完美地融合在一起。

客厅
更多客厅灵感

法式奶油风格客厅,以奶白色油漆为主打,搭配法式石膏线条,营造出一种高级感十足的大气明亮空间。客厅地面采用原木色木地板,温暖舒适,让人心情愉悦。

卧室
更多卧室灵感

以黑、白、棕色为主基调,简单的PU线条,加上复古的主灯,床头柜均为黑色,与主灯呼应。床头绿色作为点缀。

卧室
更多卧室灵感

将法式的浪漫优雅与中古的古典腔调,经过融,在两种元素互相碰撞下,辅以奶油色和法式元素点缀,营造温柔舒适的法式中古风,像电影里的画面,氛围感十足。

厨房
更多厨房灵感

功能性与美观并重:在法式厨房里,每一个设计细节都兼顾了实用性和美观性。嵌入式的电器、充足的储物空间、以及人性化的工作台高度,都让烹饪变得更加轻松愉快。

玄关
更多玄关灵感

整体简洁明了的造型,而在细节处更加精致,凸显出其风格特点。最基础的,就是做到复古硬装+简约软装。不能或缺的一是法式元素。

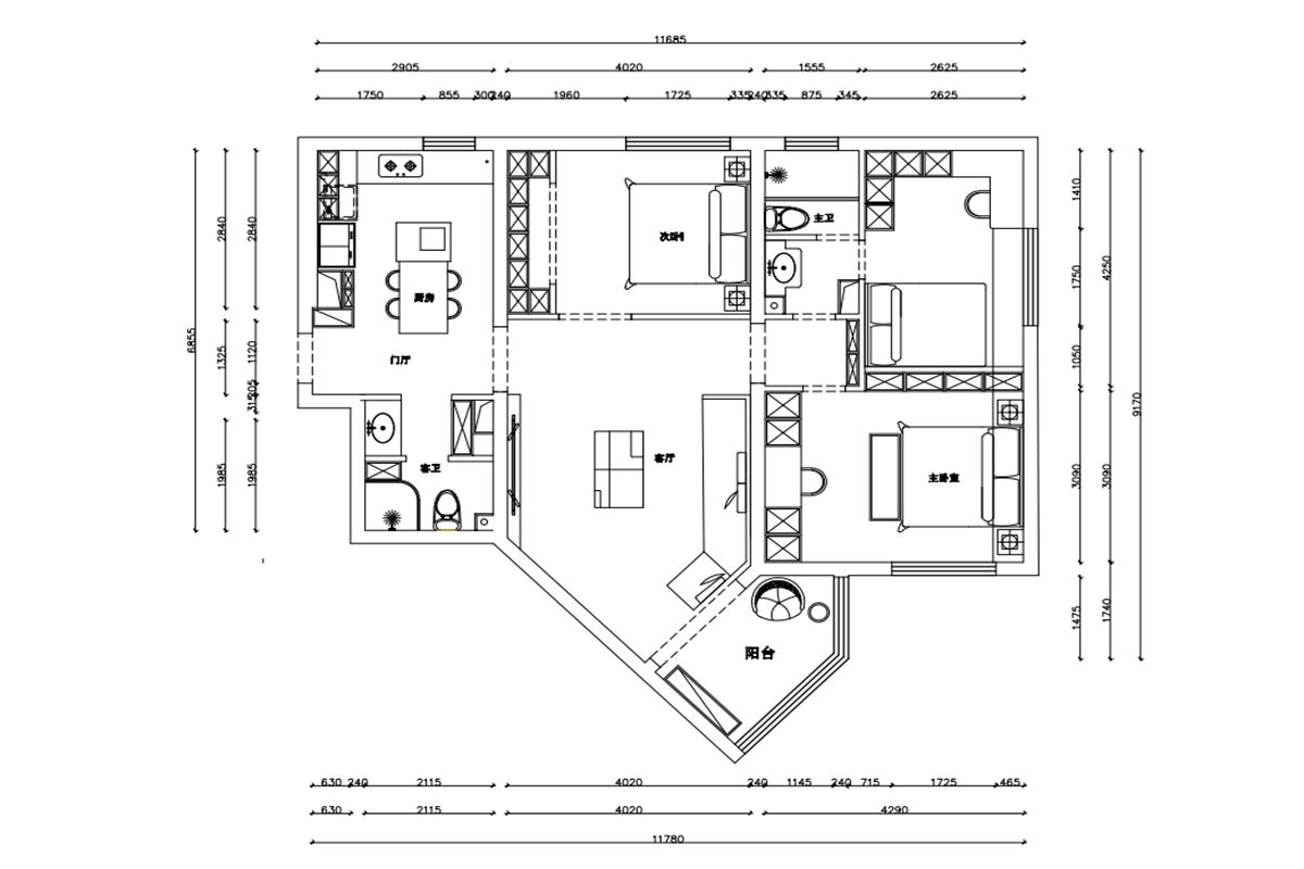
户型图
更多户型图灵感

保留了三室,都增加大面积的入门收纳柜,都是回游动线,较原始户型增加了入卧的私密性,厨房设置了开放式,给空间衬托的更大。

本案设计师

于铭哲

主任设计师

  1. 168次
  2. 预约数
  1. 12年
  2. 从业年限
  1. 6套
  2. 作品案例

预约TA

法式风格的其它案例
更多

【案例】【大郊亭】法式 三居室 160㎡

赵波 赵波 6 5515浏览 这样装修多少钱?

【案例】【玉海园】法式 跃层/loft 120㎡

代伟欣 代伟欣 7 1197222浏览 这样装修多少钱?

【案例】【京西悦府】法式 别墅 300㎡

赵波 赵波 6 2794浏览 这样装修多少钱?

三居室的其它案例
更多

【案例】【富贵园】古典 三居室 200㎡

博洛尼 博洛尼 6 3481469浏览 这样装修多少钱?

【案例】【中海凯旋】古典 三居室 135㎡

于自奇 于自奇 7 4586浏览 这样装修多少钱?

【案例】【世纪城远大园】古典 三居室 140㎡

薛超 薛超 6 1455浏览 这样装修多少钱?