





1. 功能区域规划:该住宅设计图精心规划了卧室、客厅、厨房、卫生间等多个功能区域,确保了居住者的生活舒适与便捷。每个区域都根据其功能特点配备了相应的家具和设施,如床、沙发、餐桌、冰箱等,充分满足了日常生活的需求。 2. 空间利用率:设计图中巧妙地融入了阳台和储物间等实用空间,既增加了居住的便利性,又极大地提升了空间的利用率。这种设计使得整个住宅看起来更加宽敞明亮,同时也为居住者提供了更多的活动空间。 3. 面积分配:图中详细标注了各个房间的面积,如卧室、客厅、厨房等,这有助于居住者更好地了解空间布局和面积分配。合理的面积分配使得每个区域都能得到充分的利用,同时也保证了居住者的舒适度。
更多客厅灵感
1. 风格定位:本设计采用现代风格,以简约而不失格调的线条和色彩,展现现代家居的精髓。整体空间以白色和灰色为主色调,营造出清新明亮的氛围,符合现代人的审美需求。 2. 材质运用:地面铺设大理石瓷砖,提升了空间的质感,增添了一抹高贵的气息。家具和装饰品的选择也注重材质与质感的结合,营造出舒适且高品质的居住环境。 3. 灯光设计:客厅中央的圆形吊灯设计独特,光线柔和,
更多客厅灵感
1. 风格定位:本设计采用现代风格,以简约而不失格调的线条和色彩,展现现代家居的精髓。整体空间以白色和灰色为主色调,营造出清新明亮的氛围,符合现代人的审美需求。 2. 材质运用:地面铺设大理石瓷砖,提升了空间的质感,增添了一抹高贵的气息。家具和装饰品的选择也注重材质与质感的结合,营造出舒适且高品质的居住环境。 3. 灯光设计:客厅中央的圆形吊灯设计独特,光线柔和,
更多餐厅灵感
1. 风格融合:餐厅设计巧妙融合了现代简约风格与实用性,打造出既舒适又时尚的用餐空间。整体色调和谐,以浅色调为主,营造出宁静舒适的氛围。 2. 家具配置:餐厅中央配置了长方形餐桌与灰色椅子,色彩搭配和谐,细节处体现设计师的匠心。餐桌上精致的餐具摆放,彰显出对生活品质的追求。 3. 空间布局:背景墙上悬挂的圆形镜子增加了空间层次感,视觉上扩大了空间感,使餐厅显得更加宽敞
更多卧室灵感
1. 风格定位:此卧室设计秉承简约现代风格,以灰色和白色为主色调,构建出一个既宁静又高雅的居住环境。 2. 色彩搭配:整体色调和谐统一,灰色床单与多彩抱枕的组合,在保持空间简洁的同时,增加了视觉层次与活力。黑白照片的选择,与整体色调完美融合,增强了艺术氛围。 3. 家具与装饰:床头柜设计简洁大方,与整体风格相得益彰。上方的吊灯采用白色球形灯罩与金色吊杆,成为空间中的视觉焦点,
更多卧室灵感
1. 风格定位:此卧室设计采用现代简约风格,强调舒适与时尚的融合,通过灰色和白色的主色调,营造出宁静而高雅的空间氛围。 2. 色彩搭配:床铺区域的灰色床单与白色枕头形成经典搭配,既确保了使用的舒适度,又通过色彩的层次感丰富了空间表现。深蓝色的床头背景墙与整体色调形成鲜明对比,成为空间的视觉焦点,增添了活力与亮点。
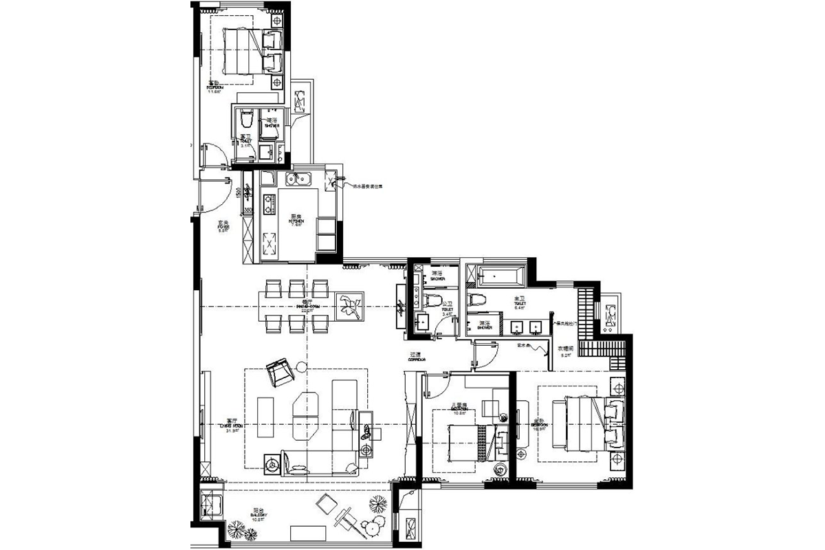
更多户型图灵感
1. 功能区域规划:该住宅设计图精心规划了卧室、客厅、厨房、卫生间等多个功能区域,确保了居住者的生活舒适与便捷。每个区域都根据其功能特点配备了相应的家具和设施,如床、沙发、餐桌、冰箱等,充分满足了日常生活的需求。 2. 空间利用率:设计图中巧妙地融入了阳台和储物间等实用空间,既增加了居住的便利性,又极大地提升了空间的利用率。这种设计使得整个住宅看起来更加宽敞明亮,同时也为居住者提供了更多