×
北京
手机博洛尼 售前:400-6868-692 售后:400-666-3706
所在位置/首页优秀案例/上坡佳园
点击浏览下一张
案例信息
  • 楼盘名称
  • 案例风格
  • 上坡佳园
  • 混搭
  • 案例户型
  • 服务店面
  • 案例面积
  • 设计师
  • 80㎡
  • 李玉鹏
案例说明

好设计是一种 空间逻辑,最终应归结为对人的关照。设计始终在围绕着人,围绕着 生活气 去表达,去设计。

客厅
更多客厅灵感

形式追随功能”是本案设计核心原则,家具和软装必然是这个家的主角。搭配几何图案的地毯、钢材皮质沙发,红黄蓝单品画龙点睛,空间层次跃然眼前。

客厅
更多客厅灵感

客厅采用开放式设计,连接餐厅,打造宽敞明亮的活动空间。舒适家具:选择简约大方的家具,营造出温馨舒适的居家氛围。灯光设计:多层次的照明设计,包括主灯、射灯和落地灯,营造温暖的氛围。

客厅
更多客厅灵感

运用暖米色墙面打底,搭配黄、橙、蓝等跳色柜体形成视觉焦点;玻璃圆桌、木质柜体与布艺软装结合,丰富材质层次。

餐厅
更多餐厅灵感

餐厅,沿墙定制餐边柜补充收纳,沿餐边柜做可收缩餐桌方便多人用餐,包豪斯风格的餐桌椅和吊灯,与蓝色布艺沙发颜色呼应,简约的空间搭配非常和谐。

卧室
更多卧室灵感

宁静舒适:柔和的色调和质感材料,打造宁静的睡眠环境。私密空间:合理安排储物空间,保持卧室的整洁和私密。

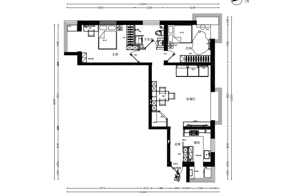
户型图
更多户型图灵感

本方案根据客户需求,大的格局没有过多变动,小变动使空间更合理,更贴切生活,入户玄关增加了储物功能,客厅家政储物间美观不突兀,卫生间扩大既不占多大空间又增加洗衣功能。

本案设计师

李玉鹏

主任设计师

  1. 168次
  2. 预约数
  1. 10年
  2. 从业年限
  1. 59套
  2. 作品案例

预约TA

混搭风格的其它案例
更多

【案例】【首开华润家园】混搭 三居室 150㎡

周超 周超 6 253103浏览 这样装修多少钱?

【案例】【观承别墅】混搭 其他 225㎡

吴佳璇 吴佳璇 8 3861浏览 这样装修多少钱?

【案例】【中海云筑】混搭 三居室 89㎡

梁春英 梁春英 6 2955浏览 这样装修多少钱?

二居室的其它案例
更多

【案例】【御墅临枫】古典 二居室 180㎡

魏焕和 魏焕和 7 4678浏览 这样装修多少钱?

【案例】【民岳家园】古典 二居室 100㎡

尚君 尚君 6 4526浏览 这样装修多少钱?

【案例】【世纪城】古典 二居室 125㎡

赵保祚 赵保祚 6 3371707浏览 这样装修多少钱?