×
北京
手机博洛尼 售前:400-6868-692 售后:400-666-3706
所在位置/首页优秀案例/草桥欣园-四区
点击浏览下一张
案例信息
  • 楼盘名称
  • 案例风格
  • 草桥欣园-四区
  • 美式
  • 案例户型
  • 服务店面
  • 案例面积
  • 设计师
  • 120㎡
  • 刘延峰
案例说明

在设计上,突出了文化人温文尔雅、平和理性的特点,用咖色的整体色调,表达业主的温馨典雅。在设计风格上,既突出户型本身的优势又适当彰显业主的个人品味。

客厅
更多客厅灵感

客厅大面积采用了咖色的哑光砖铺贴,它既没有抛光砖的刺眼反射,也在防滑功能上也起到了很好的保护作用。开放式的客厅设计给人以通透之感,避免视觉给人带来的压迫感,可缓解业主工作一天的疲惫。

餐厅
更多餐厅灵感

客餐厅一体的设计,最大限度地获得了自然采光的优势,使餐厅更加通透,用餐氛围也更加舒适,墙上的挂画也更能彰显客户的品味。

卧室
更多卧室灵感

主卧十分淡雅,这里没有多余的色彩、布置和家具,没有喧嚣与繁冗,一派宁静悠远;设计将原本不规则且略显零乱的天花加以简化整合,改变后的主卧空间呈上升之势,置身其中给人积极向上之感。

卧室
更多卧室灵感

木质元素的温润特质营造质感且温暖的空间,体味更自然更真实的原味幸福,线条简洁流畅,摒弃繁琐装饰,每一件都像是精心挑选的艺术品,既满足日常所需,又能提升家居品味。在空间里放置了一些绿植,增加空间的生气。

玄关
更多玄关灵感

与电视相同的一面墙特意设计了鞋帽柜和展示柜,展示柜采用乳白色,使整个空间显得活泼生动,更通过突出饰品自身的魅力展示主人的富足和品位。

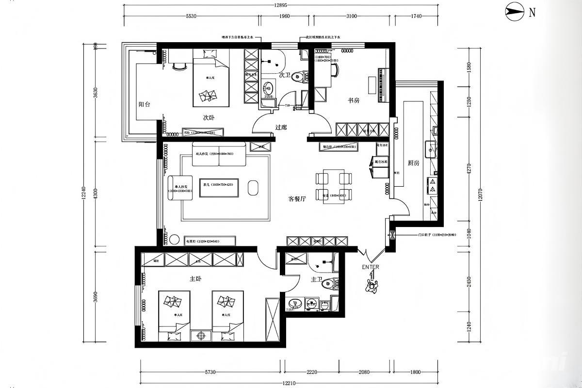
户型图
更多户型图灵感

设计师采用简约明朗的线条,将空间进行了合理的分隔。应对扰的都市活,一处能让心灵沉淀的活空间,是本房业主心中的一份渴望,也是本设计在该方案中所体现的主要思想。

本案设计师

刘延峰

特级主任设计师

  1. 168次
  2. 预约数
  1. 20年
  2. 从业年限
  1. 17套
  2. 作品案例

预约TA

美式风格的其它案例
更多

【案例】【中海紫金苑】美式 四居室 160㎡

付湛 付湛 6 4346555浏览 这样装修多少钱?

【案例】【雪梨澳乡】美式 别墅 320㎡

博洛尼 博洛尼 10 2774938浏览 这样装修多少钱?

【案例】【芍药居北里】美式 二居室 80㎡

贾朋 贾朋 7 3330449浏览 这样装修多少钱?

二居室的其它案例
更多

【案例】【御墅临枫】古典 二居室 180㎡

魏焕和 魏焕和 7 3643浏览 这样装修多少钱?

【案例】【民岳家园】古典 二居室 100㎡

尚君 尚君 6 3247浏览 这样装修多少钱?

【案例】【世纪城】古典 二居室 125㎡

赵保祚 赵保祚 6 3370699浏览 这样装修多少钱?