×
北京
手机博洛尼 售前:400-6868-692 售后:400-666-3706
所在位置/首页优秀案例/白广路
点击浏览下一张
案例信息
  • 楼盘名称
  • 案例风格
  • 白广路
  • 中古
  • 案例户型
  • 服务店面
  • 案例面积
  • 设计师
  • 82㎡
  • 郭清林
案例说明

新婚夫妻,作为婚房喜欢流行的中古风格。同时,又要求空间功能及收纳率最大化。将原有的客餐厅区域重新规划。

客厅
更多客厅灵感

原有的餐客厅是左右分割的,电视墙也不完整,每个功能区都很局促。将餐厅移至中庭后,将客厅功能更完整化,并利用凹窗做了书桌功能。

餐厅
更多餐厅灵感

入户之后的过厅很暗,并且没有任何功能型,把餐厅移至此,并且借用卫生间的部分空间做嵌入式冰箱餐边柜,动线上离厨房更近。

卧室
更多卧室灵感

卧室动线合理,采光通透,兼顾了梳妆台的功能,大大提升了使用感受,通铺木质地板,以咖色点缀,让卧室色调温馨,色彩和谐。考虑到右侧狭窄,采用悬浮式床头柜。

卧室
更多卧室灵感

小卧室为将来的宝宝准备,既想活动空间适合儿童成长,又想功能更完善,做了一体式的榻榻米,宽大的1500的床,配上1200的书桌书柜。

其他
更多其他灵感

将原有卫生间部分空间分割出餐厅餐边柜功能,卫生间做干湿区域,在通往厨房和卫生间的主动线上,作为盥洗区。更能有效利用每个空间。

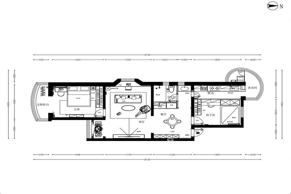
户型图
更多户型图灵感

主卧带独立阳台,保证了私密与惬意;客厅与餐厅动线流畅,待客起居都很舒适。厨房连接洗衣间,家务动线高效。卫生间功能齐全,满足日常使用。整体空间分区明确,采光通风俱佳,每一处设计都兼顾了生活的品质与便利。

本案设计师

郭清林

主任设计师

  1. 169次
  2. 预约数
  1. 12年
  2. 从业年限
  1. 26套
  2. 作品案例

预约TA

中古风格的其它案例
更多

【案例】【康乐里小区】中古 二居室 103㎡

张洋 张洋 6 3599浏览 这样装修多少钱?

【案例】【枫丹丽舍】中古 三居室 160㎡

吕宏音 吕宏音 6 1855浏览 这样装修多少钱?

【案例】【棕榈泉国际公寓】中古 三居室 135㎡

渠海东 渠海东 9 2640浏览 这样装修多少钱?

二居室的其它案例
更多

【案例】【御墅临枫】古典 二居室 180㎡

魏焕和 魏焕和 7 3152浏览 这样装修多少钱?

【案例】【民岳家园】古典 二居室 100㎡

尚君 尚君 6 2685浏览 这样装修多少钱?

【案例】【世纪城】古典 二居室 125㎡

赵保祚 赵保祚 6 3370216浏览 这样装修多少钱?