






本方案以 **“简而有境,生活为魂”** 为核心理念,基于博洛尼 “整体家装” 体系,深度适配户型结构与现代多元生活需求,打造 “开放交融、功能复合、隐奢于简” 的居住空间,诠释 “少即是多,简亦生暖” 的设计哲学,实现 “空间为人服务,设计回归本真” 的居住理想。
更多客厅灵感
本客厅延续整体现代简约风格脉络,以 “简而有境,生活为魂” 为核心理念,借 “开放交融、艺术渗透、功能烟火”,打造 “情感共生、艺术滋养、日常温暖” 的居住空间,诠释 “少即是多,简亦生暖” 的设计哲学,实现 “空间回归本真,生活滋养身心” 的居住理想。
更多客厅灵感
本餐厅延续整体现代简约风格脉络,以 “简而有境,烟火为魂” 为核心理念,借开放交融、材质质朴、功能烟火,打造 “社交共融、美学平衡、日常温暖” 的用餐场域,诠释 “少即是多,简亦生暖” 的设计哲学,实现 “空间回归本真,烟火滋养身心” 的居住理想。
更多餐厅灵感
本餐厅延续整体现代简约风格脉络,以 “简而有境,烟火为魂” 为核心理念,借开放交融、材质质朴、功能烟火,打造 “社交共融、美学平衡、日常温暖” 的用餐场域,诠释 “少即是多,简亦生暖” 的设计哲学,实现 “空间回归本真,烟火滋养身心” 的居住理想。
更多卧室灵感
本儿童房延续整体现代简约风格脉络,以 “简而有境,成长为魂” 为核心理念,借 “开放展示、功能复合、童趣温度”,打造 “成长陪伴、兴趣滋养、私享治愈” 的居住空间,诠释 “少即是多,简亦生暖” 的设计哲学,实现 “空间陪伴成长,设计回归童真” 的居住理想。
更多卧室灵感
本卧室延续整体现代简约风格脉络,以 “简而有境,休憩为魂” 为核心理念,借自然材质、无主灯设计、功能复合,打造 “宁静治愈、私享松弛” 的休憩场域,诠释 “少即是多,简亦生暖” 的设计哲学,实现 “空间回归本真,休憩滋养身心” 的居住理想。
更多卧室灵感
本空间延续整体现代简约风格脉络,以 “简而有境,功能为魂” 为核心理念,借 “睡眠 + 学习 + 收纳” 复合功能,打造 “成长陪伴、兴趣滋养、私享治愈” 的居住空间,诠释 “少即是多,简亦生暖” 的设计哲学,实现 “空间适配全龄,设计回归实用” 的居住理想。
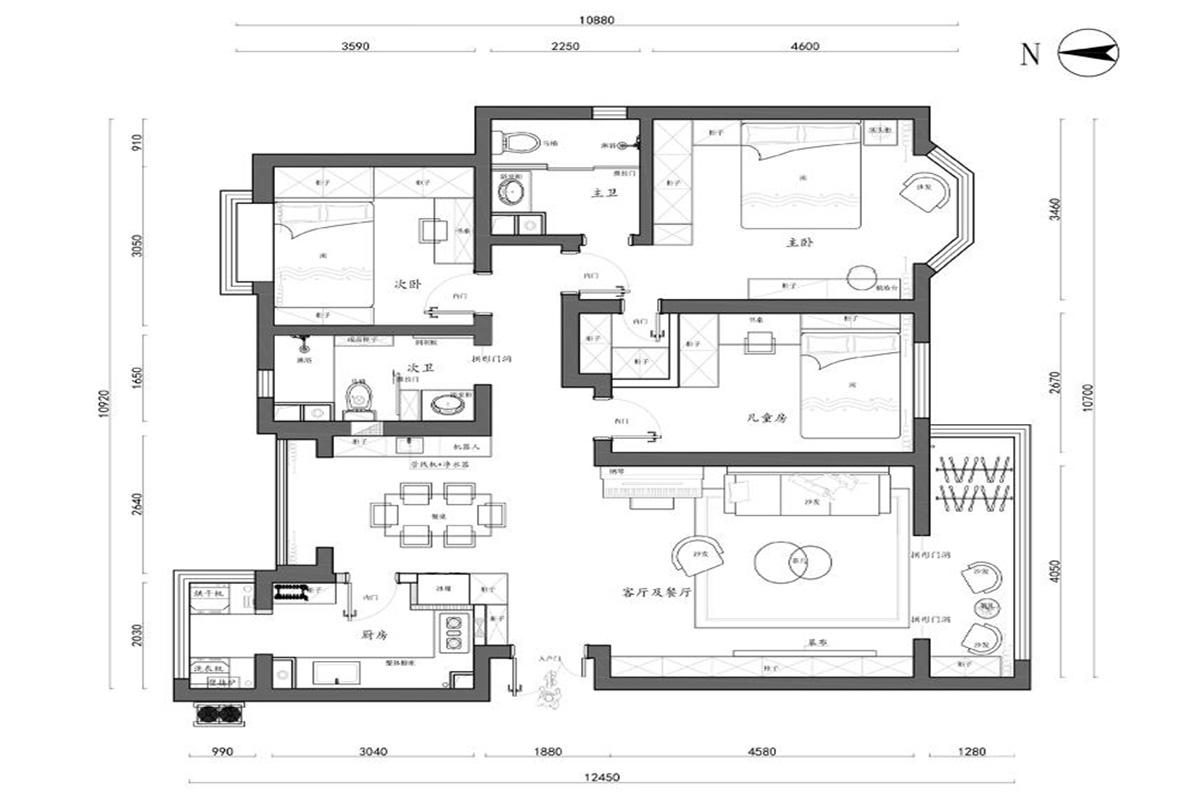
更多户型图灵感
延续现代简约“去繁就简,功能驱动” 框架,融入 **“全维共生”** 理念(空间交融、功能复合、全龄适配 ),摒弃传统简约的 “冰冷符号”,通过开放布局、材质质朴、功能烟火传递 “简而有暖” 的生活美学 —— 让空间承载情感交流、兴趣成长与家庭共生。