×
北京
手机博洛尼 售前:400-6868-692 售后:400-666-3706
所在位置/首页优秀案例/景粼原著
点击浏览下一张
案例信息
  • 楼盘名称
  • 案例风格
  • 景粼原著
  • 现代
  • 案例户型
  • 服务店面
  • 案例面积
  • 设计师
  • 400㎡
  • 关蕾
案例说明

以功能至上、简洁纯粹为核心,强调通过理性布局与材质美学打造兼具实用性与精神共鸣的空间,在快节奏的都市语境中,以简洁、实用、富有质感的空间,消解焦虑,回归生活本真。

客厅
更多客厅灵感

视角延伸,更显空间通透。弧形楼梯流畅线条贯穿,连接不同区域。浅灰沙发、大理石茶几,与厨房区域连通,开放式布局增强互动性 。

客厅
更多客厅灵感

以白色、木色为主,通透明亮。弧形楼梯为空间焦点,造型优美。浅灰色沙发、大理石茶几,搭配简洁边几,电梯与石材墙面结合,展现现代简约与精致 。

餐厅
更多餐厅灵感

延续简洁风格,空间更显开阔。大理石地面、白色橱柜,玻璃移门划分空间,长条吊灯呼应,营造整洁有序的烹饪用餐环境 。

卧室
更多卧室灵感

延续简约基调,空间开阔。同系列线性灯带勾勒层次,柔软大床、简约床头柜,角落按摩椅提升舒适感,整体静谧宜人 。

厨房
更多厨房灵感

开放式设计,白色为主调。大理石餐桌搭配棕色座椅,长条水晶吊灯精致。橱柜与电器一体化,黑色玻璃柜门展示餐具,简洁现代 。

其他
更多其他灵感

连接上下空间,玻璃护栏通透。木质横梁、线性灯带,呼应 downstairs 元素。吊灯轻盈,弧形楼梯延续,展现空间的连贯与精致 。

其他
更多其他灵感

照片聚焦楼梯结构,多层弧形嵌套,石材与白色扶手结合,灯带营造温馨氛围,如艺术装置,彰显空间设计感 。

其他
更多其他灵感

白色旋转楼梯,台阶石材纹理自然,底部嵌入灯带,柔和光线勾勒轮廓。人物行走增添动态感,展现空间的艺术与实用功能 。

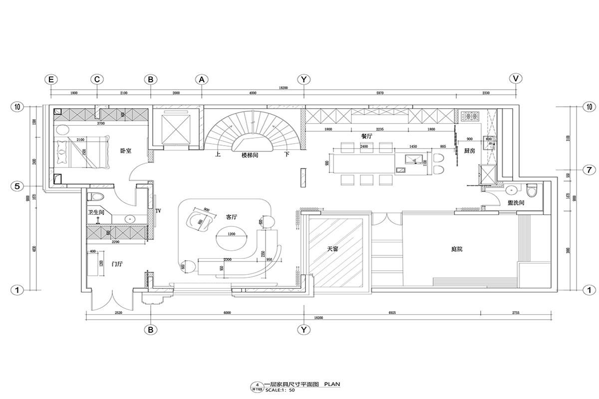
户型图
更多户型图灵感

这张图为别墅一层户型图,宽敞的横厅,空间尺度感更强,拥有更大的采光和更好的通风效果,提高居住舒适性,动静分区合理保证居住者在休息和活动时互不干扰。

户型图
更多户型图灵感

这张图为别墅二层户型图,整体布局合理,功能分区明确,休息区和活动区互不干扰,采光通风良好,有较多的窗户,能够保证室内充足的自然采光

本案设计师

关蕾

高级主任设计师

  1. 168次
  2. 预约数
  1. 13年
  2. 从业年限
  1. 15套
  2. 作品案例

预约TA

现代风格的其它案例
更多

【案例】【金茂府】现代 四居室 140㎡

渠海东 渠海东 7 844963浏览 这样装修多少钱?

【案例】【万国城】现代 二居室 130㎡

霍俐明 霍俐明 7 4382000浏览 这样装修多少钱?

【案例】【棠颂】现代 别墅 360㎡

李延玲 李延玲 12 3548112浏览 这样装修多少钱?

别墅的其它案例
更多

【案例】【龙熙瓦德拉玛庄园】古典 别墅 1314㎡

博洛尼 博洛尼 6 3505005浏览 这样装修多少钱?

【案例】【自在香山】古典 别墅 300㎡

高宏寅 高宏寅 6 1539078浏览 这样装修多少钱?

【案例】【懋源景玺】古典 别墅 775㎡

渠海东 渠海东 11 822793浏览 这样装修多少钱?