×
北京
手机博洛尼 售前:400-6868-692 售后:400-666-3706
所在位置/首页优秀案例/领秀新硅谷
点击浏览下一张
案例信息
  • 楼盘名称
  • 案例风格
  • 领秀新硅谷
  • 法式
  • 案例户型
  • 服务店面
  • 案例面积
  • 设计师
  • 90㎡
  • 王超
案例说明

户型方正,南北通透是领秀新硅谷户型的一大特点,这种布局有利于室内采光和通风,能为居住者提供舒适的居住环境。例如 140.1㎡的三居室,大面宽阳台设计,让客厅和卧室都能获得充足的阳光。

客厅
更多客厅灵感

以奶白、米杏、浅灰、原木色为底,营造柔和通透的基底,避免大面积深色(易显压抑),用绿色沙发提亮整个空间。

客厅
更多客厅灵感

电视采用了壁画电视,壁画电视通常具有超薄的机身,能够无缝贴合墙面,从侧面看几乎与墙面融为一体,极大地节省了空间,让客厅看起来更加整洁和宽敞。

餐厅
更多餐厅灵感

常见淡雅的米色、奶油白、等,这些颜色相互组合,营造出温馨舒适的氛围。同时,结合一些木色家具,墙面粉饰与家具颜色常相互呼应,达到和谐统一的效果。

卧室
更多卧室灵感

造型简洁流畅,注重线条美感,可选择带有弧形床头或精致雕花的款式。材质上,软包床搭配柔软的棉质、丝绸等面料,带来舒适的触感,颜色以浅色为主,与整体风格相协调。

卧室
更多卧室灵感

大量运用柔软的布艺材质,如床品可选择棉质、亚麻混纺的面料,触感舒适,透气性好。窗帘可采用双层设计,外层是轻盈的纱帘,内层是厚实的遮光布,既能保证隐私,又能在白天营造出柔和的光线效果。

玄关
更多玄关灵感

注重将经典的拱形门、雕花家具、晶莹剔透的吊灯等古典元素与现代简约的设计理念相结合,既重视传统工艺与细节,又注入现代时尚感,使空间呈现出既古典又前卫的感觉。

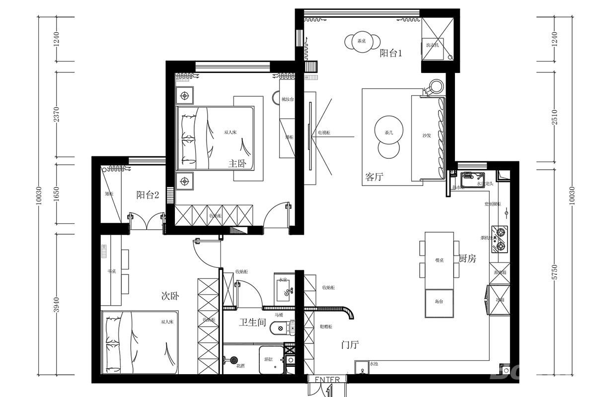
户型图
更多户型图灵感

此户型主打南北通透 + 格局方正,客厅南向带落地窗或大阳台,厨房为明厨设计,可容纳多人协作烹饪,卫生间配置满足多人口家庭需求。

本案设计师

王超

资深设计师

  1. 168次
  2. 预约数
  1. 10年
  2. 从业年限
  1. 20套
  2. 作品案例

预约TA

法式风格的其它案例
更多

【案例】【大郊亭】法式 三居室 160㎡

赵波 赵波 6 5830浏览 这样装修多少钱?

【案例】【玉海园】法式 跃层/loft 120㎡

代伟欣 代伟欣 7 1197392浏览 这样装修多少钱?

【案例】【京西悦府】法式 别墅 300㎡

赵波 赵波 6 3134浏览 这样装修多少钱?

二居室的其它案例
更多

【案例】【御墅临枫】古典 二居室 180㎡

魏焕和 魏焕和 7 3816浏览 这样装修多少钱?

【案例】【民岳家园】古典 二居室 100㎡

尚君 尚君 6 3453浏览 这样装修多少钱?

【案例】【世纪城】古典 二居室 125㎡

赵保祚 赵保祚 6 3370866浏览 这样装修多少钱?