





本案以美式复古为魂,于棕色调的沉稳基调中,探寻家的温暖与质感。深棕色地板与家具奠定怀旧氛围,奶油白色的墙面、顶面及柜体则如轻柔的奶泡,注入明亮与温馨。整体设计摒弃繁复,在色彩与线条的平衡中,营造出一个既复古摩登又惬意放松的宜居之所。
更多客厅灵感
本案旨在营造一个温暖而富有故事感的美式复古客厅。空间以深棕色地板、皮质沙发与藤编椅奠定沉稳怀旧的基调,灰色地毯柔和过渡,平衡视觉。大面奶油白墙面与顶面,在暖色灯光映衬下,氤氲出静谧温馨的氛围。
更多餐厅灵感
本案打造了一个开阔连贯的美式复古客餐厅。空间以温润的棕色地板为基底,奶油白色墙面与暖色灯光共筑温馨氛围。皮质沙发、藤编椅与大理石餐桌陈列有致,灰色地毯柔和过渡,功能与美感并存。最具特色的是连接空间的弧形门洞,优雅的曲线弱化了区域界限,引导光线与视线自由流动,与墙面石膏线、复古画作一同勾勒出浪漫的复古情调。整个空间既通透大气,又于细节处弥漫着时光沉淀的宁静与暖意。
更多玄关灵感
踏入空间,黑色入户门与纯白玄关柜构成鲜明视觉对比,奠定沉稳优雅的第一印象。底部两格棕色开放格,巧妙串联起客厅的复古脉络。绿白相间的花砖跳跃其上,瞬间唤醒经典美式风情。 一侧大理石壁灯与餐厅遥相呼应,延伸了整体感。卫生间干区半高墙与弧形门洞的设计,不仅划定了功能区,更让视线与光线自由穿梭,营造出通透且富有韵律的入户体验。
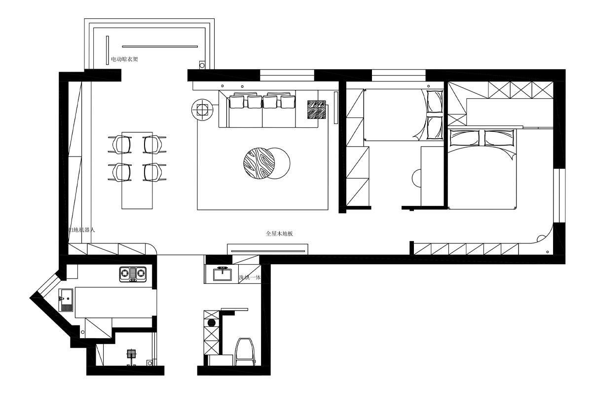
更多户型图灵感
本案匠心规划动线分明、功能完备的宜居空间。左侧厨房异形空间被巧妙化解,布局严谨高效。过渡至开阔的客餐厅,温馨复古的氛围与充足收纳相得益彰。静区私密独立,主次卧规划合理,延续了整体的收纳智慧。全室在美式风格的统领下,实现了功能、美学与舒适度的完美平衡。