





这份设计以现代简约为魂,于素雅色调中铺展利落线条。客厅通透敞亮,简洁立面与精致软装交织出松弛感;餐厨区功能交融,岛台设计在实用与美学间寻得平衡,灯光晕染更添雅致;全屋材质与细节的考究搭配,让简约挣脱单调,化作克制而优雅的生活叙事,在每一处空间褶皱里,盛放着当代人对质感居所的诗意想象。
更多客厅灵感
此设计以现代简约为核,浅雅色调铺就通透底色。利落线条构建空间秩序,柔和灯光晕染温馨氛围。质感沙发、艺术感茶几与金属落地灯相衬,大理石饰纹添精致感,于留白与细节间,将简约升华为雅致从容的生活诗意。
更多客厅灵感
此客厅以现代简约为魂,浅调铺就雅致基底。利落电视墙与柔光灯影营造层次,艺术感茶几点睛,角落阅读区暗藏温情,于极简线条与质感材质间,将生活的舒适与美学的精致,凝练成一处治愈身心的休憩场域。
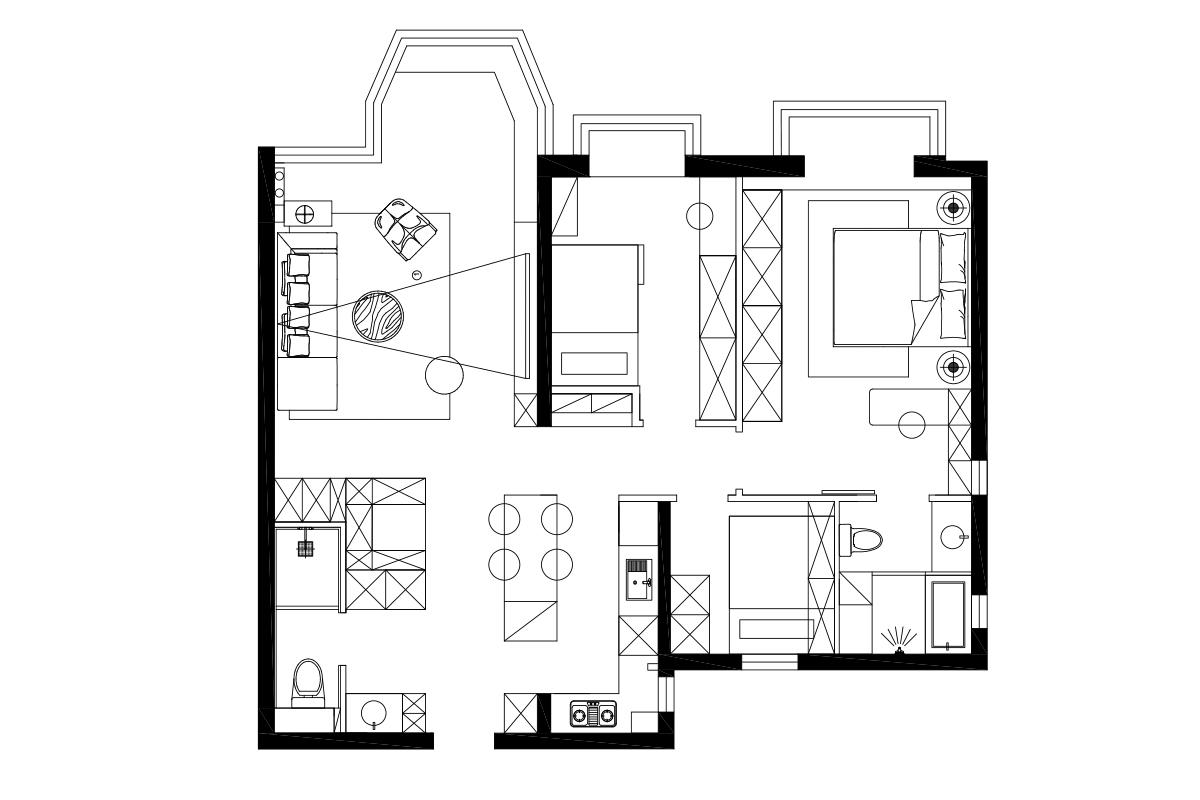
更多户型图灵感
这份户型设计以简约为骨、雅致为韵,勾勒功能与美学的共生之境。客厅通透敞亮,家具布局铺就惬意社交场;卧室静谧温馨,收纳巧思让空间愈显从容;餐厨联动流畅,烟火日常亦具雅致质感;卫浴布局精巧,私密与实用相得益彰。整体以利落线条串联空间,于方寸间雕琢品质,让每一处细节都浸润着精致与舒适,营造出简约却不简单的理想生活居所。