×
北京
手机博洛尼 售前:400-6868-692 售后:400-666-3706
所在位置/首页优秀案例/芍药居北里
点击浏览下一张
案例信息
  • 楼盘名称
  • 案例风格
  • 芍药居北里
  • 现代
  • 案例户型
  • 服务店面
  • 案例面积
  • 设计师
  • 63㎡
  • 郭清林
案例说明

业主一个人居住,要求多收纳,想要大卧室,大厨房,以及大卫生间,所以把客厅的卧室打通做了大卧室的设计,将之前的次卧改成了厨房,将原有的厨房卫生间合成了三分离的大卫生间,满足了业主的需求。

卧室
更多卧室灵感

将之前的客厅和卧室打通,做成了超大的厅卧一体的卧室空间,满足了客户的需求,电视墙做了整体电视柜,满足了收纳需求。

厨房
更多厨房灵感

将此前的一个卧室改为了大厨房的设计,女主人希望在厨房用餐,所以做了岛台的设计,并加了洞洞板,可以收纳一些小件物品。

厨房
更多厨房灵感

将此前的一个卧室改为了大厨房的设计,女主人希望在厨房用餐,所以做了岛台的设计,并加了洞洞板,可以收纳一些小件物品。

玄关
更多玄关灵感

在玄关的空白区域做了成品矮柜的设计,加了筒射灯,增加壁画得氛围感,门选用了暖白色使整个空间温馨又明亮。

玄关
更多玄关灵感

客户喜欢温馨又轻奢的感觉,玄关需要多收纳,做了转角收纳柜,并增加了印花展示,卫生间做了干湿三分离的设计。

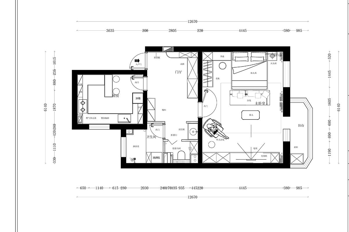
户型图
更多户型图灵感

将原始的客厅和主卧打通,做成了一个大卧室,原始的次卧改成了厨房,原始的厨房卫生间合二为一,做成了三分离的大卫生间。

本案设计师

郭清林

主任设计师

  1. 169次
  2. 预约数
  1. 12年
  2. 从业年限
  1. 26套
  2. 作品案例

预约TA

现代风格的其它案例
更多

【案例】【金茂府】现代 四居室 140㎡

渠海东 渠海东 7 844944浏览 这样装修多少钱?

【案例】【万国城】现代 二居室 130㎡

霍俐明 霍俐明 7 4381987浏览 这样装修多少钱?

【案例】【棠颂】现代 别墅 360㎡

李延玲 李延玲 12 3548093浏览 这样装修多少钱?

一居室的其它案例
更多

【案例】【丽都壹号】现代 一居室 44㎡

张弛 张弛 6 2438浏览 这样装修多少钱?

【案例】【新裕家园】现代 一居室 60㎡

王丽丽 王丽丽 6 1723浏览 这样装修多少钱?

【案例】【地杰长安驿】现代 一居室 62㎡

郑晓锋 郑晓锋 6 3029浏览 这样装修多少钱?