×
北京
手机博洛尼 售前:400-6868-692 售后:400-666-3706
所在位置/首页优秀案例/金鱼池
点击浏览下一张
案例信息
  • 楼盘名称
  • 案例风格
  • 金鱼池
  • 奶油
  • 案例户型
  • 服务店面
  • 案例面积
  • 设计师
  • 110㎡
  • 郭清林
案例说明

此户型为复式户型,两个年轻的小夫妻居住,原始的楼梯位置不好,想改变位置,想提高厨房的收纳空间,喜欢奶油原木风温馨的感觉。

客厅
更多客厅灵感

一楼的原始楼梯位置做了改变,增大了客厅的使用空间,增加了餐桌以及餐边柜的功能,在上方做了吊顶,遮蔽原始的梁,并增加了灯带的设计。

餐厅
更多餐厅灵感

将原始的楼梯改到了厨房和卫生间中间,合理的利用了空间,在楼梯踏步上做了灯带设计,楼梯间做了隐形门处理,使整个空间更有完整性。

卧室
更多卧室灵感

主卧做了衣柜加梳妆台一体的设计,并且增加了晴空灯,在衣柜中间做了开放展示的设计,并加了灯光,柜体颜色选用了暖白色,使整个空间温馨又明亮。

卧室
更多卧室灵感

次卧考虑到墙体的实用性以及业主的需求,设计定制展示柜,巧妙收纳与展示业主心爱箱包,兼具实用与装饰性。

书房
更多书房灵感

由于业主需要一个办公的空间,偶尔也需要当做卧室,所以做了书柜加隐形竖翻床的设计,在美观的同时,又满足了业主的需求。

书房
更多书房灵感

在二楼的空间里设计里一个兼顾书房与水吧台的空间设计让工作、饮水能随心切换。精心规划收纳与展示空间,满足物品归置与审美表达。

厨房
更多厨房灵感

厨房采用了L形的橱柜设计,后侧合理利用收纳空间,内嵌式冰箱设计,满足业主的日常需求的同时,其行动路的线合理性大大提高使用感

儿童房
更多儿童房灵感

二楼的孩子房由于空间不大,所以做了榻榻米的设计,完美解决了收纳空间不足的问题,并在靠窗处做了软包的设计。

卫生间
更多卫生间灵感

根据业主的需求,在卫生间设计中采用了分体式洗衣机设计,一侧为洗浴柜,另一侧为隔离水滴的淋浴房,马桶上的柜子大大提高收纳率

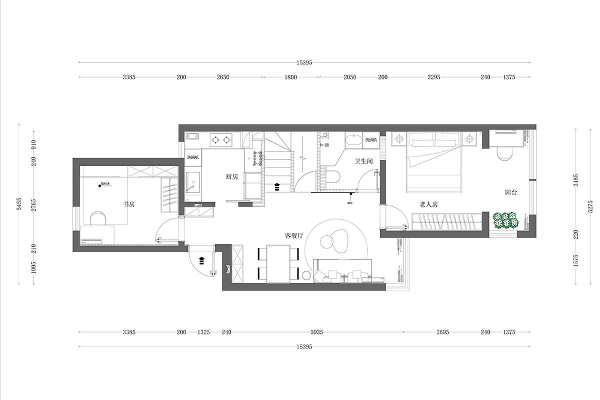
户型图
更多户型图灵感

此户型为复式户型,一楼的原始楼梯位置做了改变,增加了客厅的使用空间,厨房扩大了,增加了收纳功能,书房做了隐形床,满足了办公+睡眠的需求。

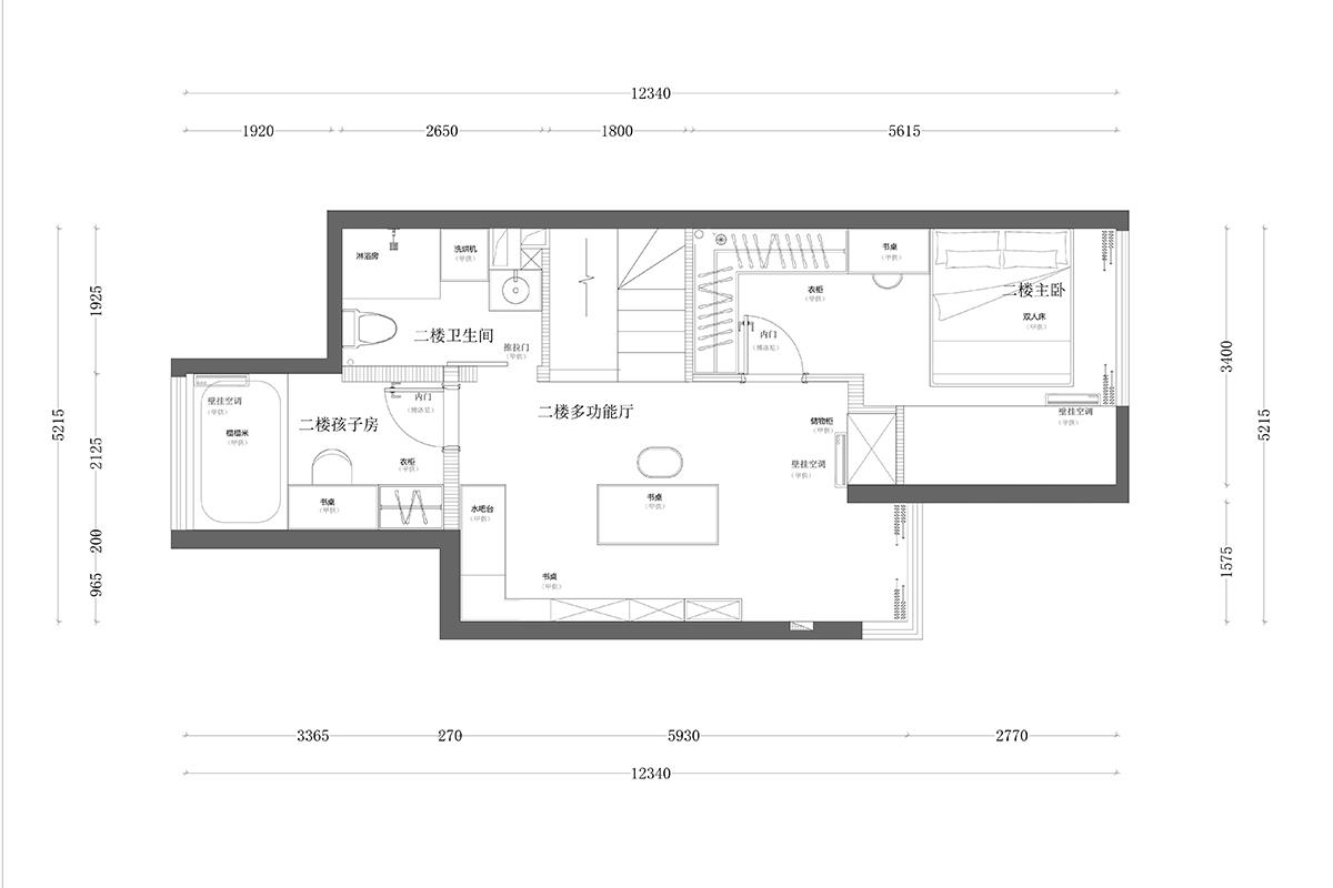
户型图
更多户型图灵感

二楼的设计,在主卧做了衣柜加梳妆台定制的设计,满足了了女业主的收纳多的需求,孩子房做了榻榻米,完美的利用了整个空间。

本案设计师

郭清林

主任设计师

  1. 169次
  2. 预约数
  1. 12年
  2. 从业年限
  1. 26套
  2. 作品案例

预约TA

奶油风格的其它案例
更多

【案例】【澳林观邸】奶油 四居室 200㎡

康明 康明 9 73872浏览 这样装修多少钱?

【案例】【首城国际】奶油 二居室 150㎡

叶曼 叶曼 6 515534浏览 这样装修多少钱?

【案例】【豪柏公寓】奶油 三居室 128㎡

蒋胜 蒋胜 6 3643浏览 这样装修多少钱?

四居室的其它案例
更多

【案例】【金盛家园】古典 四居室 155㎡

霍禹晨 霍禹晨 5 3624604浏览 这样装修多少钱?

【案例】【陶然亭】古典 四居室 117㎡

袁媛 袁媛 6 2722浏览 这样装修多少钱?

【案例】【西钓鱼台庄园】古典 四居室 141㎡

霍伯骞 霍伯骞 8 2180浏览 这样装修多少钱?