×
北京
手机博洛尼 售前:400-6868-692 售后:400-666-3706
所在位置/首页优秀案例/健翔园
点击浏览下一张
案例信息
  • 楼盘名称
  • 案例风格
  • 健翔园
  • 原木
  • 案例户型
  • 服务店面
  • 案例面积
  • 设计师
  • 72㎡
  • 马翠翠
案例说明

设计上整体以原木风格为主,不需要沙发,整体上柜子较多,便于收纳,常住人口两人,孩子不定期回来,所以除主卧外的居室作为多功能房使用。

客厅
更多客厅灵感

客厅正面做了一组餐边柜,嵌入冰箱,增加了操作空间,解决了厨房空间太小的问题。整体地面采用人字拼地板的设计,与整体原木风相呼应。

客厅
更多客厅灵感

客厅并未采用传统沙发加电视的形式,整体上更加松弛。顶面上两条反射灯带很好的补充了光源的同时也避免吊灯的压抑感。

餐厅
更多餐厅灵感

餐厅背面做了一组书柜,加上跳玻璃柜门灯带的设计避免空间上太过压抑。去沙发的设计使空间上更加开阔,视线更明亮。

卧室
更多卧室灵感

卧室地面上跟客厅相统一采用人字拼地板。L型书桌增加写字空间。立面上采用与衣柜相同色彩的木板为装饰相呼应。

其他
更多其他灵感

多功能房的两侧都有柜子补充储物空间,没有人的时候可以把折叠床收上去,作为活动空间使用,有人的时候放下可以满足居住功能。

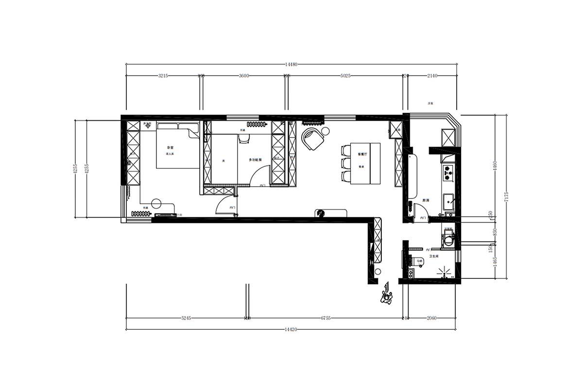
户型图
更多户型图灵感

整体空间为两居一厨一卫一厅。由于常住人口两人,所以另外一居室作为多功能房使用,可以享受生活的同时也满足了偶尔居住的功能。

本案设计师

马翠翠

主任设计师

  1. 168次
  2. 预约数
  1. 12年
  2. 从业年限
  1. 30套
  2. 作品案例

预约TA

原木风格的其它案例
更多

【案例】【北京香颂】原木 跃层/loft 370㎡

渠海东 渠海东 14 1325366浏览 这样装修多少钱?

【案例】【玉桥南里】原木 二居室 95㎡

张时月 张时月 6 448785浏览 这样装修多少钱?

【案例】【金域学府】原木 二居室 82㎡

倪美苹 倪美苹 6 171827浏览 这样装修多少钱?

二居室的其它案例
更多

【案例】【御墅临枫】古典 二居室 180㎡

魏焕和 魏焕和 7 5009浏览 这样装修多少钱?

【案例】【民岳家园】古典 二居室 100㎡

尚君 尚君 6 4883浏览 这样装修多少钱?

【案例】【世纪城】古典 二居室 125㎡

赵保祚 赵保祚 6 3372034浏览 这样装修多少钱?