×
北京
手机博洛尼 售前:400-6868-692 售后:400-666-3706
所在位置/首页优秀案例/金都苑
点击浏览下一张
案例信息
  • 楼盘名称
  • 案例风格
  • 金都苑
  • 法式
  • 案例户型
  • 服务店面
  • 案例面积
  • 设计师
  • 90㎡
  • 康明
案例说明

以简约线条勾勒空间骨架,摒弃繁复雕花,保留法式浪漫内核。选用低饱和莫兰迪色与原木肌理碰撞,搭配利落金属线条点缀。开放式布局融合功能与美学,柔光灯带与百叶窗营造层次光影,让优雅在克制中自然流露,兼具当代生活实用性与法式慵懒格调。

客厅
更多客厅灵感

本案为法式现代客厅,以奶油白为底色,石膏线勾勒精致轮廓。搭配艺术吊灯、玻璃茶几与原木地台,融入趣味软装,于优雅中注入随性,营造浪漫且具烟火气的社交空间。

客厅
更多客厅灵感

本案为法式现代客厅,以奶油白为主调,借石膏线、拱形门洞营造优雅轮廓。大理石墙、球形吊灯添精致,圆弧沙发融合自然纹理,搭配艺术陈设,平衡浪漫与实用,诠释慵懒法式生活。

餐厅
更多餐厅灵感

本案以法式现代为基调,浅米色墙面搭配精致线条,大理石立柱嵌入氛围灯增添层次。餐桌延续石材纹理,绒面餐椅融合自然木质,艺术挂画与花艺点缀,营造优雅且具烟火气的用餐空间。

餐厅
更多餐厅灵感

本案为法式现代风格餐厅,以浅白为底,借拱形门洞串联空间。大理石餐桌搭配绒面餐椅,艺术挂画与花艺点缀,融合精致线条与柔和材质,营造优雅且具生活温度的用餐氛围。

卧室
更多卧室灵感

本案为法式现代风卧室,浅色调打底,石膏线勾勒精致轮廓。拱形元素、壁灯与装饰画营造浪漫,软包床头、温润木色添温馨,嵌入式柜体兼顾收纳,打造优雅舒适的休憩空间。

卧室
更多卧室灵感

本卧室融合法式优雅与现代简约,以白色为主调,石膏线勾勒精致,搭配软包床头、复古挂画,暖棕床品点缀,借自然采光营造温馨静谧、兼具浪漫格调的休憩空间。

卫生间
更多卫生间灵感

本案为现代简约风卫浴,以浅米色为主色调,悬浮木柜增添轻盈感,智能镜带氛围光。绿植点缀生机,功能分区清晰,融合实用与美学,打造整洁、舒适且具精致细节的洗漱空间。

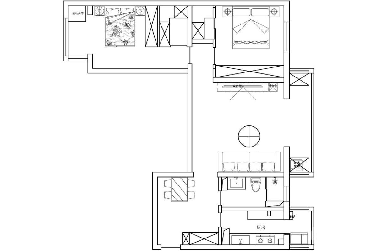
户型图
更多户型图灵感

本案为法式现代风,布局开放流畅,客厅圆形元素呼应浪漫。色彩取低饱和调,材质融合原木与金属。卧室保留法式优雅,厨卫功能清晰,以简约线条勾勒慵懒精致的生活场景。

本案设计师

康明

特级主任设计师

  1. 168次
  2. 预约数
  1. 18年
  2. 从业年限
  1. 99套
  2. 作品案例

预约TA

法式风格的其它案例
更多

【案例】【大郊亭】法式 三居室 160㎡

赵波 赵波 6 5092浏览 这样装修多少钱?

【案例】【玉海园】法式 跃层/loft 120㎡

代伟欣 代伟欣 7 1197083浏览 这样装修多少钱?

【案例】【京西悦府】法式 别墅 300㎡

赵波 赵波 6 2313浏览 这样装修多少钱?

二居室的其它案例
更多

【案例】【御墅临枫】古典 二居室 180㎡

魏焕和 魏焕和 7 2839浏览 这样装修多少钱?

【案例】【民岳家园】古典 二居室 100㎡

尚君 尚君 6 2334浏览 这样装修多少钱?

【案例】【世纪城】古典 二居室 125㎡

赵保祚 赵保祚 6 3369838浏览 这样装修多少钱?